Besoin d'aide pour aménager un salon/cuisine 23m²
il y a 9 ans
Réponse sélectionnée
Trier par:Plus anciennes
Commentaires (7)
- il y a 9 ans
Discussions associées
Besoin d'aide pour aménager une cuisine ouvert salon 30m2
Commentaires (9)Bonjour. Je verrais bien chez vous une cuisine "boite" dans ce style Par rapport à la solution proposée, je reprendrais 2 points- la proximité cuisson évier est à déconseiller (risque de brûlures graves) - je trouve dommage de voir la chaudière en premier plan à partir du salon Je vous propose donc un projet de ce type Avec la cuisine encadrée d'un côté par un meuble "réfrigérateur/congélateur" et de l'autre par un meuble "fours", le lave vaisselle assurant le minimum requis de 60 cm entre évier et cuisson. plaque de cuisson sur casserolier de 80 cm, meuble d'angle et meuble de 80 entre angle et frigo. Au centre, soit un simple bar repas, soit un bar (comme dessiné ici) sur meubles bas de 40. En prime, entre le meuble frigo et le meuble d'angle haut, je bricolerais, avec une joue de meuble, un cache (amovible) pour faire disparaître la chaudière de la vue, sans pour autant l'étouffer (en pontillés jaunes sur le croquis) Bonne réflexion.... Voir plus20m2- Besoin d’aide pour aménager un salon cuisine ouverte
Commentaires (6)bonjour, c'est une très bonne idée de vouloir récupérer l'espace de la petite salle d'eau, cela dit il vaudrait peut mieux garder au moins les wc à ce niveau pour vos invités ? pour votre aménagement, vous pourriez prolonger la cuisine existante sur le mur du fond, installer un ilot pour plus de plan de travail et de rangement ; une table de salle à manger en suivant avec une banquette adossée au plan de travail .. votre coin salon, avec un canapé face au mur du fond avec un bel élément intégrer pour la télévision, qui pourrait également servir de bibliothèque ... bon courage ! Astrid... Voir plusBesoin d'aide pour l'amenagement salon cuisine ouvert de 23m²
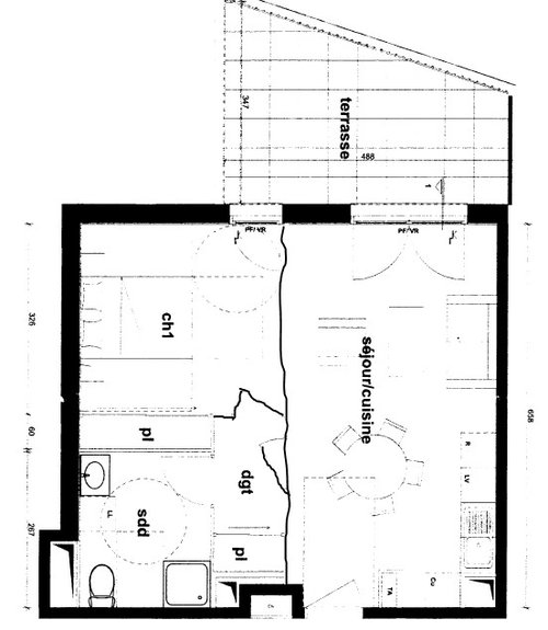
Commentaires (1)bonjour, j'aurai besoin de vos lumières, j'ai un salon cuisine ouvert avec des recoins un peu partout et je sais pas du tout comment l'aménager au mieux. nous avons besoin de beaucoup de rangement car notre appartement ne comporte aucun placard donc c'est un peu la galère, et d'un bureau fixe car j'ai épousé un geek :) pour ma part un bureau pour moi serai bien aussi mais il peut être escamotable car je travail sur ordinateur portable. actuellement nous n'avons pas de salon ( canapé avec télé) mais nous aimerons en mettre un maintenant car notre appartement va être mis en AIR BNB. en commentaire j'ai mis le plan de l'appartement avec les mesures ( pas possible de le mettre dans le message ) si y a besoin de plus de photos n'hésitez pas à me le faire savoir. je vous remercie d'avance pour votre aide... Voir plusBesoin d'aide pour l'aménagement d'un espace salon/cuisine de 20m2
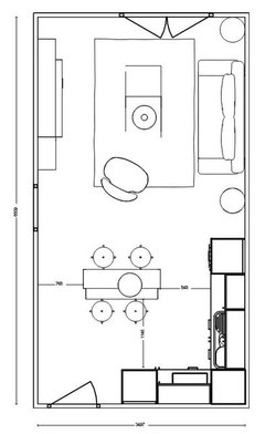
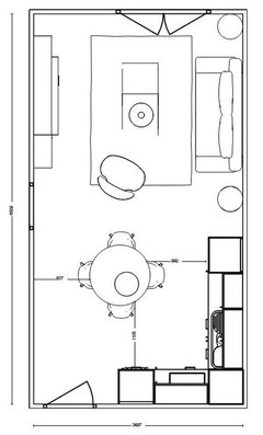
Commentaires (3)Bonjour, Il n'y a pas 50 solutions pour aménager cet espace. Il faut en effet mettre le canapé côté porte fenêtre et une table côté cuisine. Voici ce que je propose avec une table pour 4 personnes de 160x90 cm. On peut aussi ajouter un petit buffet bas à côté du canapé pour plus de rangement. Côté déco pourquoi pas délimiter la coin salon avec une couleur franche comme du vert ou du bleu : Avec des accessoires de décoration en matières naturelles et avec des tons clairs. Ou alors si vous ne voulez pas osez la couleur sur les murs, jouez sur les accessoires de couleurs : Si vous souhaitez aller plus loin dans le projet avec moi, je reste à votre disposition. Bien à vous, Marie www.ateliervertmenthe.com... Voir plus- il y a 9 ans
- il y a 9 ans
- il y a 9 ans
- il y a 9 ans

Sponsorisé
Rechargez la page pour ne plus voir cette annonce spécifique




SO DKO