Besoin d'aide dans ma salle de bain !
il y a 9 ans
Réponse sélectionnée
Trier par:Plus anciennes
Commentaires (11)
- il y a 9 ans
Discussions associées
HELP ! Besoin d'aide pour aménager ma salle de bains de 3,8 m²
Commentaires (29)Vous avez une jolie petite pièce qui demande un aménagement rationnel,et qui corresponde à votre style de vie,c'est un défi. Vu la place dont vous disposez,pourquoi ne pas utiliser tous les espaces? le bout de mur peut devenir une étagère où poser les produits pour le bain ce qui donnerait plus de clarté pour la vasque.je reste aussi avec l'idée du panier à linge à roulettes; Par expérience le sèche serviette proche de la baignoire c'est un plus.N'avoir qu'à tendre le bras pour attraper la serviette chaude ,c'est du confort. question: quelle largeur la niche? On ne peut pas y caser la vasque? Attention: quand on veut modifier une pièce on a tendance à copier l'ancien plan même s'il n'est pas pratique.Listez bien vos besoins.Voyez ce qui est pratique dans l'actuelle salle d'eau. Vu les arrivées et évacuations,peut être possible d'inverser vasque et baignoire? Il faut vérifier toutes les options pour ne pas regretter,ni pester pendant des années sur une implantation pas pratique! Si vous choisissez d'ajouter du vert,pensez que comme le mauve, ça peut donner mauvaise mine et tromper sur le maquillage.Ceci dit presque tout va avec du beige.Un turquoise doux? La fenêtre au dessus de la baignoire,donc monter dans la baignoire pour ouvrir ou fermer? se taper dans la fenêtre ouverte en sortant de la baignoire?... Voir plusbesoin d'aide pour ma salle de bain
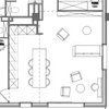
Commentaires (8)voila j'ai réussi a faire une esquisse . la baignoire balneo fait 180 je mettrais la robinetterie au milieu du grand coté pour faciliter l'accès . les deux cloisons n'iraient pas jusqu'en haut pour laisser passer la lumière . je peut fermer complètement la douche par une porte de 90 . je déporte au max la baignoire dans la niche pour qu'elle soit accessible . une colonne de rangement est peut être suffisante avec des portes manteaux a coté et seche serviette sur le bout de cloison douche près du radiateur sous la fenêtre qu'en pensez vous ??... Voir plusBesoin d'aide peinture et meubles pour ma salle de bain.
Commentaires (44)Patricia Garlis il faut chercher une moyene la plus eficace pour vous et vos besoins qui coute pas chère mais c'est trop èlegant pour cela la je vous recomande Leroy Merlin je modernisè toute mon apartement alors que je suis locataire aussi que vous , en cet moment la Leroy Merlin c'est le meilleur en France avec condition de de savoir choisi le materieux ,mon appart il montre come de 5 etoiles, grace mes haut gout de choisir chez Leroy Merlin le bon produit, Laroy Merlin ils ont même pour construire vôtre cuisine avec de vrais bois massive très moins chère et vous pouvais crèe de cuisine en valeut entre 5k et 6k Euro alors que sa coute seulement 300 ou 400 Euro mais avec les conditions que vous le saviez construir vous même... Voir plusBesoin d'aide avec l'agencement de ma salle de bain sous pente
Commentaires (3)Bonjour Sarah, Tout d'abord merci de porter de l'intérêt à mon projet. Je viens de terminer un plan de la salle de bain, qui devrait être à l'échelle Après discussion avec Mr et faute de moyens dans l'immédiat on partirai plutôt sur un réaménagement avec création de plan à langer, plan de travail et rangements et on laisserai l'idée de créer une douche à plus tard. Mais toutes les bonnes idées sont les bienvenues!! Merci... Voir plus- il y a 9 ans
- il y a 9 ans
- il y a 9 ans
- il y a 9 ans
- il y a 9 ans
- il y a 9 ans
- il y a 9 ans
- il y a 9 ansDernière modification :il y a 9 ans
- il y a 9 ans

Sponsorisé
Rechargez la page pour ne plus voir cette annonce spécifique


Nuances 3D Design, Optimisation d'espaces