Besoin de conseil pour aménager cuisine + sdb dans moins de 9m2!
il y a 2 ans
Réponse sélectionnée
Trier par:Plus anciennes
Commentaires (21)
Discussions associées
Besoin d'aide pour aménager une chambre de 9m2 sans rangement
Commentaires (23)Bonjour Typhaine, Le lit estrade semble compliqué à installer tout en conservant un accès au lit des deux côtés, j'avais proposé ceci pour un projet : https://www.houzz.fr/projects/2936695/renovation-d-un-studio-parisien-destine-a-la-location?lt=hl mais le l'accès au lit ne se faisait que d'un côté et l'espace autour de l'estrade était vaste. Dans votre cas il pourrait étouffer l'espace. alors, il semble judicieux de créer des rangements toute hauteur de part et d'autre de votre lit (comme dit ci-avant) afin de conserver au maximum le volume de la chambre tout en ayant une grande quantité de rangements. Concernant votre dressing, n'hésitez pas a consulter plusieurs artisans qui pourront vous proposer des solutions adaptées à votre pièce : - pas d'espace perdu en hauteur - création de niches pour les tables de chevet - meubles de rangements au dessus du lit ( et sécurisé, ils ne vous tomberont pas sur le coin du nez dans votre sommeil) Pensez à un lit à tiroir dans lesquels le linge de lit pourrait-etre stocké ;) Sinon, mais je ne connais pas les mesures de votre appartement, la porte d'accès à la salle d'eau pourrait être déplacée au niveau du séjour ( à cote de la gaine ), la porte de la chambre décalée sur la droite et vous pourriez ainsi créer un grand dressing en L passant d'un bout à l'autre de votre lit avec un retour le long du mur de la salle d'eau. Mais cette proposition engendre plus de frais et de travaux, évidemment. Elle reste à réfléchir, car à l'usage une salle d'eau donnant dans la chambre n'est pas forcement idéale (parole de personne concernée ;D ) En vous souhaitant de beaux travaux d'aménagements. Marion.... Voir plusConseil pour créa une chambre parentale avec Sdb dans moins de 15m2
Commentaires (2)Bonjour, Je suis décoratrice d'intérieure et architecte je serai ravie de vous aider dans votre projet. Je vous propose mes services pour créer un intérieur de vos rêves. Je suis à votre disposition pour vous aider avec la conception (cuisines, salles de bains, décoration de chambres etc.), choix de matériaux et dessins techniques pour l'exécution de travaux. Je me déplace partout en Ile-de-France, visites possibles dans la semaine (même le soir) et le weekends. Je vous invite à visiter mon site internet: http://kastdsgn.com/ facebook Profil: www.facebook.com/kastdsgn Houzz Profil: http://www.houzz.fr/pro/kast-design/kast-design N'hésitez pas à aller voir mon site et à me contacter. Belle journée à vous.... Voir plusBesoin de conseils pour l'aménagement d'un salon + cuisine -20m2
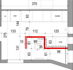
Commentaires (7)Re-bonjour Alexis, je pense que vous allez avoir besoin d'un îlot ... on compte pour avoir une cuisine petite mais confortable qu'il faut en linéaire au moins 5 ou 6 blocs de 60 (pour pouvoir caser tous les éléments) : frigo+plaques+évier+plan de travail et sachant que la plaque ne peut pas être collée à l'évier et qu'il vaut mieux ne pas avoir plaque/four à côté du frigo (pour des raisons évidentes). sur votre plan en l'état actuel vous avez 4x60, ce qui est définitivement insuffisant. l'îlot pourra recevoir les points d'eau (évier + lave-vaisselle + poubelles) ou les points de cuisson (plaques+four+hotte). en effet une cuisine en L n'est pas possible à moins de changer la porte de place. Bonne soirée, Catherine... Voir plusBesoin d'aide et de conseils pour l'aménagement de notre pièce de vie.
Commentaires (25)Justement, on cherche à remplacer notre voiture Crit'Air 3 en Crit'Air 1 avant janvier 2025... Essence, manuelle, en dessous de 40K kilomètres, plutôt récente, budget pas illimité, Ile de France. Celle qu'on a roule toujours très bien, mais diesel et Crit'Air 3. Mise en service fin 2006, on l'a acheté en 2008 et on roule très peu avec (Allemande). On roule plutôt en Ile de France, et quelques voyages de 2 à 5h autour de Paris 2 ou 3 fois par an. Des idées? Si vous cherchez un jour à recevoir des amis ou bien à revendre, s'il vous plait, ne mettez pas une cage basse autour du frigo / cave à vin. C'est le meilleur moyen de mettre en valeur un projet DIY. L'objectif est que les 2 s'effacent, pas que les 2 ressortent comme une grosse plaie. Faites faire le soffite en BA13, hauteur à calculer selon les hauteur définitifs des équipements + sur-meubles, longueur totale entre le mur du wc et l'extrémité du frigo (sa porte). Pendant la pose, tirez les câbles pour un interrupteur et au moins 3 ou 4 terminaux pour la pose des spots ou LED éventuels. Mise en peinture du soffite et de ses joues... Prenez du mdf d'au moins 22mm d'épaisseur, voir plus, pose à la verticale sur la largeur des 2 équipements dos à dos (minimum 1m20). Préparez le avec un bouche-pore et couche d'impression (puis ponçage léger), faites au moins 2 couches de blanc satiné avec un léger ponçage au grain très fin entre les 2. Fixez le panneau au sol et au soffite avec des petites équerres. Prenez des sur-meubles hauts (chez Ikea ils les vendent en 60 de hauteur ou 40 de hauteur). Fixez les au mur (sur le coté) et entre eux, dos-à-dos et dessus/dessous (avec des platines ou que des vis). Si vous avez bien coordonné le tout, votre panneau en MDF fera la hauteur totale du frigo / cave à vins plus les meubles hauts (au moins un meuble de 60 au dessus du frigo, peut-être un 60 et 1 40 au dessus de la cave à vin?) Insérez la cave à vin dans l'espace prévu, tout comme le frigo de l'autre coté. Quand je regarde votre déco actuelle, rien de crie "LA GIRONDE"...Il me semble que la pierre et la brique sont plutôt répandues comme matières de construction dans ce coin. Regardez les parements muraux disponibles. La plupart des gens paniquent concernant le type d'habillage à mettre autour d'un poêle, la briquette collée est tout à fait adaptée. Souvent, il y a une teinte qui s'approche au travertin, sans doute plus chaude que la brique blanche dans mes images. plaquette de parement blanc plaquette de parement beige Postez des photos! bon courage, Lynn... Voir plus- il y a 2 ans
- il y a 2 ans
- il y a 2 ans
- il y a 2 ans
- il y a 2 ans
- il y a 2 ans
- il y a 2 ans
- il y a 2 ans
- il y a 2 ansDernière modification :il y a 2 ans
- il y a 2 ans
- il y a 2 ans
- il y a 2 ans
- il y a 2 ans
- il y a 2 ans
- il y a 2 ans
- il y a 2 ansDernière modification :il y a 2 ans
- il y a 2 ansDernière modification :il y a 2 ans

Sponsorisé
Rechargez la page pour ne plus voir cette annonce spécifique

















Pauline D.