Visites Privées
Projets nés sur Houzz
Avant/Après : À Montorgueil, 100 m2 avec terrasse façon loft
Deux chambres en plus et une magnifique bibliothèque dans un appartement familial sous les toits au centre de Paris
Près des Halles, dans le quartier Montorgueil, ces quadragénaires avec un enfant en bas âge cherchent à agrandir en vue de l’arrivée prochaine d’un deuxième bambin. Ils s’intéressent à un premier appartement dont la récente rénovation par l’architecte Glenn Medioni leur fait forte impression mais lui préfèrent finalement un autre, envoûtés par son extérieur qui domine tout Paris. Ils signent donc pour ce 100 m² sous les toits avec terrasse et, comme ce dernier nécessite une restructuration et un surcroît de style, pourquoi ne pas simplement contacter via Houzz l’architecte Glenn Medioni ?
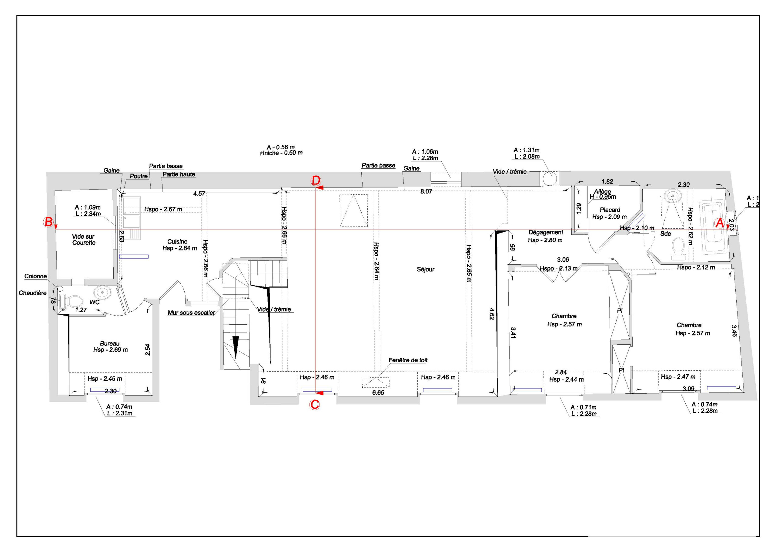
Avant. Dans cet immeuble en pan de bois du XIXᵉ siècle, à un jet de pierre des Halles, ce couple a acquis un appartement sous les toits. Ourlé de poutres apparentes, le 100 m² se compose d’une belle pièce de vie, d’une petite cuisine, de deux chambres avec salle de bains et d’un bureau. Depuis la terrasse qui le surplombe, il offre en prime des vues merveilleuses sur l’église Saint-Eustache, Beaubourg et les toits de Paris. C’est l’élément de charme qui a fait craquer les propriétaires.
Ces derniers se sont rapprochés de l’architecte Glenn Medioni dont l’agence, composée de trois architectes, s’est fait une spécialité d’accompagner les maîtres d’ouvrage tant sur les questions techniques que sur l’optimisation de lieux par de la menuiserie intérieure ou la création d’univers déco forts.
Trouvez un architecte près de chez vous sur Houzz
Ces derniers se sont rapprochés de l’architecte Glenn Medioni dont l’agence, composée de trois architectes, s’est fait une spécialité d’accompagner les maîtres d’ouvrage tant sur les questions techniques que sur l’optimisation de lieux par de la menuiserie intérieure ou la création d’univers déco forts.
Trouvez un architecte près de chez vous sur Houzz
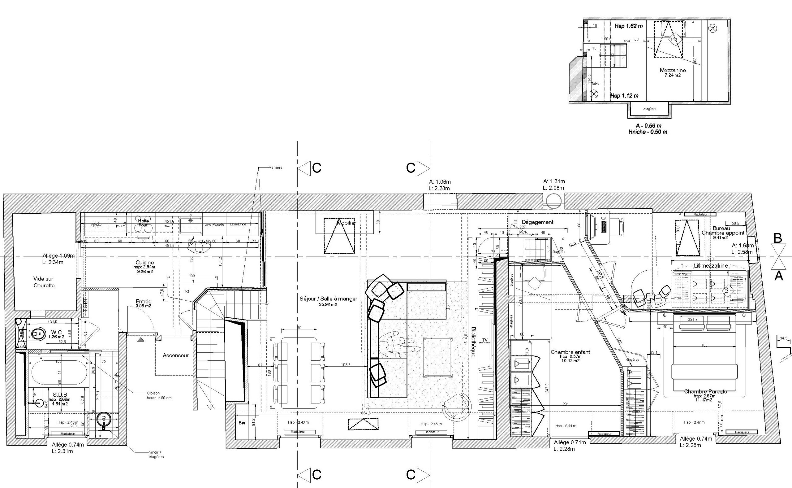
Après. Avec son besoin impératif d’une troisième chambre, la famille contraint ici les professionnels à remodeler en profondeur les lieux. Glenn Medioni va les étonner en créant en plus une chambre d’appoint en mezzanine pour les amis et une décoration façon loft, fondée sur des matériaux naturels, qui vont pleinement emporter leur adhésion.
Après. Le sas d’entrée a été peint en vert émeraude, la couleur préférée des propriétaires. « Pour cacher ces éléments pas très esthétiques (ascenseur, porte des toilettes…), nous avons pris le parti de les harmoniser en une même teinte apposée des murs au plafond afin de créer une zone tampon », explique l’architecte Glenn Medioni.
Face à l’entrée, apparaît la cuisine. Celle-ci n’a pas changé de place mais a été traitée dans le style industriel recherché pour donner à cet appartement un esprit loft. « L’utilisation de matériaux nobles et bruts comme le chêne, l’acier, la pierre et la brique, apporte de l’authenticité à l’espace », partage Glenn Medioni qui affirme ne jamais faire appel à des imitations car il n’aime pas le décalage entre le toucher et ce que distingue l’œil.
Le mobilier de cuisine a été réalisé sur mesure en Valchromat noir souligné d’un plan de travail en chêne massif. En face, le linéaire d’appoint qui prolonge l’entrée a été traité comme un monolithe, recouvert de béton ciré gris souris. Il intègre en partie basse un meuble à chaussures.
Le mobilier de cuisine a été réalisé sur mesure en Valchromat noir souligné d’un plan de travail en chêne massif. En face, le linéaire d’appoint qui prolonge l’entrée a été traité comme un monolithe, recouvert de béton ciré gris souris. Il intègre en partie basse un meuble à chaussures.
Le garde-corps de l’escalier a été repensé façon verrière et ses montants verticaux en acier accentuent la belle verticalité sous plafond. Au sol, le parquet d’origine a été changé par des lames en chêne massif, posées dans la transversalité de la pièce afin de remodeler visuellement les volumes.
La verrière, qui permet de fermer la cuisine, poursuit le dessin du garde-corps jusqu’à un fronton à pan coupé qui invite le regard à s’élever. « Nous avons eu l’idée de l’habiller de verre miroir pour créer un effet de trompe-l’oeil et tout le monde croit qu’il y a une pièce derrière. Même le propriétaire s’est laissé prendre », plaisante l’architecte.
La verrière, qui permet de fermer la cuisine, poursuit le dessin du garde-corps jusqu’à un fronton à pan coupé qui invite le regard à s’élever. « Nous avons eu l’idée de l’habiller de verre miroir pour créer un effet de trompe-l’oeil et tout le monde croit qu’il y a une pièce derrière. Même le propriétaire s’est laissé prendre », plaisante l’architecte.
Bien que trois chambres et une mezzanine d’appoint se cachent désormais en ces lieux, la pièce de vie a gardé ses belles proportions d’origine. Pour ce qui est de l’ambiance, Glenn Medioni rappelle que « toute rencontre entre un architecte et ses clients débouche sur une proposition personnalisée, adaptée à leurs goûts ». Le professionnel a donc, préalablement à ses études, rendu visite à ses clients dans leur ancien chez-eux et recyclé ici une partie de leur mobilier : table de ferme, chaises Tollix de style industriel.
Après. Le brief de départ des maîtres d’ouvrage comportait un élément central : le désir d’une belle bibliothèque pour loger leurs ouvrages. L’architecte ne leur a pas fait défaut avec cette structure toute hauteur en acier thermolaqué et placage chêne, bijou de la pièce de vie.
Réalisée sur mesure, la bibliothèque a été adossée au mur porteur autour duquel elle est venue s’enrouler, dissimulant une échelle de meunier pour accéder à la mezzanine, désormais aménagée en chambre pour les invités.
Réalisée sur mesure, la bibliothèque a été adossée au mur porteur autour duquel elle est venue s’enrouler, dissimulant une échelle de meunier pour accéder à la mezzanine, désormais aménagée en chambre pour les invités.
Pour souligner la belle hauteur sous plafond offerte par le toit cathédrale, les montants en acier de la bibliothèque s’envolent sur la pleine hauteur. Dessous, un jeu de cases pleines et vides anime l’espace. « Plus on va vers le haut et plus on a travaillé en légèreté », note le professionnel.
La composition design a été tout particulièrement soignée par l’architecte, dont l’inspiration a également pris racine dans l’ancien appartement de ses clients, à la vue de leurs deux fauteuils à l’assise gansée de noir.
La fonction n’est pas en reste car ce meuble prend en compte les prérequis des propriétaires : cacher les appareils multimédias, intégrer le téléviseur, ranger des dossiers… « Notre travail c’est d’anticiper le moindre geste du client et scénariser son quotidien », rappelle l’architecte.
La fonction n’est pas en reste car ce meuble prend en compte les prérequis des propriétaires : cacher les appareils multimédias, intégrer le téléviseur, ranger des dossiers… « Notre travail c’est d’anticiper le moindre geste du client et scénariser son quotidien », rappelle l’architecte.
Après. L’orientation du canapé a été modifiée pour faire face à la bibliothèque. Le canapé en L avec méridienne permet de créer une zone cocon. « À cet emplacement, le canapé bénéficie d’une vue incroyable sur l’église Saint-Eustache par la fenêtre de gauche », ajoute Glenn Médioni.
Plus de photos de salons avec un plafond cathédrale sur Houzz
Plus de photos de salons avec un plafond cathédrale sur Houzz
Au-dessus de la bibliothèque, l’espace en mezzanine a été fermé par une cloison en contreplaqué de bouleau, une essence volontairement plus claire que le chêne, afin de pouvoir se fondre avec le fond blanc des murs. Équipée d’un chassis fixe donnant sur le séjour, la mezzanine apporte un graphisme supplémentaire, qui fait écho à celui des montants de la bibliothèque. « Cette boîte en contreplaqué de bouleau est un élément fédérateur que l’on distingue de la pièce de vie et des chambres. Grâce à son châssis vitré, on récupère un esthétique cadrage et de la lumière d’un Velux », précise également Glenn.
Si l’architecte aime que les maîtres d’ouvrages s’impliquent dans leur ameublement pour s’approprier l’espace, il les aide par ses préconisations. Il a notamment prescrit avec soin les luminaires, lesquels apportent toujours une belle touche finale dans un aménagement. « La table est surplombée par la suspension Acrobat de DCW, la zone salon marquée par une suspension Flos et, sur le mur, deux appliques In The Tube dans le style industriel apportent un éclairage périmétral », détaille-t-il.
Après. Cet espace a été remodelé au plus juste pour accueillir trois chambres. Impossible en effet de transformer en chambre le bureau situé de l’autre côté de l’entrée en raison de sa taille exiguë (environ 7 m²). Il a donc été transformé en salle de bains. « Nous avons dessiné l’implantation des trois chambres par rapport aux trois fenêtres existantes et inclus une circulation en diagonale pour perdre le moins de place possible », explique Glenn Medioni.
La chambre du bébé a été personnalisée avec une niche recouverte d’un papier peint d’inspiration végétale choisi par les propriétaires. Le plafond de cette niche est dessiné par la mezzanine au cloisonnement en bouleau.
Du rangement adapté à un enfant en bas âge a été réalisé sur mesure en médium à peindre. « Il y a des cases pour ranger les jouets et des niches bibliothèques en partie basse. Le meuble est cintré pour éviter les blessures », explique l’architecte.
La chambre de l’aîné du couple ne comportait qu’un Velux et une petite fenêtre en hauteur. Elle a également été percée d’une fenêtre intérieure vers le salon afin que le petit garçon puisse avoir une perspective.
Pour animer la pièce, les propriétaires avaient envie d’un mobilier ludique. Glenn Medioni a su leur plaire en leur proposant une menuiserie sur mesure dont les éléments reprennent la forme des briques du jeu Tetris. « J’adore ce jeu. J’ai ressorti ma Game Boy pour l’occasion afin d’étudier la forme des modules », glisse-t-il.
Dans la chambre parentale qui ne fait que 11,5 m² de superficie, il n’y avait pas la place pour un grand dressing. Une tête de lit et une bibliothèque cintrée pour fluidifier la circulation sont les uniques aménagements. Les propriétaires ont néanmoins demandé à retrouver leur teinte préférée, un vert émeraude, appliqué en tête de lit pour être moins impactant visuellement.
Après. Les briques ont servi de point de départ déco dans cette salle de bains où les parents ont souhaité avoir une baignoire et une douche pour que tout le monde puisse se laver rapidement et ensemble le matin.
Le style industriel a été pleinement assumé, d’autant que le mur était strié par une conduite de gaz. « Nous avons assumé le conduit en cuivre et trouvé une robinetterie et un sèche-serviettes assortis », explique Glenn. Le sol a été recouvert de carrelage Mutina de couleur brique signé par les frères Bouroullec et le plan de toilette du même carrelage à picots de couleur blanche.
Le style industriel a été pleinement assumé, d’autant que le mur était strié par une conduite de gaz. « Nous avons assumé le conduit en cuivre et trouvé une robinetterie et un sèche-serviettes assortis », explique Glenn. Le sol a été recouvert de carrelage Mutina de couleur brique signé par les frères Bouroullec et le plan de toilette du même carrelage à picots de couleur blanche.
Comme le plan était difficile à optimiser avec une douche d’un côté, une baignoire de l’autre, l’architecte a proposé une solution que l’on voit souvent au Japon et qui a fait mouche auprès des maîtres d’ouvrage.
« J’avais la référence de l’architecte Kengo Kuma en tête. Nous avons rehaussé la partie bains par une estrade sur laquelle nous avons positionné douche et baignoire ensemble derrière une paroi », explique le pro.
Après. La terrasse a été aménagée avec du mobilier de jardin Fermob.
Pour ces propriétaires, faire appel à l’agence d’architecture Glenn Medioni s’est résumé à l’optimisation parfaite de leur appartement tant dans sa distribution que dans son aspect déco, à l’intérieur comme à l’extérieur. « Nous sommes habitués aux changements d’échelle. Nous dessinons les espaces autant pour les adapter à un environnement extérieur que par rapport à l’humain qui va y vivre en le rendant agréable et fonctionnel pour tous ses besoins », a rappelé l’architecte Glenn Medioni en conclusion de cette visite.
ET VOUS ?
Que pensez-vous de cette rénovation ?
ET VOUS ?
Que pensez-vous de cette rénovation ?

































Qui vit ici : un couple de quadras et leurs deux bébés
Emplacement : Rue Montorgueil, Paris 75002
Livraison du projet : mai 2022 après 5 mois de travaux
Superficie : 100 m²
Architecte : Glenn Medioni
Budget total : 220 000 euros TTC
Photos : Marie-Laure Dutel