Visites Privées
Projets nés sur Houzz
Avant/Après : L'épopée d'une rénovation d'exception, à Paris 17e
La folle histoire d'un superbe haussmannien de 230 m², rénové pour un trader fortuné par une archi à 300 % motivée
Ce n’est pas tous les jours que l’on a la chance de revenir en détail sur une telle rénovation. Et si cet appartement est assez incroyable, le début de l’aventure ne l’est pas moins. Tout a commencé par un coup de fil d’une jeune femme à l’architecte d’intérieur Alix Bresson pour refaire uniquement les chambres de ses deux enfants. La professionnelle, qu’elle a repérée sur le site Houzz.fr, honore avec brio cette prestation. Quelques mois après, le mari de la cliente, un trader de retour d’une expatriation à Amsterdam, la rappelle afin de gérer la rénovation d’un nouvel appartement. Imaginant un petit investissement locatif, l’architecte d’intérieur a la surprise de découvrir, près du Parc Monceau, un fastueux haussmanien de 230 m² que le trentenaire est en train d’acquérir pour y aménager prochainement avec son épouse et ses deux enfants de 6 et 8 ans. Il faudra un an à Alix pour livrer le bien intégralement rénové avec une carte blanche quasi totale et un budget considérable, autour d’un million.
Passé le choc de se retrouver dans un haussmannien aussi fastueux, aux murs et plafonds abondamment moulurés, pièces en rotonde et même orné de fresques peintes, Alix Bresson se remémore « un appartement relativement en état en ce qui concerne les pièces de réception en dépit de quelques incohérences et des pièces d’eau et chambres passablement défraîchies ». La cuisine placée tout au fond de l’appartement et une salle de bains dataient en effet encore des années 1960…
Avant. Pleinement convaincus des compétences de l’architecte d’intérieur, démontrées avec succès lors de sa première mission, les propriétaires lui ont remis les clefs, attendant d’elle qu’elle prenne les rênes de cette rénovation intégrale. « J’ai tout de suite compris que c’était une chance incroyable d’avoir un tel projet au bout de sept ans de carrière. J’ai mis mon âme dans cette rénovation au point de n’en faire aucune autre pendant un an pour m’y consacrer exclusivement », partage Alix.
Trouvez un architecte d’intérieur près de chez vous sur Houzz
Trouvez un architecte d’intérieur près de chez vous sur Houzz
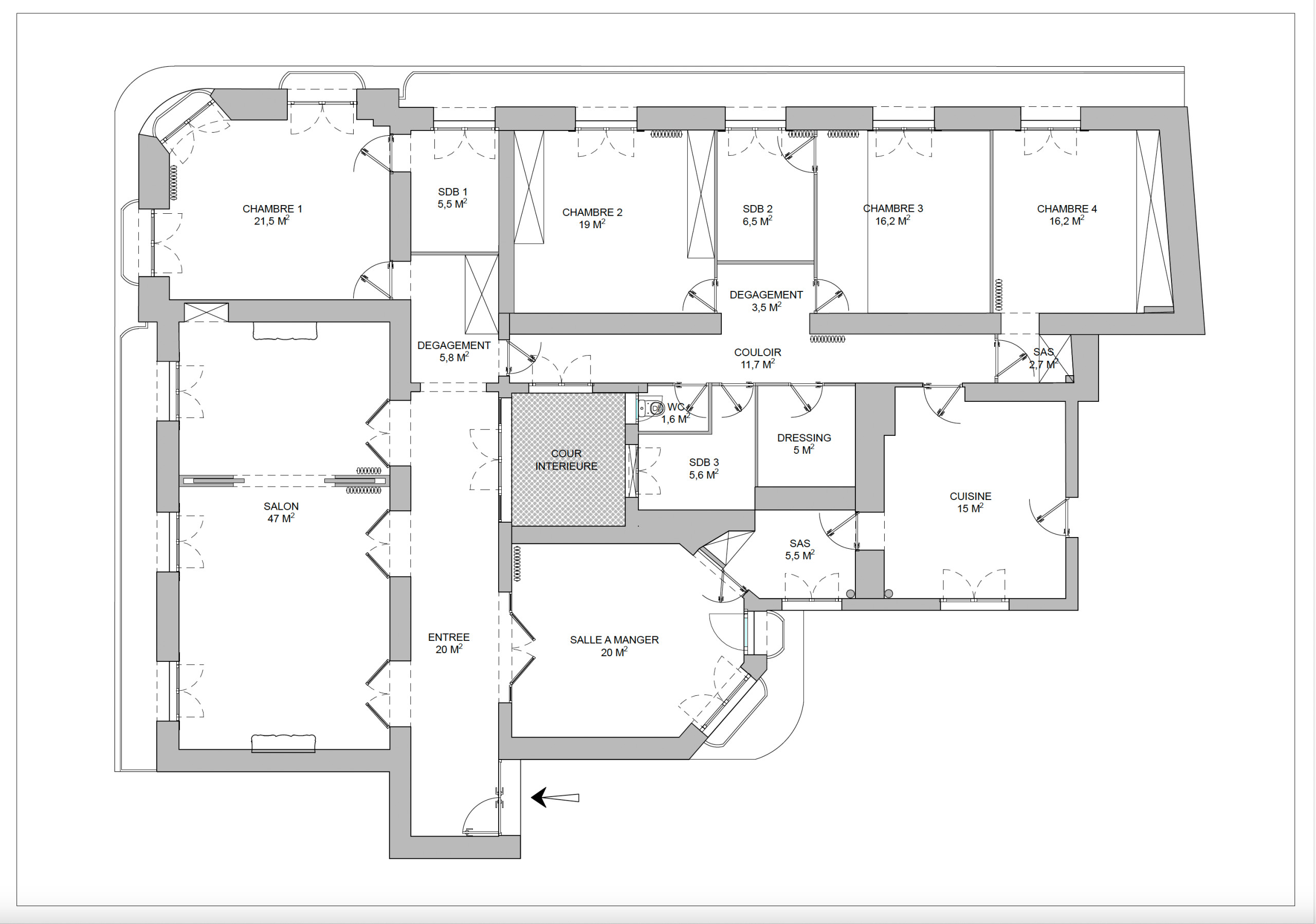
Après. La beauté naturelle du plan de l’appartement ne l’a pas incitée à le modifier outre mesure. Elle s’est principalement attachée à redonner une fonction centrale aux deux pièces en rotonde (salle à manger et suite master) en les transformant, en cuisine pour la première, et en salon TV pour la seconde. Quatre chambres, dont deux suites, ont ensuite été créées conformément à la demande des propriétaires.
Avant. L’entrée se trouvait au départ d’un large couloir qui parcourait tout l’appartement en tournant à 90 °, parallèle au dessin des rues dont il occupait l’angle. Elle donnait le ton des lieux, auparavant très fades.
Après. Les maîtres d’ouvrage ne souhaitaient pas particulièrement récupérer du mobilier de leur précédent appartement. Ils n’ont pas non plus énoncé un style de prédilection ou d’attentes spéciales, hormis technologiques. « Mon client souhaitait un système de sonorisation domotisé dans plusieurs pièces et une belle salle multimédia, de même qu’une clim réversible pilotable sur smartphone », se remémore Alix. Pour intégrer ces éléments discrètement, sans attenter à la beauté des moulures et corniches, il a fallu trouver des astuces. Dans l’entrée, la création d’un meuble banquette, pratique pour se chausser et déchausser, a fourni en partie haute le coffrage nécessaire pour cacher l’une des unités de climatisation, réversible.
La palette de teintes et de matériaux retenus par la professionnelle a été distillée dès l’entrée. Les couleurs lui ont été inspirées par le goût des propriétaires pour le rouge et le bleu et des éléments historiques de l’appartement tels le parquet ou les cheminées en marbre. « Je ne dirais pas que j’ai un style, car chaque projet a son propre style, mais la couleur, c’est mon mantra, un élément essentiel. Souvent, les gens ne savent pas l’utiliser et je mets mon point d’honneur à la distiller par touches car on ne prend pas une architecte d’intérieur pour que tout soit blanc et insipide », estime-t-elle.
Papier peint : Élitis
La palette de teintes et de matériaux retenus par la professionnelle a été distillée dès l’entrée. Les couleurs lui ont été inspirées par le goût des propriétaires pour le rouge et le bleu et des éléments historiques de l’appartement tels le parquet ou les cheminées en marbre. « Je ne dirais pas que j’ai un style, car chaque projet a son propre style, mais la couleur, c’est mon mantra, un élément essentiel. Souvent, les gens ne savent pas l’utiliser et je mets mon point d’honneur à la distiller par touches car on ne prend pas une architecte d’intérieur pour que tout soit blanc et insipide », estime-t-elle.
Papier peint : Élitis
Avant. La salle à manger d’origine, magnifique pièce en rotonde avec moulure et fresques, s’ouvrait sur la droite de l’entrée.
Après. L’architecte d’intérieur a d’emblée proposé d’attribuer cette ancienne salle à manger à la nouvelle cuisine. Elle l’a pensée comme une très belle pièce de réception, pour que les propriétaires puissent y cuisiner, entourés de leur famille ou amis. « Ils m’avaient confié qu’ils aimaient faire la cuisine et cela m’a paru évident de réinsérer cette pièce au sein de l’espace de vie », justifie-t-elle.
Four vapeur combiné : Asko ; suspensions : Concept Verre
Four vapeur combiné : Asko ; suspensions : Concept Verre
Consultés sur leur budget, les propriétaires n’ont jamais posé de contrainte stricte : « ils m’ont toujours dit de faire les devis et que l’on verrait ensuite, ce qui me motivait toujours à proposer le mieux », explique Alix. Si bien que dès la conception, elle les a guidés vers de belles matières, de la menuiserie sur mesure et des éléments d’artisanat d’art comme un vitrail, dont nous reparlerons, et chacune de ses propositions a été accueillie chaleureusement.
La cuisine a été fabriquée intégralement sur mesure, par un menuisier ébéniste d’après les plans de l’architecte d’intérieur. Deux colonnes en médium peintes en rouge encadrent la porte d’entrée, l’une dédiée au réfrigérateur, l’autre aux fours. Colonnes qui ont également servi à encastrer un système sonore. « En tant qu’entrepreneur, je suis toujours plus tentée de faire travailler des artisans que des grosses entreprises, comme ici des cuisinistes de luxe », souligne-t-elle.
Travailler avec un menuisier, tout ce qu’il faut savoir
La cuisine a été fabriquée intégralement sur mesure, par un menuisier ébéniste d’après les plans de l’architecte d’intérieur. Deux colonnes en médium peintes en rouge encadrent la porte d’entrée, l’une dédiée au réfrigérateur, l’autre aux fours. Colonnes qui ont également servi à encastrer un système sonore. « En tant qu’entrepreneur, je suis toujours plus tentée de faire travailler des artisans que des grosses entreprises, comme ici des cuisinistes de luxe », souligne-t-elle.
Travailler avec un menuisier, tout ce qu’il faut savoir
Deux fresques existantes dataient de l’origine de la bâtisse au XVIIIᵉ siècle. Elles ont été une source d’inspiration importante pour la palette de couleurs utilisée dans la rénovation. « J’aime en effet m’inspirer de l’histoire des lieux, de la rue et du bâtiment. Parfois, je vais même me renseigner aux archives », confie Alix. Sous les fresques d’origine, de chaque côté de la pièce, a été installé un linéaire bas dont le dessin s’affine pour laisser la part belle aux fenêtres arrondies. Au centre, parade l’îlot en placage chêne, dont les prises de main en massif sont relevées d’un insert de laiton. Sur celui-ci s’appuie de manière décentrée le coin repas, constitué par une banquette et une table bistrot.
Lors d’un rendez-vous chez un marbrier d’Île-de-France, le propriétaire a choisi lui même la tranche de quartzite du Brésil qui recouvre les plans de travail, « un matériau aux belles veines orangées et rouges, aussi beau que le marbre et aussi résistant que le granit », fait savoir la professionnelle.
Lors d’un rendez-vous chez un marbrier d’Île-de-France, le propriétaire a choisi lui même la tranche de quartzite du Brésil qui recouvre les plans de travail, « un matériau aux belles veines orangées et rouges, aussi beau que le marbre et aussi résistant que le granit », fait savoir la professionnelle.
Après. Le couloir d’entrée était éclairé par un rail métallique avec des spots, de même que l’ancienne salle à manger. Alix ne les trouvait pas cohérents avec l’enveloppe et, en passionnée d’éclairage, a pris la décision de sélectionner des modèles exclusifs. « Je ne voulais pas de quelque chose vu et revu. Ces clients m’avaient fait confiance et je souhaitais qu’ils aient un appartement unique, taillé pour eux », précise-t-elle.
Ici dans l’entrée, elle a sélectionné deux plafonniers à globes de chez Atelier Areti.
Buffet : Bolia Cuisine
Ici dans l’entrée, elle a sélectionné deux plafonniers à globes de chez Atelier Areti.
Buffet : Bolia Cuisine
Dans ce couloir, elle a également fait poser un vitrail pour remplacer la fenêtre en verre granité qui donnait sur une courette. « C’est un élément que l’on retrouve souvent dans les haussmanniens et j’en voulais un ici, pour donner de l’élégance à l’entrée et la faire vivre. Pour le dessiner, je me suis inspirée de la couronne de la statue de la Liberté car elle a été montée dans les anciens ateliers de fonderie Gaget-Gauthier qui se trouvaient à quelques numéros de cet immeuble », fait-elle savoir.
L’architecte d’intérieur a pris beaucoup de plaisir à le mettre au point avec la vitrailliste professionnelle, de la société l’Ame du vitrail. Notez bien les lignes imaginées par Alix avec une idée de rayonnement. Ce détail est devenu l’un des éléments forts de la rénovation.
L’architecte d’intérieur a pris beaucoup de plaisir à le mettre au point avec la vitrailliste professionnelle, de la société l’Ame du vitrail. Notez bien les lignes imaginées par Alix avec une idée de rayonnement. Ce détail est devenu l’un des éléments forts de la rénovation.
Après. La splendide pièce a été aménagée logiquement en salon et salle à manger. Sa configuration semble la même, avec son arche centrale, mais en réalité l’architecte d’intérieur a apporté une modification majeure que les amateurs de plans auront notée. « Nous avons détruit l’arche centrale pour la reconstruire en limitant la partie salle à manger pour donner plus d’ampleur au séjour. Cela nous a permis de créer une arche plus profonde, et arrondie pour plus de modernité », dévoile-t-elle.
Afin de gérer le manque de parquet en point de Hongrie, abîmé à la suite de la suppression de l’arche d’origine, sachez que le parquet de presque toute la pièce a été soulevé et reposé en fonction de la nouvelle arche, « en éliminant les grincements », précise Alix.
Applique : Allied Maker : Lampadaire : Paolo Castelli
Afin de gérer le manque de parquet en point de Hongrie, abîmé à la suite de la suppression de l’arche d’origine, sachez que le parquet de presque toute la pièce a été soulevé et reposé en fonction de la nouvelle arche, « en éliminant les grincements », précise Alix.
Applique : Allied Maker : Lampadaire : Paolo Castelli
Côté séjour, le mobilier a été souhaité tout en rondeur. Le canapé définitif n’était malheureusement pas arrivé le jour du shooting. Après avoir longtemps cherché la table basse aux proportions idéales, soit 1,50 mètre de diamètre environ, Alix a décidé de la créer sur mesure avec un plateau en quartzite, dans une couleur vert-de-gris, sur laquelle le propriétaire avait craqué le jour de la visite chez le marbrier.
Canapé : La Redoute ; Fauteuils : NV Gallery ; Tapis : Toulemonde Bochart
Canapé : La Redoute ; Fauteuils : NV Gallery ; Tapis : Toulemonde Bochart
Alix souhaitait ici retrouver le fil rouge du rayonnement déjà perçu sur le vitrail, aussi a-t-elle choisi ce lustre, création d’Henri Bursztyn. Pour la même raison, elle a fait plaquer la porte qui mène au salon télé avec une marqueterie de chêne imitant des rayons. « Je réemploierai cette solution car elle fait tout de suite son petit effet pour un prix raisonnable », glisse-t-elle.
À l’arrière, la sculpture est un lampadaire de Paolo Castelli acheté boulevard Saint-Germain tandis que, au-dessus de la cheminée, le miroir trumeau d’origine a été mis en valeur grâce à un encadrement peint en Hague Blue de Farrow&Ball.
À l’arrière, la sculpture est un lampadaire de Paolo Castelli acheté boulevard Saint-Germain tandis que, au-dessus de la cheminée, le miroir trumeau d’origine a été mis en valeur grâce à un encadrement peint en Hague Blue de Farrow&Ball.
La nouvelle arche, plus épaisse, n’est pas un caprice esthétique mais découle d’une vraie raison d’être technique. Grâce à cette reconstruction, il a été possible de cacher le volumineux caisson de la climatisation gainable et les enceintes Sonance encastrées de manière totalement invisible. Les deux unités extérieures de la climatisation, alimentant la partie jour et la partie nuit, ont quant à elles été placées sur chacun des balcons.
Vous êtes en quête d'un artisan pour votre projet en rénovation complète ?
Nous vous aidons à trouver les meilleurs pros
Nous vous aidons à trouver les meilleurs pros
Ces jolies bibliothèques encastrées dans l’arche ont été réalisées sur mesure d’après les dessins d’Alix. Le détail supérieur, constitué par une applique et des ajours en forme de pétales, reprend l’idée du rayonnement, tout en procurant une fonction bien particulière. « Ce sont les sorties d’air de la clim. J’ai dû dimensionner mes trous de sorte à trouver le parfait volume d’air diffusé qui corresponde aux préconisations de la marque », explique-t-elle.
Applique : Radar-Interior
Applique : Radar-Interior
Avant. L’autre côté de la double pièce de réception.
Après. La salle à manger a été installée dans la plus petite des parties de cette vaste pièce, rendue cossue par des rideaux en lin crème très épais fabriqués par une tapissière.
Les murs ont été intégralement peints en blanc. « Nous voulions que les moulures ressortent du mur telles des sculptures assez fines, ajoutant du relief plutôt que de la couleur comme c’était le cas auparavant », explique l’architecte d’intérieur. De part et d’autre de l’arche, des appliques bijoux en céramique, posées sur un fond de papier Élitis imitant le bois gougé, procurent un bel éclairage en soirée.
Fauteuil : Nana Freifrau ; Appliques : Spate by Bert Franck ; Console : La Redoute
Les murs ont été intégralement peints en blanc. « Nous voulions que les moulures ressortent du mur telles des sculptures assez fines, ajoutant du relief plutôt que de la couleur comme c’était le cas auparavant », explique l’architecte d’intérieur. De part et d’autre de l’arche, des appliques bijoux en céramique, posées sur un fond de papier Élitis imitant le bois gougé, procurent un bel éclairage en soirée.
Fauteuil : Nana Freifrau ; Appliques : Spate by Bert Franck ; Console : La Redoute
Au centre, la table en chêne Roche Bobois et ses chaises en velours sont dominées par une suspension centrale qui a valeur d’œuvre d’art. Pour ces clients en quête d’exclusivité, Alix a en effet sélectionné un modèle très particulier, créé par un créateur londonien. « Nous avons été voir ce lustre à Londres, chez Atelier 001, pour choisir les teintes. Ce duo or vieilli et vert-de-gris se mariait parfaitement à la quartzite de la table basse. Les clients étaient fiers que ce soit le premier lustre de cette marque posé en France ! » partage Alix. Les couleurs des chaises ont été choisies pour faire écho aux teintes de la suspension.
Chaises : Blume Pedrali
Chaises : Blume Pedrali
Avant. Dans l’angle de l’immeuble se trouvait la suite master, magnifique pièce en rotonde entourée de fenêtres.
Après. L’architecte d’intérieur a jugé regrettable d’assigner cette pièce en rotonde, située exactement à l’angle des couloirs, au rôle d’une simple chambre. Elle a donc décidé de la transformer en salon télé, prolongeant le double séjour en rouvrant un passage autrefois fermé. « À présent, le salon TV permet à davantage de membres de la famille de profiter de cet espace spacieux ! » s’enthousiasme-t-elle.
Pour faire de cette pièce un vrai cocon douillet, on l’a peinte dans un bleu (Ressource) contrasté par des détails en bleu foncé (Hague Blue de Farrow&Ball) puis équipée d’un canapé d’angle en tissu bouclé de chez Roche Bobois. « Le détail difficile était de se procurer des tringles arrondies qui suivent le contour de la pièce mais la tapissière qui a réalisé les rideaux occultants s’est adressée à un fournisseur de tringles. Les artisans sont de véritables relais pour nous, les architectes d’intérieur ! » leur rend-elle hommage.
Suspension : Atelier 01
Pour faire de cette pièce un vrai cocon douillet, on l’a peinte dans un bleu (Ressource) contrasté par des détails en bleu foncé (Hague Blue de Farrow&Ball) puis équipée d’un canapé d’angle en tissu bouclé de chez Roche Bobois. « Le détail difficile était de se procurer des tringles arrondies qui suivent le contour de la pièce mais la tapissière qui a réalisé les rideaux occultants s’est adressée à un fournisseur de tringles. Les artisans sont de véritables relais pour nous, les architectes d’intérieur ! » leur rend-elle hommage.
Suspension : Atelier 01
Conformément à la demande du propriétaire, le salon multimédia comporte un système sonore domotisé, qui permet d’envoyer le son à n’importe quelle pièce de la maison grâce à une application pilotable sur smartphone. Sous le téléviseur Sony Pro a été placée la « voix centrale » (une barre de son) tandis que quatre enceintes encastrées occupent les angles de la pièce afin de produire une sonorisation 5.1 enveloppante pour ces amateurs de cinéma.
Pour l’anecdote, et comme nous nous trouvons dans la pièce préférée du maître d’ouvrage – un grand fan de Lego – Alix a fait réaliser à son attention un tableau R2D2 tout en Lego par une entreprise spécialisée dans ce genre de prestations.
Pour l’anecdote, et comme nous nous trouvons dans la pièce préférée du maître d’ouvrage – un grand fan de Lego – Alix a fait réaliser à son attention un tableau R2D2 tout en Lego par une entreprise spécialisée dans ce genre de prestations.
Après. Alix estime que les couloirs sont souvent négligés en termes de décoration. Dans le but de redonner de la superbe à celui-ci, elle a varié les couleurs et les matériaux qui accompagnent le cheminement. Bien que la rénovation de ce couloir puisse sembler simple, elle a nécessité un travail important. « Nous avons retiré le lambris du plafond pour récupérer 50 centimètres de hauteur, puis nous avons rénové le parquet qui grinçait affreusement en posant des lames droites sur une chape », indique-t-elle en particulier.
Après. La salle de bains de gauche, anciennement en laque noire et miroirs, a été convertie en un magnifique dressing aménagé sur mesure. « La réalisation a été faite par mon menuisier avec des montants en chêne massif intégrant les prises de main et des portes agrémentées d’un papier peint Élitis, dont la texture tissu rappelle la fonctionnalité de la pièce. L’intérieur des placards est très beau, tout en chêne », apprécie Alix.
La chambre parentale a fait l’objet de recherches particulières à partir des souhaits des propriétaires d’une tête de lit travaillée sur la base de teintes bleu, or, et argent. Ils ont particulièrement apprécié l’idée de l’architecte d’intérieur de faire collaborer des artistes. Le duo parisien Redfield et Dattner, binôme de deux jeunes femmes spécialisées en peinture décorative, a orné de fresques quatre panneaux en médium, conférant rythme et volume à la tête du lit king size.
Alix avait bien préparé le terrain en travaillant en amont la palette des teintes et l’idée générale : « nous voulions mettre en avant les saisons de manière abstraite », partage-t-elle, études à l’appui.
Alix avait bien préparé le terrain en travaillant en amont la palette des teintes et l’idée générale : « nous voulions mettre en avant les saisons de manière abstraite », partage-t-elle, études à l’appui.
Une luxueuse salle de bains attenante se dévoile derrière une porte à galandage. Celle-ci fait la synthèse des teintes souhaitées par les propriétaires pour leur suite, faisant également ressurgir le marbre, un matériau très apprécié du maître des lieux.
Derrière la baignoire posée en semi-îlot et équipée d’une robinetterie Gessi, un panoramique évoque la nature. « C’est un papier peint waterproof de chez Wall&Déco, imprimé sur de la fibre de verre et recouvert de plusieurs couches de vernis hydrofuge. Il donne ici un côté organique et chaleureux », estime l’architecte d’intérieur.
Plus d’idées pour aménager une suite parentale sur Houzz
Derrière la baignoire posée en semi-îlot et équipée d’une robinetterie Gessi, un panoramique évoque la nature. « C’est un papier peint waterproof de chez Wall&Déco, imprimé sur de la fibre de verre et recouvert de plusieurs couches de vernis hydrofuge. Il donne ici un côté organique et chaleureux », estime l’architecte d’intérieur.
Plus d’idées pour aménager une suite parentale sur Houzz
Les dalles de céramique, posées « à livre ouvert », s’assortissent au meuble double vasque en marbre véritable et chêne. Au sol a été posée une autre céramique imitant le marbre bleu. « J’adore cette salle de bains dans laquelle on peut rêver dans la baignoire en écoutant la musique que l’on a intégrée au plafond et dans la tête de lit », confie Alix.
Après. Cette grande chambre, attribuée au garçon, a été aménagée sur mesure avec un lit pont. Des façades Plum en cannage, qui font un clin d’œil au revêtement mural d’origine, contrastent joliment avec la teinte « amande grisée » des placards.
Avant. La chambre 4 avant travaux.
Après. La chambre de la jeune fille, contiguë et de même taille, a reçu le même traitement que celle de son frère, personnalisée toutefois avec du lambris teinté et non du cannage.
Avant. Ces toilettes, qui donnaient sur le couloir du côté des chambres, ont gardé leur place, de même que la salle de bains contiguë. Ce sont désormais les sanitaires des enfants.
Après. S’il y a bien un endroit où l’on peut s’amuser avec la couleur, c’est dans les sanitaires, aussi Alix s’en est-elle donné à cœur joie en convoquant dans les pièces d’eau des enfants les couleurs les plus vives que l’on retrouve dans cette rénovation : rouge étrusque et turquoise, vert-de-gris.
Dans le couloir flotte une suspension en papier repoussé collé sur une feuille de laiton. Elle émane d’Anne-Charlotte Saliba, une artiste qu’apprécie particulièrement l’architecte d’intérieur pour ses productions « très poétiques ».
À noter que le dressing existant a été métamorphosé en une buanderie fonctionnelle dont, malheureusement, nous n’avons pas de visuels.
Dans le couloir flotte une suspension en papier repoussé collé sur une feuille de laiton. Elle émane d’Anne-Charlotte Saliba, une artiste qu’apprécie particulièrement l’architecte d’intérieur pour ses productions « très poétiques ».
À noter que le dressing existant a été métamorphosé en une buanderie fonctionnelle dont, malheureusement, nous n’avons pas de visuels.
Dans les toilettes, figure un papier peint de Pierre Frey représentant une jungle avec des tigres et des oiseaux. « J’adore l’idée d’utiliser des papiers peints à petits motifs où l’on peut découvrir mille détails en étant aux toilettes », plaisante-t-elle.
La salle de bains a été pavée d’une imitation de carreaux de ciment, un coup de cœur partagé par la professionnelle et les propriétaires. Ce sol a donné l’impulsion au décor mural original, en zelliges turquoise trapézoïdaux et fresque de papier peint Wall&Déco représentant un héron.
Après. Dans l’ancienne cuisine, figurait une seconde porte d’entrée donnant sur l’escalier de service, conformément à la tradition des appartements haussmanniens. Cette entrée était autrefois réservée aux domestiques, lorsque les propriétaires de ces grands appartements avaient un personnel de maison. Aussi, il a été décidé de convertir l’ancienne cuisine et l’ancien sas en studio indépendant, pour servir de chambre d’amis et de bureau de télétravail pour les propriétaires.
Le « studio » a été peint en rouge, couleur très appréciée par les maîtres d’ouvrage et équipée d’un canapé convertible. N’oublions pas de mentionner que l’intégralité des fenêtres de l’appartement ont été changées à l’identique avec du triple vitrage sur rue pour un bénéfice phonique renforcé, et du double vitrage sur cour.
Après. La salle de bains attenante a été aménagée dans l’ancien sas. La douche – qui occupe l’emplacement de l’ancien passage de porte – a été carrelée en zelliges d’un beige rosé et le sol recouvert d’une mosaïque de carrelages hexagonaux formant un motif fleuri.
Ce chantier a été une véritable épreuve pour la professionnelle qui a coordonné diverses entreprises pendant un an. Électriciens, peintres, poseurs de parquet, remplacement de fenêtres, vitrailliste, menuisiers, tapissiers, climaticiens, spécialistes des alarmes, marbrier, chauffagiste, installation média, TV, Box et sonorisation ont participé à ce projet complexe. « Je remercie infiniment mes clients qui m’ont fait confiance plutôt qu’un grand cabinet d’architecture. J’ai investi énormément de temps et d’énergie dans ce chantier, venant sur place trois fois par semaine pendant douze mois, mais cela m’a permis de gagner en confiance. C’est un projet dont je suis extrêmement fière, un accomplissement pour moi qui ai choisi mon métier en classe de troisième ! », conclut Alix avec gratitude.
Ce chantier a été une véritable épreuve pour la professionnelle qui a coordonné diverses entreprises pendant un an. Électriciens, peintres, poseurs de parquet, remplacement de fenêtres, vitrailliste, menuisiers, tapissiers, climaticiens, spécialistes des alarmes, marbrier, chauffagiste, installation média, TV, Box et sonorisation ont participé à ce projet complexe. « Je remercie infiniment mes clients qui m’ont fait confiance plutôt qu’un grand cabinet d’architecture. J’ai investi énormément de temps et d’énergie dans ce chantier, venant sur place trois fois par semaine pendant douze mois, mais cela m’a permis de gagner en confiance. C’est un projet dont je suis extrêmement fière, un accomplissement pour moi qui ai choisi mon métier en classe de troisième ! », conclut Alix avec gratitude.
Budget détaillé travaux :
Constat d’huissier : 384,08 € TTC
Architecte de l’immeuble : 342 € TTC
Chauffagiste de l’immeuble : 5 010,50 € TTC
Démolition : 21 670 € TTC
Électricité : 51 920 € TTC
Maçonnerie : 74 734 € TTC
Parquet : 41 372,10 € TTC
Plomberie : 53 317 € TTC
Chauffage individuel : 52 808,80 € TTC
Peinture : 80 162,50 € TTC
Menuiserie totale : environ 120 000 € TTC avec pose
Fenêtres : environ 70 000 € TTC avec pose
Meljac interrupteurs/prises : 15 000 € TTC
Marbrier : 40 000 € TTC
Rideaux : 25 000 € TTC
Œuvre tête de lit parents : 8 000 € TTC
Multimédia : 20 548,94 € TTC
Alarme : 4 790,23 € TTC
Vitrailliste : 8 043,32 € TTC
Climatisation : 52 730,70 € TTC
ET VOUS ?
Que pensez-vous de cette rénovation ?
Constat d’huissier : 384,08 € TTC
Architecte de l’immeuble : 342 € TTC
Chauffagiste de l’immeuble : 5 010,50 € TTC
Démolition : 21 670 € TTC
Électricité : 51 920 € TTC
Maçonnerie : 74 734 € TTC
Parquet : 41 372,10 € TTC
Plomberie : 53 317 € TTC
Chauffage individuel : 52 808,80 € TTC
Peinture : 80 162,50 € TTC
Menuiserie totale : environ 120 000 € TTC avec pose
Fenêtres : environ 70 000 € TTC avec pose
Meljac interrupteurs/prises : 15 000 € TTC
Marbrier : 40 000 € TTC
Rideaux : 25 000 € TTC
Œuvre tête de lit parents : 8 000 € TTC
Multimédia : 20 548,94 € TTC
Alarme : 4 790,23 € TTC
Vitrailliste : 8 043,32 € TTC
Climatisation : 52 730,70 € TTC
ET VOUS ?
Que pensez-vous de cette rénovation ?

















































Qui vit ici ? Un couple de trentenaires avec leur fils et leur fille de 6 et 8 ans.
Emplacement : quartier Courcelles à Paris 17ᵉ, au 5ᵉ étage d’un immeuble haussmannien
Superficie : 230 m²
Livraison de l’appartement : 2023
Durée des travaux : 9 mois après 3 mois de conception
Architecte d’intérieur : Alix Bresson (Paris 13ᵉ)
Budget travaux : 730 000 € TTC (détaillé en fin d’article)
Budget mobilier et déco : 200 000 € TTC
Honoraires et suivi de chantier : 20 000 € TTC pour la conception + 10 % du montant HT des travaux
Photos : Jérémy Dubois