Avant/Après : Inspiration seventies pour ce trois-pièces à Pantin
Découvrez l'appartement familial de l'architecte d'intérieur Clémentine Pautrot, fondatrice de Studio Zerck
Clémentine Pautrot et son mari vivaient auparavant en plein cœur de la capitale, en location dans un appartement de 50 m². Avec l’arrivée d’un premier enfant, le couple a décidé de franchir le périphérique pour acquérir un premier bien et gagner quelques mètres carrés en plus. Perché au huitième étage d’un immeuble des années 70, le cocon de 74 m² baigné de lumière jouit d’une vue imprenable sur les toits de Pantin. « Nous étions à la recherche d’un bien à refaire entièrement. Cet appartement atypique, qui n’avait pas bénéficié de travaux de rénovation depuis de nombreuses années, correspondait parfaitement à nos envies », nous livre l’architecte d’intérieur.
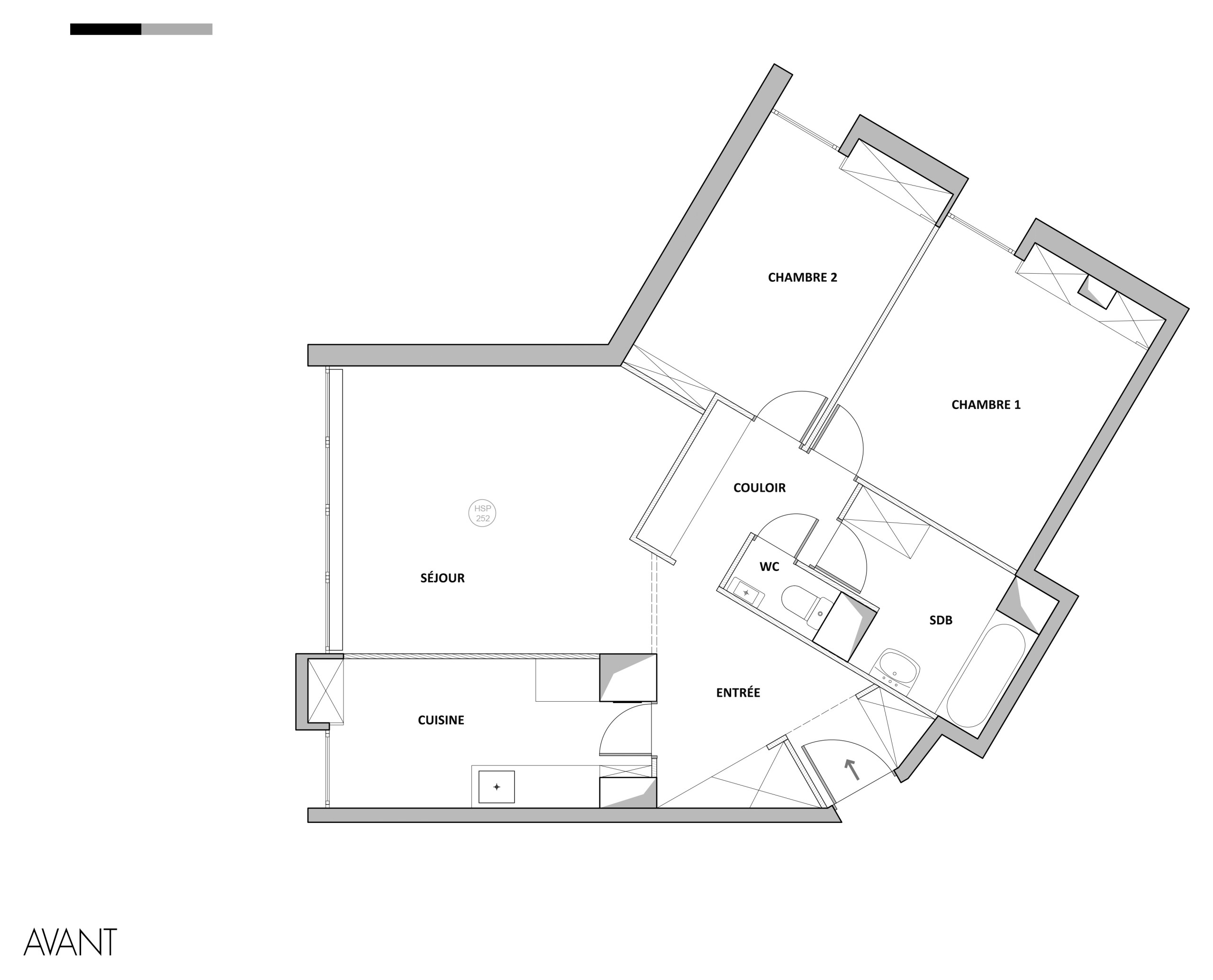
Avant. L’appartement, qui était en location depuis de nombreuses années, était resté dans son jus. Il était nécessaire de lui offrir une nouvelle jeunesse. « Nous aurions pu conserver la configuration d’origine mais, pour bénéficier d’une pièce à vivre plus spacieuse, nous avons restructuré certains espaces. Nous avons décidé de conserver les blocs nuit et jour à leur emplacement initial tout en remodelant les zones de circulation », explique l’architecte d’intérieur.
Après. La plupart des cloisons ont été déposées, notamment pour ouvrir la cuisine sur l’entrée et le séjour. La superficie de la chambre parentale et de la salle de bains ont également été réduites pour agrandir la pièce à vivre et créer un nouvel espace de circulation.
Avant. L’ancienne entrée, auparavant inexploitée, a été repensée par l’architecte d’intérieur.
Après. Ici, le couple a opté pour un filtre en tôle perforée qui permet de délimiter les zones tout en laissant passer la lumière. Ce même matériau a été utilisé pour réaliser les cache-radiateurs des chambres et du séjour. À gauche, un placard toute hauteur en medium peint et un banc-coffre ont été créés pour gagner en surface de stockage.
Vous cherchez un architecte d’intérieur ?
Vous cherchez un architecte d’intérieur ?
Avant. Aucun élément d’origine n’a été conservé hormis cette tablette en bois placée au niveau de la baie vitrée. Restaurée, celle-ci fait désormais office de banc lorsque le couple reçoit.
Après. « Inspirés par l’esprit seventies des lieux, nous avons pris le parti d’installer un lino gris clair pour habiller la pièce à vivre. Ce revêtement de sol souple, avec son aspect minéral, met en valeur les éléments en bois, notamment la table de salle à manger et la crédence de la cuisine », nous livre Clémentine. Celui-ci s’associe à une teinte vert amande, qui adoucit l’ensemble en formant un joyeux contraste avec le canapé bleu roi.
La pièce à vivre, d’une superficie d’environ 40 m², accueille une grande bibliothèque réalisée à l’aide de caissons de cuisine soulignés par un Valchromat anthracite. Dans le prolongement de cette structure toute hauteur, les éléments bas accueillent des platines. « L’installation d’un vidéoprojecteur dans la bibliothèque a orienté les aménagements du salon. Nous avons imaginé un grand volume de rangement aux lignes graphiques, capable de loger sono, vidéo, livres et vinyles », précise Clémentine.
Caissons : Ikea ; Revêtement de sol : Tarkett ; Peinture : Little Greene, Aquamarine Deep ; Table basse : AM.PM ; Fauteuil à bascule : Eames, Vitra ; Liseuse : Artemide
La pièce à vivre, d’une superficie d’environ 40 m², accueille une grande bibliothèque réalisée à l’aide de caissons de cuisine soulignés par un Valchromat anthracite. Dans le prolongement de cette structure toute hauteur, les éléments bas accueillent des platines. « L’installation d’un vidéoprojecteur dans la bibliothèque a orienté les aménagements du salon. Nous avons imaginé un grand volume de rangement aux lignes graphiques, capable de loger sono, vidéo, livres et vinyles », précise Clémentine.
Caissons : Ikea ; Revêtement de sol : Tarkett ; Peinture : Little Greene, Aquamarine Deep ; Table basse : AM.PM ; Fauteuil à bascule : Eames, Vitra ; Liseuse : Artemide
Avant. Autrefois cloisonnée, la cuisine aux aménagements vétustes s’est métamorphosée en un espace contemporain qui joue la carte du contraste.
Après. « L’idée était de créer une cuisine linéaire épurée et fonctionnelle, sans perte de place. Avant même d’emménager ici, nous avions imaginé un décor tranché, mariant éléments noirs et bois clair », précise l’architecte d’intérieur. On retrouve le Valchromat anthracite sur le plan de travail tandis que le mur se pare d’un panneau en stratifié effet noyer clair. Pour compléter le décor, une série de poignées en métal noir habille les façades monochromes.
Cuisine : Ikea ; Panneau mural : Polyrey ; Poignées : La Quincaillerie ; Mitigeur : Grohe
Cuisine : Ikea ; Panneau mural : Polyrey ; Poignées : La Quincaillerie ; Mitigeur : Grohe
L’espace salle à manger reprend les codes couleurs du linéaire en associant deux iconiques, une table en bois Le Corbusier et une série de chaises noires signée Mallet Stevens.
Table : Cassina, LC6, Le Corbusier ; Chaises : Mallet Stevens
Table : Cassina, LC6, Le Corbusier ; Chaises : Mallet Stevens
Avant. Sur le plan initial, l’espace de circulation était mal conçu. Le long couloir menant aux chambres, à la salle de bains et aux WC a été rétréci et aménagé pour optimiser chaque mètre carré.
Un système de bibliothèque toute hauteur, composé de fines lames en métal blanc, s’y intègre désormais parfaitement.
Un système de bibliothèque toute hauteur, composé de fines lames en métal blanc, s’y intègre désormais parfaitement.
Après. Dans cette zone, le couple a misé sur un rouge cerise qui dynamise le décor. « L’idée était de trouver une transition harmonieuse entre la teinte du salon, de la chambre et de la salle de bains. Après plusieurs essais de couleurs, nous avons choisi ce rouge intense », précise Clémentine.
Peinture : Little Greene, Baked Cherry ; Étagères : Teabooks
Peinture : Little Greene, Baked Cherry ; Étagères : Teabooks
La chambre parentale a été légèrement rétrécie pour créer cette nouvelle circulation. Ici aussi, la couleur structure l’espace, associée à une épaisse moquette beige grisé. « Nous avons maximisé les espaces de rangement dans les chambres. Ici, deux penderies réalisées sur mesure intègrent une série de niches ouvertes devant un conduit existant », explique l’architecte d’intérieur.
Moquette : Saint Maclou ; Peinture : Little Greene, Pleat ; Poignées en noyer : La Quincaillerie ; Tête de lit en lin : La Redoute
Moquette : Saint Maclou ; Peinture : Little Greene, Pleat ; Poignées en noyer : La Quincaillerie ; Tête de lit en lin : La Redoute
De l’autre côté, un grand placard équipé de portes coulissantes effet noyer réchauffe l’ambiance.
Placard : Ikea
Placard : Ikea
Avant. Dans la chambre d’enfant, la porte d’entrée a été déplacée pour créer un accès depuis le nouveau couloir plutôt que le séjour.
Après. Cet espace au design sobre et épuré reprend le lino de la pièce à vivre. « Robuste et facile d’entretien, c’est un matériau particulièrement adapté à une chambre d’enfant. Nous avons ajouté un grand tapis pour une touche cocooning », précise Clémentine. Un grand placard réalisé sur mesure a trouvé sa place au-dessus du radiateur, complété par une petite commode.
Rideau : Kenzo ; Ampoule : Muuto
Rideau : Kenzo ; Ampoule : Muuto
Avant. La salle de bains avait elle aussi besoin d’un bon coup de pinceau pour être remise au goût du jour.
Après. Le couple a pris le parti d’une salle de bains haute en couleurs, avec cette teinte rose orangé mariée à un gris minéral. « Nous avons eu un véritable coup de cœur pour ce grès cérame grand format gris réveillé par quelques éclats de couleur. Afin de minimiser l’emploi de différents matériaux dans cet espace, nous avons décliné ce carrelage sur le sol et les murs, mais aussi la crédence et le plan de travail », explique Clémentine.
Peinture : Sikkens ; Carrelage : Surface ; Placards : Ikea ; Poignées : La Quincaillerie ; Appliques : Zangra ; Baignoire et vasque : Jacob Delafon
ET VOUS ?
Que pensez-vous de cette rénovation ?
Trouvez des professionnels près de chez vous sur Houzz
Plus de photos déco
Découvrez d’autres avant/après
ET VOUS ?
Que pensez-vous de cette rénovation ?
Trouvez des professionnels près de chez vous sur Houzz
Plus de photos déco
Découvrez d’autres avant/après
























Emplacement : à Pantin
Superficie : 74 m²
Durée des travaux : 2 mois
Architecte d’intérieur : Clémentine Pautrot, Studio Zerck
Le point de départ ? Miser sur un mix & match de couleurs intenses. Le vert amande s’entrechoque avec un noir profond, tandis que le rose orangé se frotte à un rouge éclatant et à un vert bleuté.