Dossiers populaires
Avant/Après : Un 72 m2 parisien gagne une chambre supplémentaire
Un appartement familial du XVIIe arrondissement parisien reprend vie, inspiré par la nature
La propriétaire des lieux vit dans cet appartement du XVIIe arrondissement parisien depuis une dizaine d’années avec ses deux enfants de 16 et 17 ans. Niché au deuxième étage d’un immeuble du début du XXe siècle, ce 72 m² ne disposait que de deux chambres. La propriétaire avait installé son espace nuit dans le séjour. On trouvait donc un lit, la table de salle à manger ainsi que le canapé dans le même espace.
Grâce à l’intervention de l’architecte d’intérieur Sarah Hunt-Knights, fondatrice de l’agence SHK Architecture, ce lieu de vie s’est transformé en un cocon cosy, fonctionnel et lumineux. « Il n’y avait auparavant pas de lieu de convivialité où cette famille pouvait se rassembler ou recevoir des amis puisque la salle à manger servait également de chambre. Il était impératif de repenser entièrement la configuration des lieux pour créer une troisième chambre », explique Sarah.
Grâce à l’intervention de l’architecte d’intérieur Sarah Hunt-Knights, fondatrice de l’agence SHK Architecture, ce lieu de vie s’est transformé en un cocon cosy, fonctionnel et lumineux. « Il n’y avait auparavant pas de lieu de convivialité où cette famille pouvait se rassembler ou recevoir des amis puisque la salle à manger servait également de chambre. Il était impératif de repenser entièrement la configuration des lieux pour créer une troisième chambre », explique Sarah.
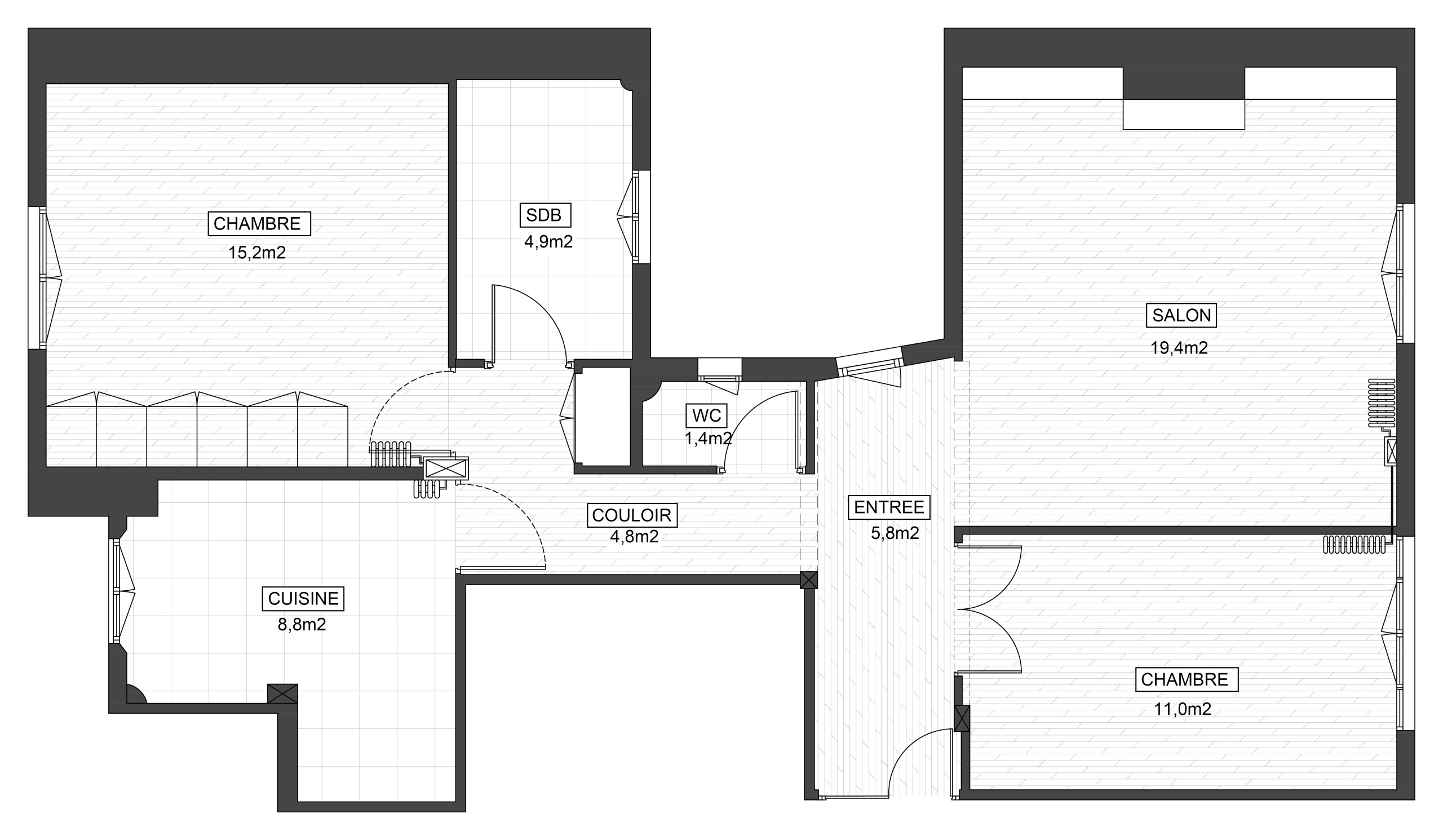
Avant. Dans cet appartement qui était resté dans son jus, il y avait beaucoup d’espace perdu, notamment un long couloir et une entrée autrefois très encombrée.
La chambre du garçon, d’une superficie de 15 m², était divisée en deux par une portion de cloison tandis que la jeune fille dormait dans la deuxième chambre, située à côté de l’ancien salon.
Le brief de départ impliquait de créer une chambre supplémentaire ainsi qu’une cuisine ouverte contemporaine, de maximiser les espaces de rangement et d’apporter de la lumière dans cet appartement sombre donnant sur une cour aveugle.
Trouvez un architecte d’intérieur sur Houzz
La chambre du garçon, d’une superficie de 15 m², était divisée en deux par une portion de cloison tandis que la jeune fille dormait dans la deuxième chambre, située à côté de l’ancien salon.
Le brief de départ impliquait de créer une chambre supplémentaire ainsi qu’une cuisine ouverte contemporaine, de maximiser les espaces de rangement et d’apporter de la lumière dans cet appartement sombre donnant sur une cour aveugle.
Trouvez un architecte d’intérieur sur Houzz
L’ancienne cuisine indépendante, située loin du salon, était vieillotte et peu fonctionnelle. Celle-ci a été transformée en espace nuit tandis que la vaste chambre de 15 m² a été rétrécie afin de créer un grand dressing pour toute la famille, agrémenté d’une buanderie.
Après. Pour optimiser les espaces, l’architecte d’intérieur a remodelé toute la configuration des lieux, notamment en tirant parti des zones de circulation pour y créer une cuisine ouverte sur la salle à manger.
Avant. « L’entrée, d’une superficie de 6 m², était mal agencée. On y trouvait des meubles d’appoint qui encombraient l’espace inutilement tandis que l’ancien couloir était très sombre, ne disposant pas de fenêtre », précise Sarah.
Après. L’entrée a été entièrement décloisonnée pour optimiser la superficie de la nouvelle pièce à vivre. À gauche, une portion de cloison agrémentée d’un panneau vitré renferme un poteau existant qui ne pouvait être déplacé. Celle-ci délimite les espaces salon et entrée tout en accueillant un coin bureau au look rétro.
Aujourd’hui méconnaissable, cet appartement s’inspire principalement de la nature, habillé d’une palette de teintes végétales. « Dans l’entrée, la bibliothèque en medium se pare d’une délicate teinte verte, qui s’accorde à merveille avec ce papier peint poétique aux motifs d’oiseaux. Pour apporter un maximum de clarté et créer une ambiance joyeuse, j’ai imaginé dans ce havre de paix une ambiance exotique mêlant bois sombre et vert », commente l’architecte d’intérieur.
Peinture : Breakfast Room Green, Farrow & Ball ; Papier peint : White Birds, Bien Fait Paris
Aujourd’hui méconnaissable, cet appartement s’inspire principalement de la nature, habillé d’une palette de teintes végétales. « Dans l’entrée, la bibliothèque en medium se pare d’une délicate teinte verte, qui s’accorde à merveille avec ce papier peint poétique aux motifs d’oiseaux. Pour apporter un maximum de clarté et créer une ambiance joyeuse, j’ai imaginé dans ce havre de paix une ambiance exotique mêlant bois sombre et vert », commente l’architecte d’intérieur.
Peinture : Breakfast Room Green, Farrow & Ball ; Papier peint : White Birds, Bien Fait Paris
Avant. L’ancien WC a été déplacé pour créer la nouvelle cuisine. « Supprimer le WC et les cloisons a permis d’apporter un maximum de lumière dans la pièce à vivre », précise Sarah.
Après. La propriétaire des lieux souhaitait créer une cuisine ouverte sur la salle à manger pour organiser des dîners en famille et recevoir ses amis.
L’ancien parquet orangé, très sombre, a été remplacé pour apporter plus de clarté. « Nous avons conservé le parquet d’origine dans deux pièces — l’ancien salon transformé en chambre ainsi que dans l’un des espaces nuit. Dans le reste de l’appartement, nous avons installé un parquet en chêne clair », explique Sarah.
Parquet : Koval
Parquet : Koval
La nouvelle cuisine suit les lignes de la façade de l’immeuble tandis qu’une cloison en angle a été ajoutée pour agrandir la chambre de la propriétaire des lieux.
Des éléments bas ont été privilégiés côté fenêtre afin d’accueillir le lave-vaisselle, les plaques de cuisson, le four et l’évier. Les façades, créées sur mesure, évoquent une essence de bois exotique formant un contraste fort avec l’élégant plan de travail en Silestone finition Calacatta.
Façades : Oberflex
Des éléments bas ont été privilégiés côté fenêtre afin d’accueillir le lave-vaisselle, les plaques de cuisson, le four et l’évier. Les façades, créées sur mesure, évoquent une essence de bois exotique formant un contraste fort avec l’élégant plan de travail en Silestone finition Calacatta.
Façades : Oberflex
En face, des meubles toute hauteur de faible profondeur permettent de stocker la nourriture et le petit électroménager. Une vitrine a été intégrée à ces meubles provenant de la grande distribution pour animer le linéaire et mettre en valeur la jolie vaisselle de la propriétaire des lieux.
Vitrines : La Redoute ; Caissons : Ikea, façades sur mesure en medium peint ; Poignées en laiton : La Quincaillerie ; Appliques en porcelaine : Original BTC
Vitrines : La Redoute ; Caissons : Ikea, façades sur mesure en medium peint ; Poignées en laiton : La Quincaillerie ; Appliques en porcelaine : Original BTC
Une structure toute hauteur, réalisée sur mesure en medium peint, fait office de bibliothèque et de meuble TV, accueillant également une série de placards en partie basse. Le coin salle à manger mise, quant à lui, sur des matériaux naturels en associant une table ronde en bois au design rétro à une série de chaises dépareillées et un tapis en jute. À droite, on aperçoit la porte menant à la nouvelle chambre parentale.
Suspension en verre et laiton : La Redoute
Suspension en verre et laiton : La Redoute
Avant. La taille de l’ancien salon, qui servait également d’espace nuit pour la propriétaire des lieux, a été réduite pour créer la chambre parentale.
Après. Cette nouvelle chambre au design épuré reprend les codes de la pièce à vivre, avec un panoramique de jungle exotique, associé à une suspension en rotin et une commode en bois clair.
Suspension en rotin : Drawer ; Papier peint : Banana Tree, Au fil des Couleurs ; Appliques : La Redoute
Suspension en rotin : Drawer ; Papier peint : Banana Tree, Au fil des Couleurs ; Appliques : La Redoute
Avant. L’ancienne salle de bains était complètement démodée avec cette vasque vieillotte et ce carrelage au motif floral.
Après. « Dans la nouvelle salle de bains, nous avons créé une verrière équipée de vitres sablées pour apporter de la lumière naturelle dans le dressing attenant », précise Sarah.
Le papier peint au motif floral s’harmonise avec un meuble en teck réalisé sur mesure et un grand miroir en laiton doré aux accents vintage.
Papier peint : Jungle, Little Greene
Papier peint : Jungle, Little Greene
Toute la salle de bains a été traitée en blanc pour s’associer à un terrazzo black & white qui apporte beaucoup de cachet à cet espace.
Terrazzo : Carrément Victoire
Terrazzo : Carrément Victoire
Pour compléter ce décor contemporain, la robinetterie et les étagères en métal affichent un total look black.
Appliques : ilightyou.com ;
Miroir : La Redoute ; Vasques : masalledebain.com ; Étagères : Drawer
Appliques : ilightyou.com ;
Miroir : La Redoute ; Vasques : masalledebain.com ; Étagères : Drawer
Un coin vasque a également été créé dans l’espace de dégagement situé devant le dressing.
Un grand miroir sur mesure est surmonté par deux étagères permettant de poser quelques objets de décoration. Dessous, le meuble vasque, sur mesure également, se pare d’un plan de travail effet noyer.
Vasque et robinetterie : masalledebain ; Plan de travail : Ikea
Vasque et robinetterie : masalledebain ; Plan de travail : Ikea
Le vaste dressing, qui accueille la garde-robe de toute la famille ainsi qu’un espace buanderie, est sobre et fonctionnel. Des caissons sur mesure surmontés par des éléments provenant de la grande distribution se parent de portes en médium peint et d’élégantes poignées en laiton pour apporter une touche précieuse à l’ensemble.
Caissons : Ikea ; Poignées : La Quincaillerie
ET VOUS ?
Que pensez-vous de cette rénovation ?
Trouvez des professionnels près de chez vous sur Houzz
Plus de photos déco
Découvrez d’autres Avant/Après
Caissons : Ikea ; Poignées : La Quincaillerie
ET VOUS ?
Que pensez-vous de cette rénovation ?
Trouvez des professionnels près de chez vous sur Houzz
Plus de photos déco
Découvrez d’autres Avant/Après





























Qui vit ici : une mère et ses deux enfants
Emplacement : dans le XVIIe arrondissement parisien
Superficie : 72 m²
Durée des travaux : 4 mois
Budget : 100 000 € TTC (avec fournitures et éléments de décoration)
Architecte d’intérieur : Sarah Hunt-Knights, fondatrice de l’agence SHK Architecture
Photographe : Gerald Knights