Bonjour à tous,
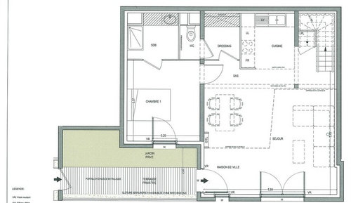
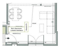
J'ai besoin de conseils pour créer mon entrée qui donne directement dans mon salon.
J'aurais aimé installer une cloison amovible mais avec la double-hauteur c'est impossible.
J'ai joint mon plan et quelques photos.
Merci à tous pour vos retours.
Alchimie du Décor
blazinhoAuteur d'origine
Discussions associées
Comment aménager mon entrée-salon ? Que faire?
Q
Séparer le coin cuisine et créer une entrée
Q
Créer une entrée dans un espace restreint ?
Q
Comment puis je stylisée mon entrée de maison ?
Q