Visites Privées
Projets nés sur Houzz
Avant/Après : Ce graphique micro-loft de 16 m2 a tout d'un grand
En plein cœur du marais parisien, l’optimisation tout en contrastes d'une studette destinée à la location hôtelière
Au rez-de-chaussée sur cour d’un immeuble parisien du 3ᵉ arrondissement, ce micro-appartement d’exactement 16,6 m² se destine à la location meublée. Le propriétaire le possède depuis quelques années et l’a déjà rénové une première fois intégralement, mais les retours de ses visiteurs pointent deux défauts majeurs qu’il est nécessaire de corriger. Plus qu’une simple refonte ergonomique, le propriétaire est également en attente d’un décor qui fera repérer la studette face à la rude concurrence. Dans ce but, il fait appel à Alicia Oustry d’Ameo Concept, une architecte d’intérieur dont il a découvert sur Houzz les talents en la matière.
Avant. Proposer à la location pour un couple une studette de moins de 17 m² est un défi car il est nécessaire de faire oublier le peu de superficie habitable en offrant de jolies contreparties. En plein cœur du Marais, cette mini-surface avait pour elle sa belle situation et cet autre atout qui avait séduit son propriétaire lorsqu’il l’avait achetée : son atypique hauteur sous plafond de 3,10 mètres. Celle-ci lui a permis de placer le lit double au-dessus de la salle d’eau sur une mezzanine et de dégager à l’avant une pièce de vie carrée de 12 m², éclairée par la seule porte-fenêtre d’entrée.
Après. Une fois mise à la location, la studette a toutefois rencontré plusieurs critiques. Les visiteurs ont souligné le peu de rangements disponibles et un autre problème plus gênant encore, à savoir le manque de hauteur d’échappée de l’escalier qui faisait que les locataires se cognaient régulièrement en montant sur la mezzanine. Pour couronner l’état des lieux, le décor noir et blanc, choisi à l’origine pour sa consensualité, était sombre et avait du mal à tirer son épingle du jeu face à la concurrence.
« Cette petite surface était un véritable challenge », résume Alicia Oustry, l’architecte d’intérieur sélectionnée par le propriétaire pour son habileté à rendre désirables des espaces difficiles.
Trouvez un architecte d’intérieur près de chez vous sur Houzz
« Cette petite surface était un véritable challenge », résume Alicia Oustry, l’architecte d’intérieur sélectionnée par le propriétaire pour son habileté à rendre désirables des espaces difficiles.
Trouvez un architecte d’intérieur près de chez vous sur Houzz
« La clé du nouvel aménagement repose sur l’escalier magistral, conçu comme un meuble sculpture », dévoile Alicia, qui a d’abord posé cet élément dans ses plans avant de construire autour un gracieux univers graphique en se basant sur une « inspiration Mondrian libre ». L’escalier a été à la fois agrandi et avancé dans la surface, de sorte à commencer dès l’entrée de la pièce, sur la droite.
En résulte un gain de place notable sous l’escalier, astucieusement exploité. Il permet en particulier de ranger des poufs qui peuvent servir d’assises supplémentaires ou de bouts de canapé mais ce n’est pas tout.
Table basse : Westwing ; poufs : The Cool Republic
En résulte un gain de place notable sous l’escalier, astucieusement exploité. Il permet en particulier de ranger des poufs qui peuvent servir d’assises supplémentaires ou de bouts de canapé mais ce n’est pas tout.
Table basse : Westwing ; poufs : The Cool Republic
« Le dessous de l’échelle constituait une place totalement perdue. Nous avons prolongé l’une des marches dans un esprit multifonction afin de créer un coin de travail/repas sous l’escalier », explique-t-elle. Afin de maximiser les perspectives, l’architecte d’intérieur a également fait usage d’une ruse bien connue dans les petits espaces en faisant installer un miroir sous les deux tiers du nouvel escalier.
9 erreurs à éviter quand on aménage un studio
9 erreurs à éviter quand on aménage un studio
Compte tenu de la petite taille de la studette, elle a décidé, en accord avec le propriétaire, de remplacer le canapé-lit initial par un modèle fixe en velours bleu nuit, à la fois élégant et confortable. Au-dessus du canapé, impossible de laisser l’espace vide jusqu’au garde-corps de la mezzanine. « Il ne faut jamais laisser de repos à l’œil pour faire oublier les volumes exigus », justifie la professionnelle.
Alicia a réalisé elle-même l’œuvre graphique en se fondant sur les célèbres Composition de Mondrian, l’un des pères de l’art abstrait au début du XXᵉ siècle. Encadrée de deux appliques minimalistes de chez The Masie, elle l’a conçue avec des tasseaux, quelques notes bleues et terracotta et des miroirs pour ajouter de l’éclat et de la profondeur. « Une bonne astuce budget », glisse-t-elle.
Quant à la lampe qui se balance gracieusement au plafond, c’est un mobile qui occupe généreusement l’espace et attire les yeux vers le haut.
Canapé Julian chez Maisons du monde ; applique Galel chez Le Maisie
Alicia a réalisé elle-même l’œuvre graphique en se fondant sur les célèbres Composition de Mondrian, l’un des pères de l’art abstrait au début du XXᵉ siècle. Encadrée de deux appliques minimalistes de chez The Masie, elle l’a conçue avec des tasseaux, quelques notes bleues et terracotta et des miroirs pour ajouter de l’éclat et de la profondeur. « Une bonne astuce budget », glisse-t-elle.
Quant à la lampe qui se balance gracieusement au plafond, c’est un mobile qui occupe généreusement l’espace et attire les yeux vers le haut.
Canapé Julian chez Maisons du monde ; applique Galel chez Le Maisie
À gauche du canapé se trouve la porte vers la salle de bains existante. Pour une raison de budget autant que dans le souci éthique de ne pas déposer une zone récente et fonctionnelle, cette salle de bains à la généreuse douche de 140 centimètres de long n’a pas été modifiée.
En revanche, une nouvelle et mystérieuse porte a vu le jour sur la droite du canapé, de manière symétrique. « Grâce au déport de l’escalier, nous avons gagné un bel espace de 110×65 centimètres, totalement perdu auparavant, et l’avons transformé en dressing », révèle Alicia, heureuse d’avoir relevé le défi de dégager un grand rangement dans une si petite surface.
En revanche, une nouvelle et mystérieuse porte a vu le jour sur la droite du canapé, de manière symétrique. « Grâce au déport de l’escalier, nous avons gagné un bel espace de 110×65 centimètres, totalement perdu auparavant, et l’avons transformé en dressing », révèle Alicia, heureuse d’avoir relevé le défi de dégager un grand rangement dans une si petite surface.
Vous êtes en quête d'un artisan pour votre projet en rénovation complète ?
Nous vous aidons à trouver les meilleurs pros
Nous vous aidons à trouver les meilleurs pros
Après. « Nous avons réalisé un aménagement pleine hauteur avec du mobilier Ikea, customisé à l’aide d’une crédence en marbre et une niche en chêne pour rapporter de la chaleur », détaille Alicia.
On note comment l’architecte d’intérieur est partie du décor noir et blanc que le propriétaire appréciait pour le sublimer. Le mobilier noir ancre la cuisine dans le sol avec élégance tandis que le mobilier blanc l’épure et l’allège vers le haut.
On note comment l’architecte d’intérieur est partie du décor noir et blanc que le propriétaire appréciait pour le sublimer. Le mobilier noir ancre la cuisine dans le sol avec élégance tandis que le mobilier blanc l’épure et l’allège vers le haut.
Pour éviter un aménagement trop froid, fondé uniquement sur des lignes horizontales et verticales, l’architecte d’intérieur a rajouté une touche artistique, une qualité que partagent tous ses projets et qui les rend hautement désirables. Ici, c’est la crédence qui ajoute une petite touche de folie transitionnelle. « Ce marbre Viola en crédence est très vivant, je l’adore. Sa veinure qui tire sur le violet et les grands carreaux lui donnent de la prestance ! », partage-t-elle.
Ce produit Porcelanosa est « un compact minéral fritté », soit un mélange de poudre minérale et de résine chauffé et compacté à haute température. Un matériau de grande résistance au toucher doux imitant le marbre Calacatta Viola original de façon très réaliste et décliné soit dans une teinte rosée, soit dans ce bleu profond violacé.
Plus d’idées pour décorer une cuisine sur Houzz
Plus d’idées pour décorer une cuisine sur Houzz
Pour y faire écho subtilement, la dernière touche a été posée avec le tapis Benuta qui reprend les lignes sinueuses du marbre et son coloris noir et blanc.
Avant. Nous finissons la revue avec cette photo avant travaux de la mezzanine d’origine. Celle-ci n’a pas été modifiée, hormis son garde-corps en filins peu gracieux et sécurisants qui a été changé. Dans un souci d’harmonie et d’intégration, Alicia l’a remplacé par un garde-corps à tasseaux verticaux dans la continuité de celui de l’escalier.
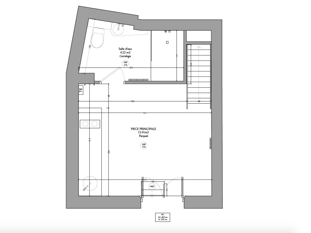
Représentation 3D (axonométrie) de la petite surface
L’architecte d’intérieur nous donne ici une magistrale démonstration de comment rentre hypnotique une petite surface. Une mission parfaitement réussie pour le propriétaire, qui rappelle : « Il suffit souvent d’un seul coup d’œil et d’une photo pour décider de réserver un logement. »
ET VOUS ?
Que pensez-vous de cette rénovation ?
L’architecte d’intérieur nous donne ici une magistrale démonstration de comment rentre hypnotique une petite surface. Une mission parfaitement réussie pour le propriétaire, qui rappelle : « Il suffit souvent d’un seul coup d’œil et d’une photo pour décider de réserver un logement. »
ET VOUS ?
Que pensez-vous de cette rénovation ?






















Qui habite ici : le bien se destine à la location
Emplacement : Paris 3ᵉ
Date des travaux :
Superficie : 16,6 m²
Architecte d’intérieur : Alicia Oustry (Ameo Concept)
Budget travaux : 21 200 euros dont 4 300 pour l’escalier sur mesure
Budget mobilier et décoration : 2 500 euros
Photos : Camille Huguenot