Avant/Après : Courbevoie, 2 appartements réunis pour une famille
Repenser 2 appartements 70's contigus pour une famille de 4 enfants : un défi relevé avec brio par cette architecte
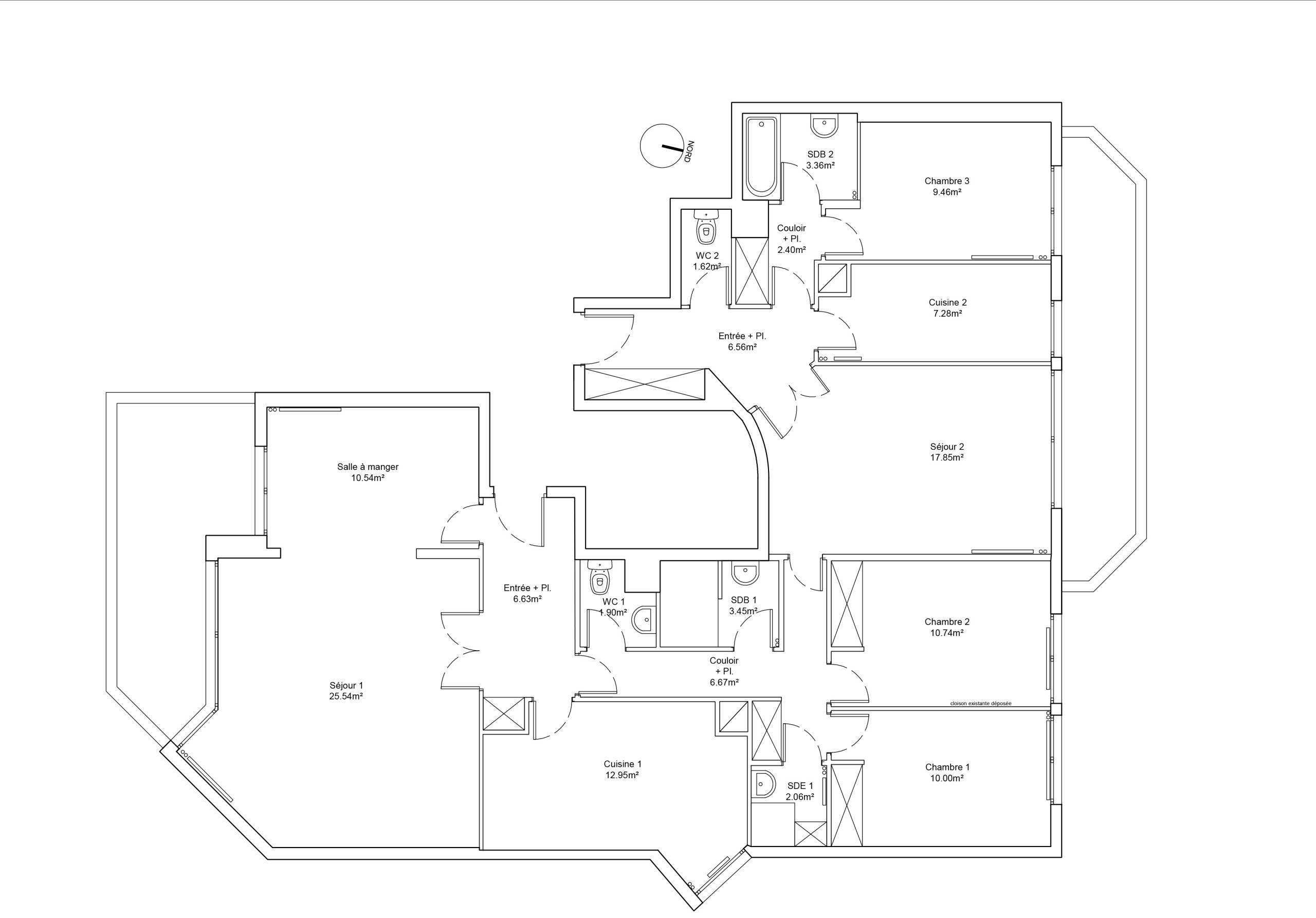
Cette famille francilienne, avec quatre enfants âgés de 2 à 8 ans, avait pour objectif de trouver un logement spacieux où chacun pourrait disposer de sa propre chambre. Un lieu pourrait cocher toutes les cases. Il s’agit de deux appartements côte à côte situés à Courbevoie, au 8ᵉ étage d’une résidence des années 1970 qui surplombe la Seine. Cependant, cette surface totale de 140 m² est en très mauvais état et comporte des doublons comme deux cuisines et deux séjours. Par des connaissances, ils rencontrent l’architecte Stéphanie Bertina Minel, à laquelle ils confient la tâche de réinventer leur appartement familial de rêve.
Avant. Mis en vente dans le cadre d’une succession, les deux appartements, d’une surface totale de 140 m², étaient adjacents et reliés par une porte. Leur utilisation antérieure ne nous a pas été révélée, mais il était évident qu’ils n’avaient jamais été rénovés depuis leur construction dans les années 1970. Le premier logement était composé d’un vaste séjour double et de deux chambres, tandis que le second se présentait comme un grand deux-pièces. Tous deux disposaient de petites cuisines séparées et de salles de bains vétustes.
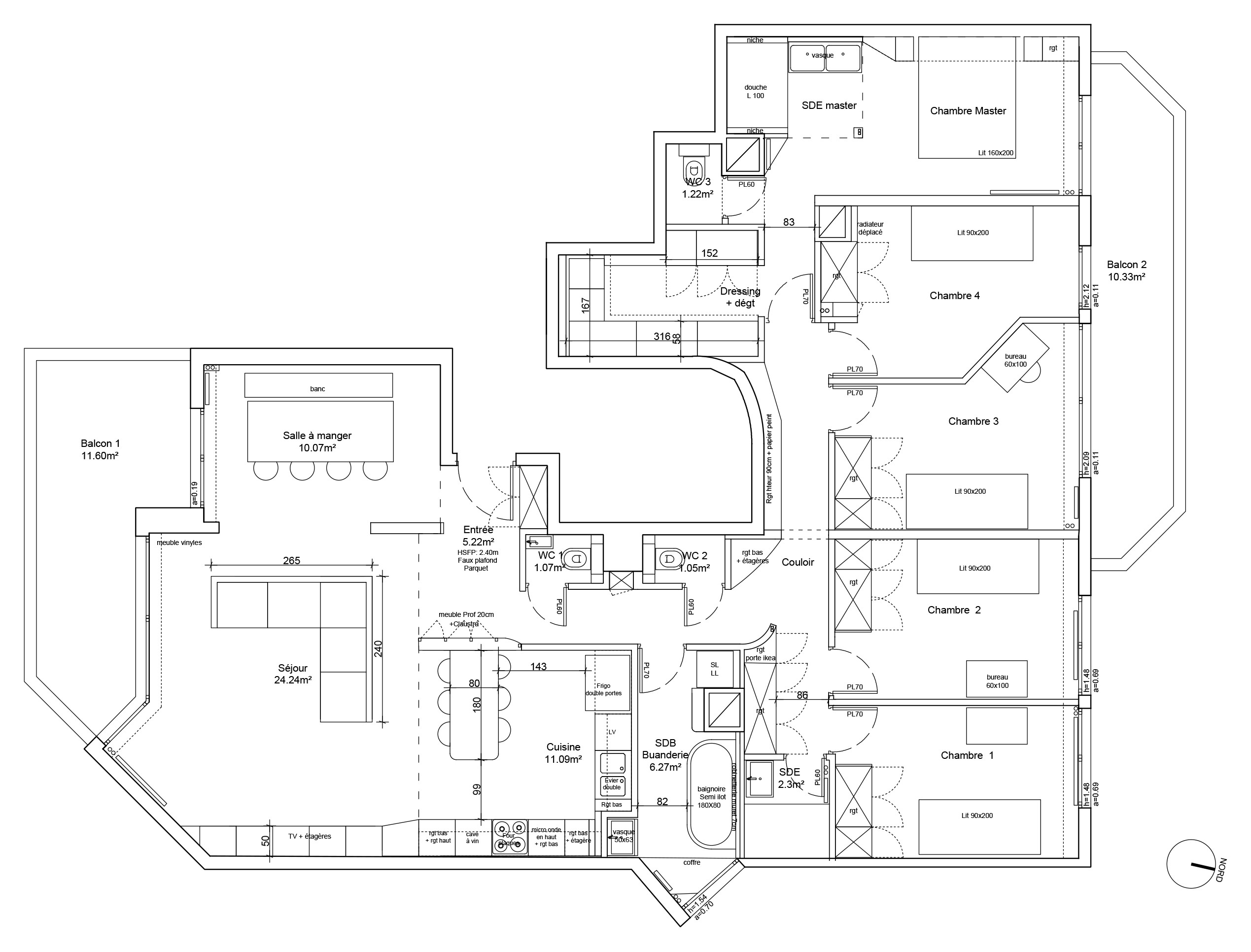
Après. L’architecte Stéphanie Bertina Minel, appelée au moment de la promesse de vente par les maîtres d’ouvrage, se souvient « de surfaces lumineuses et d’une belle situation, des balcons avec une vue sur la Seine et la tour Eiffel, d’une double exposition sud/nord très intéressante et, effectivement, de la possibilité de créer une grande pièce de vie ouverte et cinq chambres comme le souhaitait ce couple ».
Trouvez un architecte d’intérieur près de chez vous sur Houzz
Trouvez un architecte d’intérieur près de chez vous sur Houzz
Après. L’entrée a été décloisonnée pour bénéficier de la lumière de la pièce de vie et gagner des perspectives. Alors que dans les années 1970, les meubles de famille étaient largement utilisés, aujourd’hui le choix se porte sur un mobilier sur mesure, intégré harmonieusement, à l’instar du placard imbriqué dans les toilettes situées à l’arrière. Un miroir a été ajouté, apportant ainsi plus de lumière naturelle et reflétant la tour Eiffel.
Après. Pour ne pas entrer directement dans la pièce de vie mais profiter toutefois d’un espace ouvert, une semi-cloison de type claustra fait désormais face à la porte d’entrée. « Ce meuble multifonction a un triple intérêt : décoratif avec ses lignes graphiques légèrement arrondies, pratique car il offre du rangement en plus à l’entrée, et également fonctionnel car il permet de voir sans voir », indique l’architecte qui l’a entièrement dessiné avant de le faire réaliser sur mesure par un menuisier.
Trouvez un menuisier pour votre projet sur Houzz
Trouvez un menuisier pour votre projet sur Houzz
Après. La surface de la pièce de vie a été étendue grâce au décloisonnement de la cuisine d’origine, portant ainsi sa superficie à plus de 45 m². C’est dans cette partie plus sombre de ce vaste espace en forme de L que la nouvelle cuisine a été installée.
Pour l’aménagement, un agencement en angle a été choisi en utilisant des caissons standard (Ikea) équipés de portes en placage de chêne, fabriquées sur mesure par un menuisier. Un îlot central vient compléter les éléments muraux : « Il a été conçu comme un mange-debout avec plan en Silestone et piètement sur mesure Ripaton pour permettre à la famille d’y prendre ses repas au quotidien. C’est également l’endroit offrant la plus belle vue sur la tour Eiffel », souffle la professionnelle.
Pour l’aménagement, un agencement en angle a été choisi en utilisant des caissons standard (Ikea) équipés de portes en placage de chêne, fabriquées sur mesure par un menuisier. Un îlot central vient compléter les éléments muraux : « Il a été conçu comme un mange-debout avec plan en Silestone et piètement sur mesure Ripaton pour permettre à la famille d’y prendre ses repas au quotidien. C’est également l’endroit offrant la plus belle vue sur la tour Eiffel », souffle la professionnelle.
Pour une perte de place minimale, l’angle de la cuisine n’a pas été équipé d’un meuble dédié type « haricot ». « Nous avons préféré imbriquer la vasque de la salle de bains à l’arrière, ce qui a permis de gagner de la place dans cette pièce », poursuit-elle.
Plus de photos de cuisines en bois sur Houzz
Plus de photos de cuisines en bois sur Houzz
Après. Pour cette famille qui cuisine beaucoup, la cuisine se devait d’être « moderne, efficace, facile à nettoyer, avec beaucoup de rangements ». Les plans de travail ont été choisis en quartz Silestone, le sol en grès cérame et l’électroménager laissé volontairement apparent.
Après. En parallèle du réagencement des deux appartements dans le cadre de leur fusion, une attention particulière a été accordée à la décoration. « Cette famille recherchait une atmosphère naturelle et apaisante. Les parents sont passionnés par les plantes, ils avaient de nombreux beaux spécimens dans leur précédent appartement », souligne Stéphanie.
L’architecte a travaillé avec une attention graphique évidente, en mettant l’accent sur l’utilisation de matériaux de qualité, durables dans le temps. « Nous avons opté pour des changements de revêtements de sol, en utilisant du parquet en chêne et du grès cérame pour les espaces humides », explique-t-elle par exemple. De subtiles touches de fantaisie ont en outre été distillées, telles que des suspensions pour plantes intégrées dans le claustra, ainsi qu’un motif discret de stries. « L’idée était de créer une décoration intemporelle, tout en intégrant quelques éléments tendance », explique-t-elle.
L’architecte a travaillé avec une attention graphique évidente, en mettant l’accent sur l’utilisation de matériaux de qualité, durables dans le temps. « Nous avons opté pour des changements de revêtements de sol, en utilisant du parquet en chêne et du grès cérame pour les espaces humides », explique-t-elle par exemple. De subtiles touches de fantaisie ont en outre été distillées, telles que des suspensions pour plantes intégrées dans le claustra, ainsi qu’un motif discret de stries. « L’idée était de créer une décoration intemporelle, tout en intégrant quelques éléments tendance », explique-t-elle.
Après. Ainsi, des matériaux striés ont été utilisés comme le verre flûte sur le mobilier haut de la cuisine ou les panneaux Orac Décor qui marquent un soubassement mouluré au niveau du mur de la salle à manger.
« Nous avons également sélectionné des lampes Secto Design rainurées dans le même esprit », indique Stéphanie.
Après. Très lumineuse, la salle à manger s’ouvre sur un balcon plein sud dont la vue s’étend jusqu’à Paris. La famille disposait déjà du mobilier en chêne : un élément qui a d’ailleurs aidé l’architecte à trouver l’harmonie qui les a emballés.
« Nous avons proposé une ambiance naturelle basée sur une palette de bois blond, de pierre claire, de blanc et de vert amande », précise-t-elle.
Référence peinture : vert amande S77 chez Ressource
Référence peinture : vert amande S77 chez Ressource
Après. La configuration spatiale a été optimisée pour offrir deux toilettes sur la gauche et desservir au fond du couloir une salle de bains familiale avec buanderie, une autre salle d’eau et deux chambres d’enfants.
Pour que le couloir paraisse moins long en anguleux, l’architecte a créé un arrondi au niveau du coude de la circulation se prolongeant vers la gauche. « Nous avons souhaité harmoniser avec l’autre côté du couloir qui se cintre en raison de la cage d’escalier qu’il longe », explique en effet Stéphanie Bertina Minel.
Pour que le couloir paraisse moins long en anguleux, l’architecte a créé un arrondi au niveau du coude de la circulation se prolongeant vers la gauche. « Nous avons souhaité harmoniser avec l’autre côté du couloir qui se cintre en raison de la cage d’escalier qu’il longe », explique en effet Stéphanie Bertina Minel.
Après. La simplicité a présidé au choix des finitions de cette salle de bains-buanderie familiale, souhaitée avant tout naturelle et pérenne. « Pour que chaque enfant ait sa chambre, il a fallu faire des concessions sur la taille des salles d’eau. Nous n’avons pas pu intégrer de meuble double vasque mais nous avons optimisé l’espace au centimètre », fait savoir l’architecte.
Sols et murs ont été recouverts du même grès cérame à l’effet pierre. La seule fantaisie va à l’utilisation au mur d’une référence striée assortie afin de prolonger l’harmonie initiée dans la pièce de vie.
Robinetterie : Grohe ; Carrelages : Living Ceramics collection Bera&Beren
Robinetterie : Grohe ; Carrelages : Living Ceramics collection Bera&Beren
Après. Aujourd’hui se prolonge ici le couloir qui s’arrondit autour du mobilier sur mesure, lui conférant davantage d’esthétique et d’utilité.
Après. La suite parentale a été stratégiquement positionnée à l’extrémité du couloir pour minimiser les nuisances sonores provenant du reste de l’appartement. Sa palette de couleurs est dominée par des tons chauds et naturels évoquant l’ocre rouge, en contraste avec le vert amande des pièces de vie.
Pour maximiser la fonctionnalité de cette chambre lumineuse et profitant d’un balcon, des menuiseries sur mesure ont été installées. « Nous avons opté pour un lit pont », précise l’architecte, c’est-à-dire des rangements de 40 centimètres de profondeur incorporant un dressing de part et d’autre du lit et des placards au-dessus.
9 conseils pour aménager un lit pont dans une chambre
Pour maximiser la fonctionnalité de cette chambre lumineuse et profitant d’un balcon, des menuiseries sur mesure ont été installées. « Nous avons opté pour un lit pont », précise l’architecte, c’est-à-dire des rangements de 40 centimètres de profondeur incorporant un dressing de part et d’autre du lit et des placards au-dessus.
9 conseils pour aménager un lit pont dans une chambre
Vous êtes en quête d'un artisan pour votre projet en rénovation complète ?
Nous vous aidons à trouver les meilleurs pros
Nous vous aidons à trouver les meilleurs pros
Après. Pour ne pas réduire davantage l’espace de passage dans cette chambre de seulement 2,60 mètres de large, deux petites tables de chevet latérales ont été préférées à une profonde tête de lit menuisée intégrant les chevets. Pour parfaire le tout, les coffres de volets bien endommagés ont été restaurés, la tringle, destinée aux voilages, délicatement cachée entre ce coffre et le faux plafond.
Référence peinture : HC91 Wedgwood Jasper Red chez Ressource ; poignées en laiton : Zara Home ; Lampes : AM.PM.
Référence peinture : HC91 Wedgwood Jasper Red chez Ressource ; poignées en laiton : Zara Home ; Lampes : AM.PM.
Après. Cette pièce a été convertie en salle d’eau privative pour les propriétaires.
Après. Les maîtres de maison ont préféré profiter d’une douche, et même de deux ! « Ils avaient vu cette idée dans un hôtel et tenaient à disposer de deux pommeaux de douche côte à côte pour se laver à deux en même temps », révèle Stéphanie. Une idée de génie pour se préparer en express le matin, ce qui peut être très utile lorsque l’on a comme ici une grande famille.
Robinetterie : Hansgrohe
Robinetterie : Hansgrohe
Après. Lorsque l’on emprunte le couloir depuis l’entrée, quatre chambres d’enfant sont désormais desservies sur la droite de cette circulation, qui correspond au côté nord de l’appartement.
Cette chambre, dédiée à l’un des jeunes garçons de la famille, a fait l’objet d’une lourde rénovation car elle résulte de la métamorphose de la cuisine d’antan. « Nous avons aménagé chaque chambre sur le même modèle avec une superficie supérieure à 9 m² et un linéaire de 1,50 mètre de rangements paré d’une façade miroir. Un bureau a également été intégré dans chaque chambre » partage la pro.
Cette chambre, dédiée à l’un des jeunes garçons de la famille, a fait l’objet d’une lourde rénovation car elle résulte de la métamorphose de la cuisine d’antan. « Nous avons aménagé chaque chambre sur le même modèle avec une superficie supérieure à 9 m² et un linéaire de 1,50 mètre de rangements paré d’une façade miroir. Un bureau a également été intégré dans chaque chambre » partage la pro.
Avant. Voici un autre aperçu du séjour du second appartement. Il a été transformé en chambre d’enfant pour la jeune fille de la famille, sur le même modèle que celle de son frère. Deux autres chambres existantes ont été réaménagées de manière approchante pour offrir le même confort à chacun des quatre enfants de la famille.
Après. L’architecte Stéphanie Bertina Minel a su maîtriser avec brio le challenge de réunir ces deux appartements pour les muer en un espace familial à la fois attrayant et pérenne.
Pour conclure, elle nous partage sa passion pour la rénovation des logements datant des années 1960-1970. « Contrairement aux appartements haussmanniens qui possèdent un charme naturel dû à leurs détails architecturaux, transformer ces surfaces nues et rectilignes en lieux esthétiques, confortables et modernes représente un véritable défi », rappelle-t-elle.
ET VOUS ?
Que pensez-vous de cette rénovation ?
ET VOUS ?
Que pensez-vous de cette rénovation ?












































Qui habite ici : un couple de quadragénaires avec 4 enfants
Emplacement : Courbevoie
Superficie : 140 m²
Date de livraison : janvier 2023 après 6 mois d’étude et 6 mois de chantier
Architecte : Stéphanie Bertina Minel
Budget : 240 000 euros
Photos : Agathe Tissier-Dumont