Avant/Après : Naissance d'un duplex idéal sur l'île Saint-Louis
10 mois de gros travaux débouchent sur une refonte modèle tant spatiale que déco de deux appartements pour une famille
Ce couple de quinquas avec deux filles adolescentes vit de longue date en plein cœur de l’île Saint-Louis, une adresse prestigieuse de la capitale. L’appartement de 60 m² est bien trop étroit pour quatre, mais qui voudrait quitter ce quartier village, à la proximité immédiate de Notre-Dame de Paris ? Aussi, la famille s’est livrée au fil des ans à de savantes optimisations d’espace, jusqu’à n’en plus pouvoir. Puis, ils ont l’opportunité de racheter l’appartement du dessus. C’est le moment de voir la vie en grand dans une surface doublée mais, avant cela, il faut en passer par de gros travaux, une étape qui se révèle bien plus facile que prévu grâce à la vision et l’accompagnement de l’architecte Marion Tixier.
Plan du 5ᵉ étage avant travaux
Ces propriétaires avaient déjà eu l’occasion de rénover plusieurs biens, y compris par eux-mêmes, et étaient à l’aise avec la gestion d’un chantier mais, cette fois-ci, ils ont vite compris que c’était trop. Rattacher ces deux appartements pour créer un duplex imposait de toucher aux structures afin de relier les deux surfaces par un escalier intérieur, puis de réagencer intégralement les espaces de vie. La récupération éventuelle des combles posait question, de même que l’uniformisation des réseaux et du chauffage… Puis, il faudrait s’adonner à la gestion chronophage de ce chantier par une entreprise et répondre aux questions quotidiennes qui ne manqueraient pas d’affluer…. Aussi ont-ils préféré s’adjoindre les services d’une professionnelle de l’aménagement dimensionnée. Conseillés par des amis, ils ont contacté Marion Tixier, architecte DE, associée dans la structure Atelier Aim avec sa sœur Margaux, architecte d’intérieur.
Trouvez un architecte près de chez vous sur Houzz
Ces propriétaires avaient déjà eu l’occasion de rénover plusieurs biens, y compris par eux-mêmes, et étaient à l’aise avec la gestion d’un chantier mais, cette fois-ci, ils ont vite compris que c’était trop. Rattacher ces deux appartements pour créer un duplex imposait de toucher aux structures afin de relier les deux surfaces par un escalier intérieur, puis de réagencer intégralement les espaces de vie. La récupération éventuelle des combles posait question, de même que l’uniformisation des réseaux et du chauffage… Puis, il faudrait s’adonner à la gestion chronophage de ce chantier par une entreprise et répondre aux questions quotidiennes qui ne manqueraient pas d’affluer…. Aussi ont-ils préféré s’adjoindre les services d’une professionnelle de l’aménagement dimensionnée. Conseillés par des amis, ils ont contacté Marion Tixier, architecte DE, associée dans la structure Atelier Aim avec sa sœur Margaux, architecte d’intérieur.
Trouvez un architecte près de chez vous sur Houzz
Plan du 5ᵉ étage après travaux
Il a d’abord été longuement question du plan des lieux, et surtout de la place de l’escalier qui relierait les surfaces. Au 4ᵉ étage de la bâtisse très ancienne, datant probablement du XVIIᵉ ou XVIIIᵉ siècle, se trouvait le grand trois-pièces d’origine de la famille. Il était traversant avec trois fenêtres sur cour et deux sur rue, entourant en son centre la structure arrondie de la cage d’escalier du bâtiment. L’appartement du 5ᵉ étage, inchangé depuis des décennies, était un jumeau un peu plus étroit en raison des pans coupés de la toiture qui s’amorçaient dès ce dernier étage d’habitation.
Pour l’heure, les appartements qui occupaient chacun un palier étaient desservis par la cage d’escalier des parties communes, dotée d’un ascenseur de poche.
Il a d’abord été longuement question du plan des lieux, et surtout de la place de l’escalier qui relierait les surfaces. Au 4ᵉ étage de la bâtisse très ancienne, datant probablement du XVIIᵉ ou XVIIIᵉ siècle, se trouvait le grand trois-pièces d’origine de la famille. Il était traversant avec trois fenêtres sur cour et deux sur rue, entourant en son centre la structure arrondie de la cage d’escalier du bâtiment. L’appartement du 5ᵉ étage, inchangé depuis des décennies, était un jumeau un peu plus étroit en raison des pans coupés de la toiture qui s’amorçaient dès ce dernier étage d’habitation.
Pour l’heure, les appartements qui occupaient chacun un palier étaient desservis par la cage d’escalier des parties communes, dotée d’un ascenseur de poche.
Après. Il a été décidé de consacrer le 5ᵉ étage aux pièces de vie et le 4ᵉ étage aux chambres et salles de bains pour une raison bien précise. « Le 5ᵉ étage était doté d’un balcon filant et il était possible de retrouver de la hauteur au faitage de l’immeuble en récupérant les combles », explique Marion.
L’escalier pour relier les deux étages – un deux quart tournant de 70 centimètres de large – a été placé côté cour, proche de l’entrée, dans une circulation qui n’impacte aucune des pièces de vie et conserve la luminosité de la fenêtre proche de la porte d’entrée.
L’escalier pour relier les deux étages – un deux quart tournant de 70 centimètres de large – a été placé côté cour, proche de l’entrée, dans une circulation qui n’impacte aucune des pièces de vie et conserve la luminosité de la fenêtre proche de la porte d’entrée.
Après. L’entrée de l’appartement fait désormais face au nouvel escalier intérieur, protégé par un garde-corps en verre réalisé sur mesure. Elle tourne autour des parties communes, soulignée par ce mur cintré dont Marion a su faire un élément fort de la décoration voulue « pérenne, sobre, lumineuse et tout en teintes douces ». Représentant un décor arboré, le papier peint en grisaille renforce la verticalité, de même que la mise en blanc, car ces immeubles anciens, assez bas de plafond, ont tendance à être sombres.
Pour marquer cette entrée par des éléments fonctionnels, un banc de déchausse sur mesure épouse la rondeur de la cage d’escalier. En face, un placard et une niche pour les clefs aux lignes cintrées complètent le décor. « Ce sont des éléments de faible profondeur car derrière se trouvent encastrés les éléments techniques de la cuisine », indique l’architecte.
Pour marquer cette entrée par des éléments fonctionnels, un banc de déchausse sur mesure épouse la rondeur de la cage d’escalier. En face, un placard et une niche pour les clefs aux lignes cintrées complètent le décor. « Ce sont des éléments de faible profondeur car derrière se trouvent encastrés les éléments techniques de la cuisine », indique l’architecte.
Avant. Comme de coutume sur l’île Saint-Louis, les appartements sont petits, très cloisonnés et les pièces peu vastes. Voici le double séjour sur rue du 5ᵉ étage, partagé par une arche. Il était doté de deux hautes fenêtres, d’une cheminée et de pans légèrement coupés qui suivaient la pente du toit.
Après. Le séjour a été rattaché à la chambre contiguë de l’ancienne propriétaire afin de créer le nouveau séjour familial. Avant d’en arriver là, sur ce 5ᵉ étage, une question a longuement taraudé la professionnelle et les maîtres d’ouvrage : « qu’ouvrir, comment ouvrir, comment respecter les trames des trois fenêtres mansardées pour équilibrer l’espace ? ».
Comme, à ce niveau, il était question de caser une entrée, les toilettes et l’espace de vie avec cuisine semi-ouverte et beau séjour sur ce plateau assez exigu, le maître mot de la rénovation fut « optimisation maximale de l’espace », afin de faire gagner à cette famille un maximum de confort de vie. Aussi, les études de la professionnelle ont été très poussées, pour sonder l’espace disponible sous combles ainsi que tous les conduits de cheminée afin de savoir s’il serait possible de récupérer des centimètres carrés. Après une enquête technique, chaque habitant de l’immeuble a également été interrogé sur son usage des cheminées, ce qui a permis de se délester de deux gros conduits dans le séjour, changement très appréciable dans un quartier où le prix de vente du mètre carré frôlait en 2022 les 20 000 euros, soit 30 % de plus que la moyenne parisienne. « En effet, l’idée était d’optimiser le moindre centimètre et même d’en gagner. Nous avons rarement été aussi loin dans ce sens ! », insiste Marion Tixier.
Comme, à ce niveau, il était question de caser une entrée, les toilettes et l’espace de vie avec cuisine semi-ouverte et beau séjour sur ce plateau assez exigu, le maître mot de la rénovation fut « optimisation maximale de l’espace », afin de faire gagner à cette famille un maximum de confort de vie. Aussi, les études de la professionnelle ont été très poussées, pour sonder l’espace disponible sous combles ainsi que tous les conduits de cheminée afin de savoir s’il serait possible de récupérer des centimètres carrés. Après une enquête technique, chaque habitant de l’immeuble a également été interrogé sur son usage des cheminées, ce qui a permis de se délester de deux gros conduits dans le séjour, changement très appréciable dans un quartier où le prix de vente du mètre carré frôlait en 2022 les 20 000 euros, soit 30 % de plus que la moyenne parisienne. « En effet, l’idée était d’optimiser le moindre centimètre et même d’en gagner. Nous avons rarement été aussi loin dans ce sens ! », insiste Marion Tixier.
L’architecte a également cherché (et réussi) à pousser les murs vers le haut afin de conférer à la pièce de vie des volumes très agréables. Moyennant une reprise de structure importante au niveau des poutres de la toiture, il a été possible d’ôter quelques bastaings non porteurs afin de simplifier le plafond et pouvoir faire respirer la pièce de vie jusqu’au faitage.
Néanmoins, il a été décidé de ne pas ouvrir totalement les combles afin d’exploiter un espace au-dessus de l’entrée et de la cuisine. Celui-ci a été doté d’un Velux pour contempler le ciel de Paris. « Impossible de se tenir debout là-haut mais on a installé un canapé, des poufs et des appliques. C’est devenu l’espace de jeu ou de lecture secret des filles et également la chambre qu’occupent les parents quand ils ont des amis auxquels ils prêtent leur propre chambre », partage Marion.
Néanmoins, il a été décidé de ne pas ouvrir totalement les combles afin d’exploiter un espace au-dessus de l’entrée et de la cuisine. Celui-ci a été doté d’un Velux pour contempler le ciel de Paris. « Impossible de se tenir debout là-haut mais on a installé un canapé, des poufs et des appliques. C’est devenu l’espace de jeu ou de lecture secret des filles et également la chambre qu’occupent les parents quand ils ont des amis auxquels ils prêtent leur propre chambre », partage Marion.
Fond de scène de la nouvelle salle à manger, une bibliothèque plein format monte jusqu’au niveau des combles pour renforcer l’impression de volume. En partie basse, des étagères fermées cachent le vaisselier de la famille. Sur la gauche apparaît la porte coulissante de la cuisine, fabriquée sur mesure avec des montants d’acier. L’échelle pour accéder aux combles a été astucieusement placée au niveau où coulisse le pan de la porte. Elle a également été fabriquée sur mesure par un métallier.
Table à manger : Leroy Merlin ; Chaises : Madeleine Deco ; Luminaires : Nedgis
Table à manger : Leroy Merlin ; Chaises : Madeleine Deco ; Luminaires : Nedgis
Entre chaque porte-fenêtre des niches résultent du doublage des murs de façade. Des aplats de couleur confèrent davantage de profondeur transversale à la pièce en distillant de la douceur.
Après. Côté séjour, l’accent a été mis sur la lumière et les teintes naturelles. « La cliente appréciait notre style et elle nous a fait entièrement confiance. Les bases claires rehaussées de touches terreuses sont nos couleurs préférées, avec lesquelles nous travaillons presque exclusivement afin d’obtenir un résultat intemporel et pérenne », indique l’architecte. Çà et là quelques notes noires contrastent avec l’ensemble, comme, ici, le grand écran de télévision dont rêvait le propriétaire ou encore l’insert à bois, judicieusement placé dans un coin sous-exploité de la pièce.
Canapé : France Canapé ; Table basse : Pomax
Canapé : France Canapé ; Table basse : Pomax
Vous êtes en quête d'un artisan pour votre projet en rénovation complète ?
Nous vous aidons à trouver les meilleurs pros
Nous vous aidons à trouver les meilleurs pros
Un claustra à lames de bois peint en blanc sépare le séjour de l’entrée et surtout du coin toilettes.
On accède aux toilettes de ce palier par une porte arrondie en arche qui reste dans le thème des éléments cintrés de l’entrée. Le revêtement de sol, orné d’étoiles, a été un vrai coup de coeur de la propriétaire.
La cuvette suspendue, la vasque totem et le miroir ont également été sélectionnés pour leurs formes rondes.
Après. Bien que fermée, la nouvelle cuisine a été conçue pour être le plus ouverte possible, ce qui a été rendu possible par sa porte verrière coulissante et la verrière donnant au-dessus du nouvel escalier de circulation intérieure. La petite cuisine a été aménagée au chausse-pied, dans un plan en U qui préserve même un espace pour un frigo américain et deux fours. « Le four et le micro-ondes passent par-dessus la cage d’escalier », indique Marion, qui a constamment travaillé en volume pour ne pas perdre un centimètre.
Plus d’idées pour aménager une cuisine ouverte sur Houzz
Plus d’idées pour aménager une cuisine ouverte sur Houzz
La propriétaire qui voulait « quelque chose de simple et sobre », a validé des façades et un plan de travail blanc cassé, le tout rehaussé par un sol en dalles de terrazzo véritable, égayé par de grosses inclusions de pierre. « Nous avons collaboré avec le cuisiniste Howdens connu pour ses prix tirés, préférant attribuer le budget ailleurs », estime Marion.
Plan de travail/crédence : Easy plan
Plan de travail/crédence : Easy plan
Cette verrière est celle de la cuisine, vue depuis l’entrée de l’appartement. On distingue la plaque de cuisson positionnée sous la fenêtre existante, choisie avec hotte de plan pour pallier le souci d’installation d’une hotte classique.
Cette vue est assez emblématique du style de Marion l’architecte, de celui de Margaux, sa sœur, l’architecte d’intérieur, et de leur attention pour le détail avec cette boîte de couleur pastel qui symbolise la zone escalier et le papier peint de l’entrée se reflétant parfaitement dans le cadrage tracé par le miroir vide-poche. « Je réalise mes shootings moi-même, car je veux pouvoir retrouver ces éléments que j’ai pensés maintes fois en amont », glisse d’ailleurs la professionnelle.
Cette vue est assez emblématique du style de Marion l’architecte, de celui de Margaux, sa sœur, l’architecte d’intérieur, et de leur attention pour le détail avec cette boîte de couleur pastel qui symbolise la zone escalier et le papier peint de l’entrée se reflétant parfaitement dans le cadrage tracé par le miroir vide-poche. « Je réalise mes shootings moi-même, car je veux pouvoir retrouver ces éléments que j’ai pensés maintes fois en amont », glisse d’ailleurs la professionnelle.
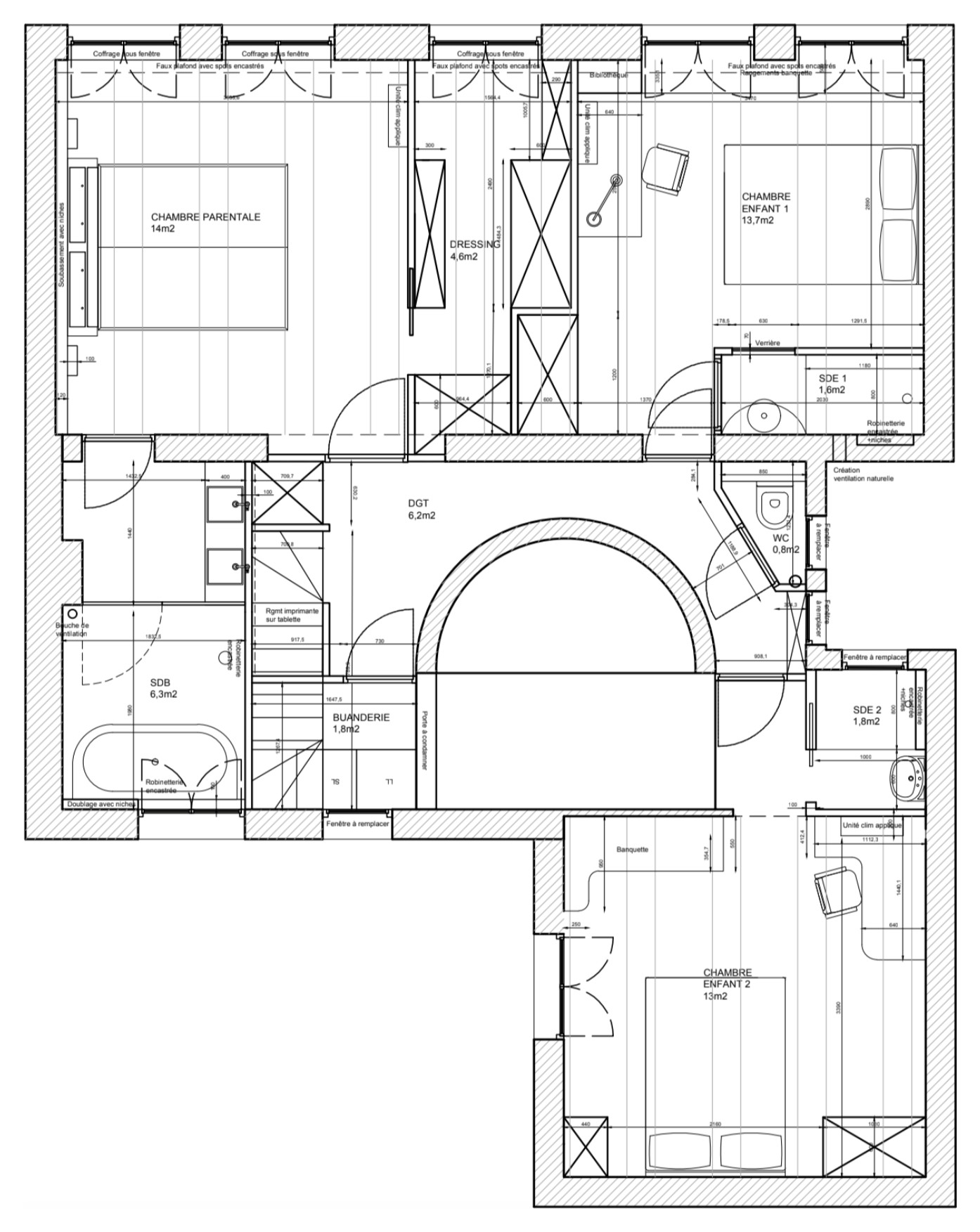
Plan du 4ᵉ étage après travaux
Sur cet étage, il s’agissait de caser la suite parentale, deux chambres pour les filles adolescentes avec leur salle d’eau chacune, une buanderie et, bien sûr, l’escalier de circulation. « C’était compliqué ! », se rappelle Marion Tixier.
L’ancienne entrée du 4ᵉ a été condamnée et transformée en buanderie. Malheureusement nous ne disposons pas de visuels de cette pièce. Toutefois, les propriétaires ne se sont pas délestés d’une entrée à ce niveau, ce qui peut améliorer le confort en cas de déménagement. « Il restait une ancienne entrée dans la chambre sur cour et nous l’avons conservée. Cette chambre avec sa salle de bains peut donc éventuellement servir de studio indépendant », souligne Marion.
Sur cet étage, il s’agissait de caser la suite parentale, deux chambres pour les filles adolescentes avec leur salle d’eau chacune, une buanderie et, bien sûr, l’escalier de circulation. « C’était compliqué ! », se rappelle Marion Tixier.
L’ancienne entrée du 4ᵉ a été condamnée et transformée en buanderie. Malheureusement nous ne disposons pas de visuels de cette pièce. Toutefois, les propriétaires ne se sont pas délestés d’une entrée à ce niveau, ce qui peut améliorer le confort en cas de déménagement. « Il restait une ancienne entrée dans la chambre sur cour et nous l’avons conservée. Cette chambre avec sa salle de bains peut donc éventuellement servir de studio indépendant », souligne Marion.
Après. Cette partie du séjour a été attribuée à la suite parentale. Une tête de lit maçonnée a permis de créer des prises, et des tables de nuit intégrées. « Nous y avons également inclus un ruban led, ce qui crée un bel éclairage de nuit de part en part de la chambre », explique Marion.
Comme dans le reste de l’appartement, les fenêtres ont été changées. « Nous avons mis des fenêtres en alu avec du triple vitrage phonique en façade et du double vitrage sur cour », précise l’architecte. La propriétaire souhaitant dormir dans le noir complet, des volets intérieurs ont également été ajoutés en plus des volets extérieurs existants : « on a fait fabriquer ces persiennes sur mesure », précise Marion. Sous les fenêtres, les allèges de 45 centimètres de haut ont été coffrées afin de créer des rangements supplémentaires pouvant aussi servir d’assises.
Comme dans le reste de l’appartement, les fenêtres ont été changées. « Nous avons mis des fenêtres en alu avec du triple vitrage phonique en façade et du double vitrage sur cour », précise l’architecte. La propriétaire souhaitant dormir dans le noir complet, des volets intérieurs ont également été ajoutés en plus des volets extérieurs existants : « on a fait fabriquer ces persiennes sur mesure », précise Marion. Sous les fenêtres, les allèges de 45 centimètres de haut ont été coffrées afin de créer des rangements supplémentaires pouvant aussi servir d’assises.
Notons que la chambre parentale bénéficie également d’un grand dressing et, depuis les plans, un bureau a même été intégré.
Après. En longueur, la salle de bains a été traitée en deux parties que l’on distingue au changement de finitions de sol. La première est consacrée au meuble double vasque. Puis une paroi vitrée englobe, dans un seul et même espace, la douche à l’italienne et la baignoire posée en semi-îlot. Ce plan, que l’on voit souvent au Japon, a ici une raison bien précise. « Nous avons équipé cette partie d’un système hammam qui produit de la vapeur, car c’était une demande particulière de mon client. La paroi de douche est entourée par un joint d’étanchéité », explique l’architecte.
Meubles salle de bains : Crocket ; Robinetterie : Masalledebain.com et Grohe ; Carrelages : Surface carrelage et mosaic factory
Meubles salle de bains : Crocket ; Robinetterie : Masalledebain.com et Grohe ; Carrelages : Surface carrelage et mosaic factory
Après. Cette chambre a été aménagée pour l’une des deux jeunes filles de la famille. Celle-ci a choisi cette couleur vert amande pour parer les murs ainsi qu’une coiffeuse. L’allège de la fenêtre a été coffrée pour créer une assise truffée de rangements. Avec la bibliothèque postée sur sa gauche, il en résulte une alcôve cosy, agréable pour lire.
La jeune fille a également dessiné le meuble de sa salle de bains, tout en arrondis. La pièce se trouve derrière la porte que nous apercevons dans la chambre.
La chambre de la seconde fille, placée sur cour, a été traitée avec le même fil rouge que le reste de l’appartement, usant des couleurs douces et un motif d’arrondi qui se répète sur les portes miroirs du placard sur mesure. « Sa touche d’originalité provient des champlats que nous avons posés sur la tête de lit pour créer du relief », indique l’architecte.
Dans toutes les chambres, maîtres d’ouvrage et architecte ont un temps hésité sur le traitement des plafonds avec poutres. Pour ne pas les éliminer sous un doublage nécessaire au passage des réseaux, et corrélativement perdre le charme des lieux, ou encore abaisser les plafonds pas très hauts, seul le pourtour des chambres a été coffré. « Nous avons créé comme un cadre pour intégrer des spots, des suspensions, les réseaux électriques et la clim », explique Marion Tixier.
Le coin bureau a été travaillé sur mesure avec un plateau arrondi en placage noyer. Des caissons Ikea de part et d’autre procurent un surcroît de rangement et de fonctionnalité. Au-dessus, nous repérons l’unité de climatisation réversible de la chambre. Ce système de chauffage et climatisation deux-en-en, mu par une pompe à chaleur, a remplacé les systèmes de chauffage disparates des deux appartements.
La salle de bains de la jeune fille a été travaillée en noir et blanc avec des détails arrondis et un fond de zelliges de chez Mosaïc Factory.
La salle de bains de la jeune fille a été travaillée en noir et blanc avec des détails arrondis et un fond de zelliges de chez Mosaïc Factory.
Ce chantier de 10 mois a été assez éprouvant pour l’Atelier Aim, car il a requis un suivi quotidien tant les questions techniques se sont amoncelées. Mais, au final, les attentes des propriétaires en termes d’optimisation maximale de chacun des espaces de vie ont été parfaitement remplies et le décor lumineux et tout doux, choisi par les professionnelles, les a enchantés. Outre le professionnalisme de leur architecte, ils ont au fil des mois apprécié un autre côté de sa personnalité qu’ils ont tenu à valoriser dans ce commentaire : « En plus d’être toujours de bonheur et souriante, elle trouve toujours des solutions aux petits désagréments que l’on peut rencontrer sur le chantier. », De vraies qualités pour contribuer à la perfection et l’agrément d’un chantier.
ET VOUS ?
Que pensez-vous de cette rénovation ?
ET VOUS ?
Que pensez-vous de cette rénovation ?






































Qui habite ici : un couple de quinquas avec deux filles de 15 et 17 ans
Emplacement : dans un vieil immeuble de l’île Saint-Louis
Livraison : janvier 2023 après 10 mois de travaux
Superficie : 115 m² environ (60+55)
Architecte DE : Marion Tixier de Atelier AIM
Menuisier : Dimension services
Budget : 300 000 euros,
dont 70 000 euros de menuiserie sur mesure
Photos : Marion Tixier