Visite Privée : Relifting intégral pour ce 32 m2 parisien
Aménagements sur mesure et matériaux de belle facture ont transformé ce deux-pièces en un écrin ultra contemporain
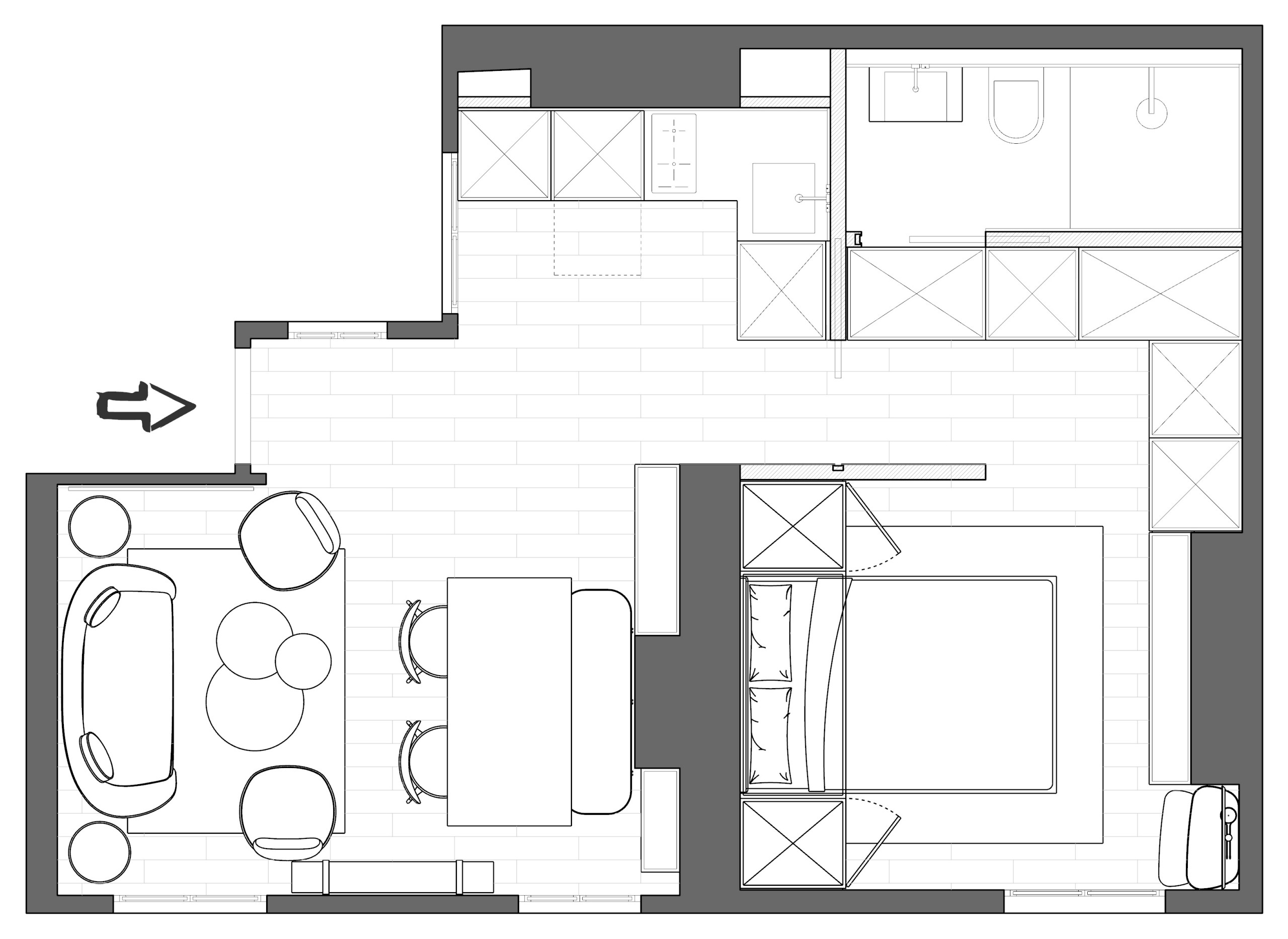
Le propriétaire des lieux, qui avait acquis cet appartement il y a de nombreuses années, a décidé de remodeler chacun des espaces pour que sa fille puisse y emménager. Il a ainsi fait appel à l’architecte d’intérieur Stephan Coville pour offrir une nouvelle jeunesse à ce 32 m² niché à Laumière, dans le XIXe arrondissement parisien. « Le brief de départ impliquait la création de menuiseries sur-mesure afin d’optimiser les zones de rangement qui étaient auparavant quasi inexistantes. Nous avons également repensé la configuration des lieux dans son intégralité, en privilégiant l’espace de vie pour créer un cocon convivial et cosy », nous livre Stephan Coville.
Avant. Dans ce 32 m², aucuns travaux n’avaient été réalisés depuis de nombreuses années. L’espace cuisine accueillait des aménagements sommaires tandis que la chambre était disproportionnée par rapport à la taille du salon. Ici, seul le parquet en sapin d’origine a été conservé, après avoir été poncé et éclairci.
Après. Pour optimiser au mieux les espaces, la configuration des lieux a été entièrement repensée. La chambre et le salon, ainsi que la salle de bains et l’ancienne cuisine ont ainsi été inversés. « Nous avons partiellement déposé un mur semi-porteur pour agrandir l’espace cuisine qui a remplacé l’ancienne salle de bains. Cela a permis d’intégrer des caissons de 60 cm pour loger le réfrigérateur », commente l’architecte d’intérieur.
Trouvez un architecte d’intérieur près de chez vous sur Houzz
Trouvez un architecte d’intérieur près de chez vous sur Houzz
La cuisine immaculée, entièrement réalisée sur mesure, accueille un sol en béton ciré ultra graphique aux tons blanc et bleu, qui apporte du caractère à cette zone sobre et épurée. La propriétaire des lieux a eu un véritable coup de cœur pour le marbre Panda qui habille désormais le plan de travail et la crédence, en ajoutant une touche précieuse à l’ensemble.
L’ancienne chambre a laissé place à la pièce à vivre nimbée de lumière. La cuisine et le salon bénéficient désormais de deux grandes fenêtres qui apportent un maximum de clarté. Pour cela, le couloir existant a été supprimé afin d’agrandir cet espace qui fait la part belle aux tons clairs et aux matériaux de belle facture, avec une série de meubles bas en chêne brossé surmontés par un plan de travail en marbre blanc.
Au-dessus, quelques étagères en laiton vieilli permettent d’entreposer quelques livres et objets de décoration.
Au-dessus, quelques étagères en laiton vieilli permettent d’entreposer quelques livres et objets de décoration.
Le canapé en velours bleu, qui appartenait déjà à la jeune femme, a servi de point de départ à l’aménagement de la pièce à vivre. « Nous sommes partis sur des tonalités de blanc et de bleu pour créer une ambiance harmonieuse dans cet espace zen et cosy. Le papier peint au design graphique se marie à trois tables basses en marbre blanc réalisées spécialement pour l’appartement », explique Stephan.
Canapé : Made.com ; Papier peint : Omexco Wall Covering ; Fauteuils : Moroso ; Bouts de canapé : Polyform ; Tapis : Rug Company ; Étagère en chêne brossé et laiton vieilli : Pouenat Ferronnier
Canapé : Made.com ; Papier peint : Omexco Wall Covering ; Fauteuils : Moroso ; Bouts de canapé : Polyform ; Tapis : Rug Company ; Étagère en chêne brossé et laiton vieilli : Pouenat Ferronnier
Ambiance douce dans l’espace nuit, avec un rose poudré qui se marie à un rouge vif pour habiller la tête de lit. Deux suspensions black & white apportent une touche graphique à ce décor haut en couleur. Une petite coiffeuse en noyer a trouvé sa place entre les fenêtres et le meuble bas surplombé par un conduit de cheminée existant.
Peinture : Ressource ; Tapis : Made.com
Peinture : Ressource ; Tapis : Made.com
Les dressings en medium laqué ont été entièrement réalisés sur mesure dans le couloir mais aussi de part et d’autre du lit pour maximiser les espaces de rangement.
Ceux-ci s’intègrent discrètement dans cette zone à la superficie réduite sans alourdir l’espace.
Plus de photos déco sur Houzz
Ceux-ci s’intègrent discrètement dans cette zone à la superficie réduite sans alourdir l’espace.
Plus de photos déco sur Houzz
La nouvelle salle de bains a pris la place de l’ancienne cuisine et est désormais séparée de la chambre par un couloir créé à l’aide de cloisons dotées de portes coulissantes. Très graphique avec son carrelage noir et blanc et sa vasque complètement noire, elle offre une confortable douche à l’italienne.
ET VOUS ?
Que pensez-vous de cet appartement ?
Que pensez-vous de cet appartement ?














Qui vit ici : une jeune femme
Emplacement : dans le XIXe arrondissement parisien
Superficie : 32 m²
Budget : environ 50 000 euros
Durée des travaux : environ 6 mois
Architecte d’intérieur : Atelier Stephan Coville