Avant/Après : Deux petits appartements new-yorkais ne font qu'un
Un architecte a combiné un deux-pièces et un studio pour créer un logement coloré et fonctionnel
Lorsque le studio adjacent à son deux-pièces à Brooklyn s’est libéré, ce couple a saisi l’occasion, mais n’a pas su comment réunir les deux appartements en un seul logement cohérent. Deux petites cuisines et deux petites salles de bains occupaient le centre de l’espace long et étroit.
Le couple a fait appel à l’architecte Andrew Mikhael afin de lui donner une meilleure allure, le rendre fonctionnel, beau et pratique pour accueillir des invités à dormir. En outre, leur destination préférée dans le monde est le Maroc, et ils souhaitaient apporter à leur appartement new-yorkais un peu des couleurs saturées et de l’art inspiré de ce pays.
Le couple a fait appel à l’architecte Andrew Mikhael afin de lui donner une meilleure allure, le rendre fonctionnel, beau et pratique pour accueillir des invités à dormir. En outre, leur destination préférée dans le monde est le Maroc, et ils souhaitaient apporter à leur appartement new-yorkais un peu des couleurs saturées et de l’art inspiré de ce pays.
Avant. Voici le plan original, montrant les deux appartements distincts. Regardez la salle de bains au centre du plan : la porte au-dessus menait au studio ; la porte au-dessous menait à l’appartement d’origine du couple.
Les salles de bains et les cuisines étaient regroupées au centre du plan.
Les salles de bains et les cuisines étaient regroupées au centre du plan.
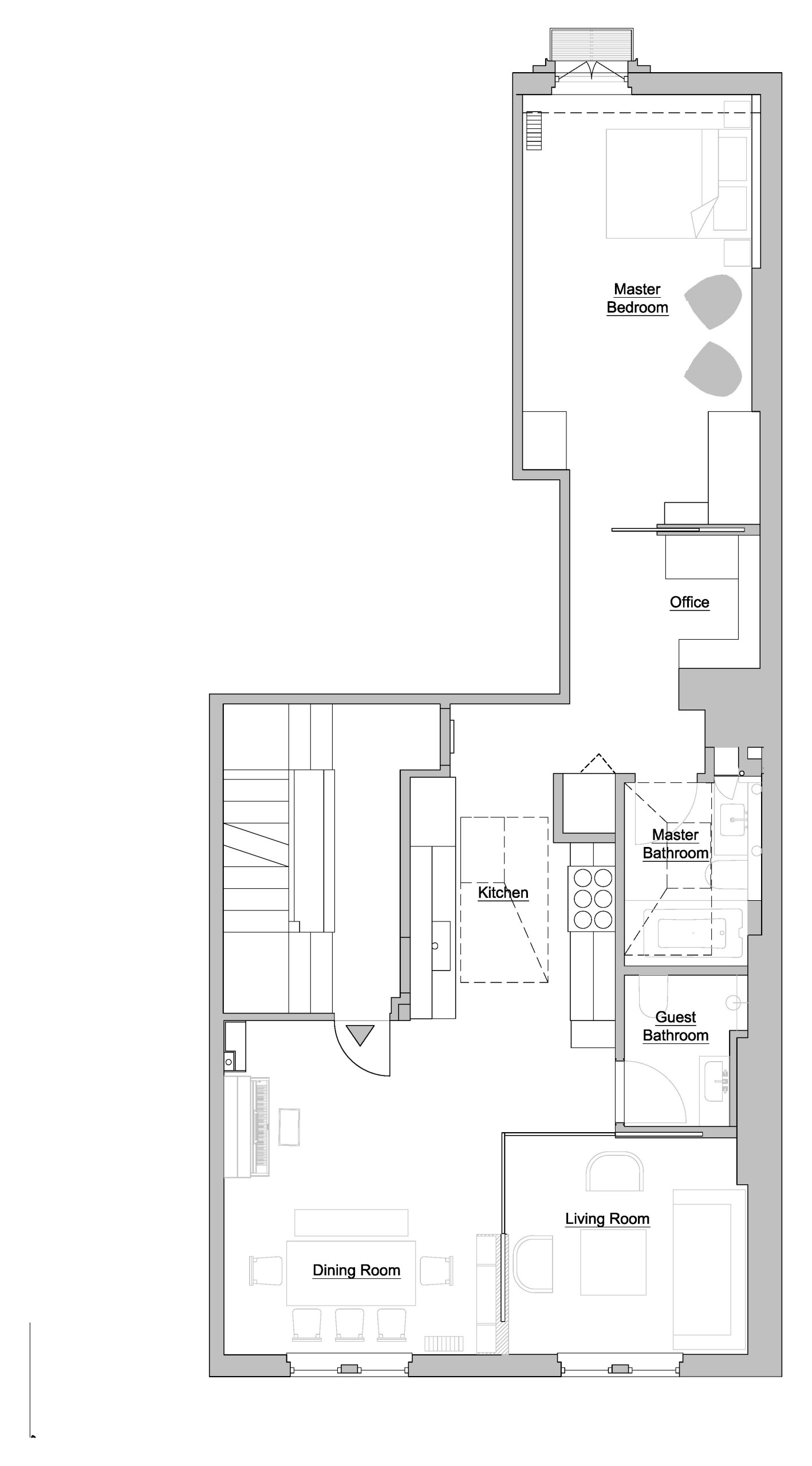
Après. Andrew savait que ses clients aimaient cuisiner et recevoir, il a donc reconfiguré la cuisine au centre de l’appartement. Il a déplacé la chambre du couple dans le studio, que l’on voit ici en haut. Il a ensuite agrandi la superficie de la salle de bains d’origine du studio en la regroupant avec un placard adjacent.
Il a également créé une antichambre servant de bureau entre la chambre principale et la salle de bains, en utilisant des armoires et une porte coulissante pour tirer le meilleur parti de l’espace.
En suivant le plan, il a utilisé les petites cuisines des deux appartements et la salle de bains d’origine du couple pour créer le nouvel espace cuisine. Il a ensuite ajouté une deuxième salle de bains à côté de la première.
Il a installé la salle à manger à l’endroit où se trouvait la chambre d’origine du couple et a ajouté de grandes portes au salon existant. Pour faire de la place à une cuisine fonctionnelle, il a déplacé la porte d’entrée sur le mur de la salle à manger.
Il a également créé une antichambre servant de bureau entre la chambre principale et la salle de bains, en utilisant des armoires et une porte coulissante pour tirer le meilleur parti de l’espace.
En suivant le plan, il a utilisé les petites cuisines des deux appartements et la salle de bains d’origine du couple pour créer le nouvel espace cuisine. Il a ensuite ajouté une deuxième salle de bains à côté de la première.
Il a installé la salle à manger à l’endroit où se trouvait la chambre d’origine du couple et a ajouté de grandes portes au salon existant. Pour faire de la place à une cuisine fonctionnelle, il a déplacé la porte d’entrée sur le mur de la salle à manger.
Le salon est l’un des espaces qui est resté à son emplacement d’origine, en conservant sa superficie. « Comme nombre de New-Yorkais, ce couple invitait beaucoup de gens à dormir chez lui », explique Andrew. « Mais il ne voulait pas dédier une pièce entière à une chambre d’amis. »
Comme expliqué précédemment, l’architecte a trouvé une excellente solution afin d’apporter de la flexibilité au salon. Désormais, deux grandes portes coulissantes ferment l’espace lorsque des invités passent la nuit sur le canapé-lit, préservant leur intimité. Sur cette photo, les portes sont partiellement ouvertes, mais la plupart du temps, elles le sont complètement, ce qui améliore la circulation.
Créer une pièce en plus sans ajouter de mur c’est possible
Comme expliqué précédemment, l’architecte a trouvé une excellente solution afin d’apporter de la flexibilité au salon. Désormais, deux grandes portes coulissantes ferment l’espace lorsque des invités passent la nuit sur le canapé-lit, préservant leur intimité. Sur cette photo, les portes sont partiellement ouvertes, mais la plupart du temps, elles le sont complètement, ce qui améliore la circulation.
Créer une pièce en plus sans ajouter de mur c’est possible
Voici la vue sur la salle à manger depuis le salon. La porte d’entrée se trouve sur la gauche et la cuisine est à droite.
Il fallait également permettre aux invités de disposer d’une salle de bains privative. La porte de gauche mène donc à la salle d’eau des invités, qui sert également de vestiaire au couple.
« Mes clients avaient beaucoup de livres et d’objets rapportés de leurs voyages qu’ils voulaient exposer », explique Andrew. Il a donc conçu des meubles encastrés le long de la salle à manger. Ceux-ci comprennent des lumières en haut et des rangements fermés en bas. « L’espace mural était très limité ici, et c’était l’endroit idéal pour des étagères », explique Andrew.
« Mes clients avaient beaucoup de livres et d’objets rapportés de leurs voyages qu’ils voulaient exposer », explique Andrew. Il a donc conçu des meubles encastrés le long de la salle à manger. Ceux-ci comprennent des lumières en haut et des rangements fermés en bas. « L’espace mural était très limité ici, et c’était l’endroit idéal pour des étagères », explique Andrew.
La salle de bains secondaire de 3,5 m² sert principalement de vestiaire. Comme elle se trouve à côté du salon qui sert également d’espace pour les invités, Andrew a trouvé le moyen d’y installer une douche. « C’est tellement plus agréable pour les invités d’avoir leur propre salle de bains, plutôt que de devoir traverser l’appartement pour utiliser la salle de bains principale », explique-t-il.
Afin d’installer une douche dans cet espace compact, Andrew a opté pour un aménagement sans paroi ni rideau. Des carreaux de style marocain délimitent la zone de douche et le sol est légèrement incliné vers un drain.
Les murs qui ne sont pas recouverts de carreaux sont recouverts de tadelakt. « Il s’agit d’un enduit imperméable utilisé depuis des siècles au Maroc », explique Andrew. Il l’a assorti à l’une des couleurs du carrelage, et la teinte sombre fait ressortir les carreaux colorés.
Afin d’installer une douche dans cet espace compact, Andrew a opté pour un aménagement sans paroi ni rideau. Des carreaux de style marocain délimitent la zone de douche et le sol est légèrement incliné vers un drain.
Les murs qui ne sont pas recouverts de carreaux sont recouverts de tadelakt. « Il s’agit d’un enduit imperméable utilisé depuis des siècles au Maroc », explique Andrew. Il l’a assorti à l’une des couleurs du carrelage, et la teinte sombre fait ressortir les carreaux colorés.
Les pièces d’un appartement doivent souvent remplir plusieurs fonctions. Dans la salle à manger, Andrew a ajouté un bar et fait de la place pour le piano du couple.
Avant. Voici la cuisine du deux-pièces avant les travaux.
Après. La cuisine, le salon et la salle à manger sont désormais à portée de vue les uns des autres. Auparavant, la cuisine se résumait à un petit espace collé contre un mur et n’était pas équipée de hotte. « Ils étaient obligés de ventiler l’air vers les fenêtres lorsqu’ils cuisinaient », explique Andrew.
Par chance, il a découvert une ouverture de toit existante et inutilisée où il a pu faire passer un conduit d’aération jusqu’à un puissant extracteur. Pour le couple, disposer d’un espace fonctionnel et bien ventilé est un rêve devenu réalité.
Par chance, il a découvert une ouverture de toit existante et inutilisée où il a pu faire passer un conduit d’aération jusqu’à un puissant extracteur. Pour le couple, disposer d’un espace fonctionnel et bien ventilé est un rêve devenu réalité.
« Lorsque vous avez une cuisine ouverte, il est plus agréable de faire en sorte qu’elle ne ressemble pas trop à une cuisine », explique Andrew. Voici la vue de la cuisine à travers les portes coulissantes du salon. Les couleurs sombres des meubles et de la crédence laissent les éléments plus « cuisine » se fondre dans l’arrière-plan. En revanche, le mur jaune vif attire le regard.
Bien que les couleurs soient sombres, le puits de lumière inonde la pièce de clarté. « La lucarne existante offrait un puits de lumière. J’ai suggéré de l’agrandir », explique Andrew. « Il y avait beaucoup d’espace entre le plafond et le toit. J’ai pu le façonner et créer un grand rectangle. La lumière du soleil rebondit de différentes manières sur le plafond incliné autour de la lucarne. »
Il a également ajouté des spots au plafond autour du grand rectangle, y compris une source estompée éclairant les œuvres d’art sur le mur. Des spots supplémentaires sous les armoires supérieures fournissent une bonne luminosité pour la cuisine et la préparation des repas.
Bien que les couleurs soient sombres, le puits de lumière inonde la pièce de clarté. « La lucarne existante offrait un puits de lumière. J’ai suggéré de l’agrandir », explique Andrew. « Il y avait beaucoup d’espace entre le plafond et le toit. J’ai pu le façonner et créer un grand rectangle. La lumière du soleil rebondit de différentes manières sur le plafond incliné autour de la lucarne. »
Il a également ajouté des spots au plafond autour du grand rectangle, y compris une source estompée éclairant les œuvres d’art sur le mur. Des spots supplémentaires sous les armoires supérieures fournissent une bonne luminosité pour la cuisine et la préparation des repas.
« Les conjoints avaient beaucoup d’idées de couleurs qu’ils voulaient utiliser dans l’appartement », explique Andrew. « Sachant qu’ils aimaient le noir, j’ai pensé que la pierre ollaire conviendrait bien pour le [plan de travail], la [crédence] et le rebord. C’est un matériau très polyvalent qui offre une sensation naturelle au toucher. »
Vous êtes en quête d'un artisan pour votre projet en rénovation de cuisine ?
Nous vous aidons à trouver les meilleurs pros
Nous vous aidons à trouver les meilleurs pros
L’évier en pierre ollaire est réalisé de manière à créer une continuité avec le plan de travail et la crédence. Andrew a également intégré les prises électriques sous les armoires murales afin de ne pas interrompre l’arrière-plan. Cet aspect monolithique est net et agréable à l’œil.
Un grand escabeau se plie et s’accroche au mur sombre de la cuisine pour faciliter l’accès aux objets rangés dans les armoires hautes. Le mur jaune de la cuisine est relié au bureau de la chambre principale, et le côté bureau du mur est un bon endroit pour accrocher des œuvres d’art.
Avant. Voici une vue du studio avant les travaux. Il a été transformée en suite, regroupant une chambre, un bureau et une salle de bains.
Après. Andrew a conçu des armoires pour desservir le bureau et cacher des objets tels que des imprimantes, des dossiers et d’autres fournitures.
Le mur biscornu de la chambre reprend la forme du toit mansardé du bâtiment. Andrew a ajouté un rebord à la place de la tête de lit.
Plus d’idées pour aménager une chambre sur Houzz
Plus d’idées pour aménager une chambre sur Houzz
Avant. Voici la salle de bains de l’ancien deux-pièces. Reliée à la nouvelle chambre, elle complète aujourd’hui la suite parentale.
Après. Les propriétaires adorent Marrakech et voulaient en rapporter l’essence du pays chez eux. « Ils voulaient le faire dans la salle de bains principale sans tomber dans le kitsch », explique Andrew. « Ils aimaient les textures subtiles, les blocs de couleur et les hauts plafonds que l’on retrouve dans l’architecture de cette ville. »
Les carreaux du sol et de la baignoire sont variés et colorés à l’image de l’architecture de Marrakech. Ils ont été fabriqués à la main à Marrakech par Popham Design. Les murs roses sont en tadelakt.
En raison du manque de place, les propriétaires ont opté pour une combinaison baignoire-douche et un meuble-lavabo suspendu. Andrew a également gagné de l’espace en installant des toilettes murales, dont le réservoir est caché derrière le mur.
Cette pièce est aussi dotée d’une lucarne qui apporte de la lumière naturelle. Andrew a agrandi l’ouverture sous celle-ci comme il l’a fait dans la cuisine.
Les carreaux du sol et de la baignoire sont variés et colorés à l’image de l’architecture de Marrakech. Ils ont été fabriqués à la main à Marrakech par Popham Design. Les murs roses sont en tadelakt.
En raison du manque de place, les propriétaires ont opté pour une combinaison baignoire-douche et un meuble-lavabo suspendu. Andrew a également gagné de l’espace en installant des toilettes murales, dont le réservoir est caché derrière le mur.
Cette pièce est aussi dotée d’une lucarne qui apporte de la lumière naturelle. Andrew a agrandi l’ouverture sous celle-ci comme il l’a fait dans la cuisine.
Les robinets muraux permettent également de gagner de la place. Andrew a créé un rebord au-dessus afin que ses clients puissent y placer des objets de première nécessité et des accessoires. L’armoire à pharmacie en miroir offre un espace de rangement supplémentaire.
Le marbre de l’évier est du Breccia Capraia. « Ce marbre a une belle couleur rose », explique Andrew.
Le marbre de l’évier est du Breccia Capraia. « Ce marbre a une belle couleur rose », explique Andrew.
Andrew a dissimulé les tuyaux en concevant le rebord et la niche adjacente de manière à ce qu’ils aient l’air d’une architecture intentionnelle. La niche et l’armoire offrent toutes deux un espace de rangement. La niche comporte également une prise pour les sèche-cheveux, rasoir et brosses à dents.
ET VOUS ?
Qu’est-ce qui vous plaît dans cette transformation ? Faites-nous part de vos impressions dans les commentaires.
ET VOUS ?
Qu’est-ce qui vous plaît dans cette transformation ? Faites-nous part de vos impressions dans les commentaires.

























Qui vit ici ? Un couple
Emplacement : Brooklyn, New York, États-Unis
Superficie : 79 m²
Architecte : Andrew Mikhael Architect
Année du projet : 2023
Photos : Brad Dickson
Le bâtiment est emblématique de Brooklyn avec son toit mansardé. Les deux appartements étaient dos à dos, de sorte que l’espace nouvellement configuré est long et étroit. En son extrémité, se trouvent un salon, que l’on voit ici, et une salle à manger
Trouvez un architecte près de chez vous sur Houzz