Aménager sa cuisine
Dossiers populaires
Étude de cas : Quel budget pour une cuisine ouverte ?
3 pros ont planché sur le même projet pour une estimation réelle du coût d'une cuisine. Et vous, quel sera votre choix ?
Difficile d’estimer le budget d’une cuisine, qu’il s’agisse d’une rénovation ou d’une implantation dans un appartement neuf. Nous avons décidé de vous donner une idée précise sur la question en faisant plancher plusieurs professionnels, architectes d’intérieur ou cuisinistes. Ils ont travaillé à partir d’un cas réel mais représentatif d’une problématique récurrente en France aujourd’hui, celui de nouveaux propriétaires qui se préparent à la livraison prochaine de leur appartement sur plan. Nous remercions les professionnels qui ont bien voulu se prêter au jeu ! N’hésitez pas à commenter cet article pour aider les propriétaires à faire leur choix parmi ces trois propositions.
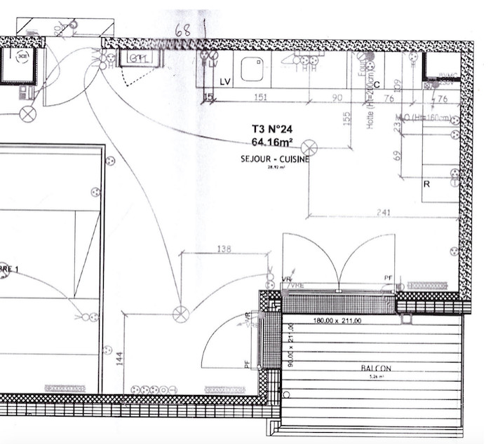
Plan de la cuisine avec cotes
Plan des implantations électriques
En plus des plans avec les côtes et les implantations électriques, les propriétaires ont laissé ce brief : « Cuisine en L, un maximum d’accessibilité dans les rangements du bas, un plan de travail en quartz, un grand combiné frigo réfrigérateur, de l’induction, un lave-vaisselle et idéalement une petite cave à vin. »
Découvrez ci-dessous les propositions détaillées des professionnels contactés.
1. Une cuisine Ikea « scandi bohème » pour 9666 euros, livrée posée
La pro. Estelle Cerqueira, décoratrice pour Oh! ma DECOpropose à cette famille de partir sur une base Ikea, le meilleur rapport qualité/prix selon elle. Elle nous a fourni un book complet avec les plans, des planches tendances et une shopping list pour la pièce entière.
En plus des plans avec les côtes et les implantations électriques, les propriétaires ont laissé ce brief : « Cuisine en L, un maximum d’accessibilité dans les rangements du bas, un plan de travail en quartz, un grand combiné frigo réfrigérateur, de l’induction, un lave-vaisselle et idéalement une petite cave à vin. »
Découvrez ci-dessous les propositions détaillées des professionnels contactés.
1. Une cuisine Ikea « scandi bohème » pour 9666 euros, livrée posée
La pro. Estelle Cerqueira, décoratrice pour Oh! ma DECOpropose à cette famille de partir sur une base Ikea, le meilleur rapport qualité/prix selon elle. Elle nous a fourni un book complet avec les plans, des planches tendances et une shopping list pour la pièce entière.
Une cuisine suédoise en kit. Les caissons Metod sont en panneaux de particules mélaminés de 18 mm tandis et les façades proposées ici sont recouvertes d’une feuille décor. Seul le plan de travail en quartz requiert de prendre un rendez-vous pour une conception sur mesure puis nécessite un délai de fabrication de 6 semaines.
L’implantation. Estelle a placé les éléments de rangement en respectant les plans électriques fournis et les normes de sécurité (point feu à distance de l’évier et du caisson du four). Elle a choisi de camoufler tous les électroménagers dans des caissons. Ils disparaissent visuellement et l’espace paraît ainsi plus aéré. Pour animer la composition aux façades lisses, elle a inclus quelques rangements ouverts en hauteur (Tutemo). Tous les rangements bas sont équipés de tiroirs (deux petits et un plus grand) pour une meilleure accessibilité.
Le devis détaillé.
Mobilier Ikea : 2442 euros
(caissons, façades, rails, pieds, boutons-poussoirs…)
Éclairages pour plan de travail : 345 euros
Sanitaires (évier Hällviken + bonde + mélangeur) : 333 euros
Électroménager Ikea : 2246 euros (voir détail ci-après)
Livraison Ikea : 99 euros
Pose Ikea : 1352 euros (facturation en fonction du type de meuble)
Plan de travail en quartz Lapeyre installé : 2699 euros
Crédence Leroy Merlin (non posée) : 350 euros (2 m² de zelliges : 300 euros + colle et joint carrelage Axton : 50 euros)
Déco : 443 euros
(Table Ikea Docksta: 149 € ; 4 chaises Sklum IMS : 76,52 € ; tapis jute Drawer Erika : 109,65 € ; Plafonnier perle de bois Muy Mucho : 64,95 € ; Range-bouteilles Ikea Ivar : 15 € , rangement épicerie Ikea Hejne : 27 €)
Le devis détaillé.
Mobilier Ikea : 2442 euros
(caissons, façades, rails, pieds, boutons-poussoirs…)
Éclairages pour plan de travail : 345 euros
Sanitaires (évier Hällviken + bonde + mélangeur) : 333 euros
Électroménager Ikea : 2246 euros (voir détail ci-après)
Livraison Ikea : 99 euros
Pose Ikea : 1352 euros (facturation en fonction du type de meuble)
Plan de travail en quartz Lapeyre installé : 2699 euros
Crédence Leroy Merlin (non posée) : 350 euros (2 m² de zelliges : 300 euros + colle et joint carrelage Axton : 50 euros)
Déco : 443 euros
(Table Ikea Docksta: 149 € ; 4 chaises Sklum IMS : 76,52 € ; tapis jute Drawer Erika : 109,65 € ; Plafonnier perle de bois Muy Mucho : 64,95 € ; Range-bouteilles Ikea Ivar : 15 € , rangement épicerie Ikea Hejne : 27 €)
L’électroménager. Pour plus de tranquillité, Estelle propose de partir sur de l’électroménager Ikea car il est possible de rencontrer des problèmes d’encastrement avec des éléments d’autres marques.
- Lave-vaisselle encastrable Skinande : 499 euros
- Four pyrolyse Matälskare : 399 euros
- Réfrigérateur/congélateur (213 l / 60 l) combiné A++ Köldgrader encastrable : 999 euros
- Hotte à filtre Underverk : 349 euros
En ce qui concerne la cave à vin, la pro a décidé de la remplacer par un range-bouteilles dans un rangement bois car elle trouve cette solution pratique, compacte et beaucoup moins onéreuse. Estelle n’a pas inclus de micro-ondes.
Les honoraires de la pro. Ils ne sont pas compris dans ce devis. Comptez 210 euros pour le book déco d’Estelle qui vous permet d’être entièrement autonome pour gérer votre projet par vous-même ou ajoutez environ 10 % en plus de ce chiffrage pour déléguer à Estelle la gestion intégrale du chantier à votre place.
- Lave-vaisselle encastrable Skinande : 499 euros
- Four pyrolyse Matälskare : 399 euros
- Réfrigérateur/congélateur (213 l / 60 l) combiné A++ Köldgrader encastrable : 999 euros
- Hotte à filtre Underverk : 349 euros
En ce qui concerne la cave à vin, la pro a décidé de la remplacer par un range-bouteilles dans un rangement bois car elle trouve cette solution pratique, compacte et beaucoup moins onéreuse. Estelle n’a pas inclus de micro-ondes.
Les honoraires de la pro. Ils ne sont pas compris dans ce devis. Comptez 210 euros pour le book déco d’Estelle qui vous permet d’être entièrement autonome pour gérer votre projet par vous-même ou ajoutez environ 10 % en plus de ce chiffrage pour déléguer à Estelle la gestion intégrale du chantier à votre place.
Le choix d’une ambiance générale « scandi bohème ». Fidèle à sa démarche de décoratrice, Estelle a abordé l’aménagement de la pièce dans son ensemble, imaginant une ambiance déco complète : « Je ne savais pas quelle était l’exposition de la pièce alors j’ai tablé sur des coloris très clairs et lumineux. L’ambiance scandi bohème s’est imposée naturellement », nous a-t-elle confié.
Elle a donc préconisé un mobilier de cuisine dans les tons blanc et bois, ajouté une crédence en zellige qui donne une touche artisanale authentique, rajouté une table de repas ronde et conviviale éclairée par une suspension en perles et posée sur un tapis de jute. Comme le zellige est assez onéreux, elle n’en a proposé qu’au-dessus du principal linéaire. L’autre pan de mur a été paré de peinture lessivable.
Elle a donc préconisé un mobilier de cuisine dans les tons blanc et bois, ajouté une crédence en zellige qui donne une touche artisanale authentique, rajouté une table de repas ronde et conviviale éclairée par une suspension en perles et posée sur un tapis de jute. Comme le zellige est assez onéreux, elle n’en a proposé qu’au-dessus du principal linéaire. L’autre pan de mur a été paré de peinture lessivable.
Enfin, elle a également proposé de peindre les murs qui encadrent les baies vitrées de deux teintes peps pour un résultat jeune et dynamique.
Conclusion. « Le vendeur d’Ikea a entièrement validé le projet et il a beaucoup aimé les touches déco », nous a affirmé Estelle
2. Une cuisine Cuisinella noire et bois pour 11 833,84 euros livrée posée
Le pro. Paul Runge est cuisiniste, directeur de Cuisinella Paris 11 République. Il est déjà intervenu dans nos colonnes comme expert à l’occasion de l’article Avec quel pro rénover une cuisine et pour quel budget ?
Conclusion. « Le vendeur d’Ikea a entièrement validé le projet et il a beaucoup aimé les touches déco », nous a affirmé Estelle
2. Une cuisine Cuisinella noire et bois pour 11 833,84 euros livrée posée
Le pro. Paul Runge est cuisiniste, directeur de Cuisinella Paris 11 République. Il est déjà intervenu dans nos colonnes comme expert à l’occasion de l’article Avec quel pro rénover une cuisine et pour quel budget ?
Une cuisine française en kit. Paul a proposé à cette famille la gamme de meubles Vega Prem’s. Elle est composée de caissons et façades en panneaux de particules d’une épaisseur 16 mm. Les façades sont mélaminées avec face arrière blanche et chants assortis. Les meubles sont livrés à plat, montés sur place par l’agenceur Cuisinella.
L’implantation. Le concepteur vendeur n’a pas pris en compte l’aménagement global de la pièce, se concentrant sur la cuisine. Il a proposé une implantation qui correspond aux plans électriques joints et a sélectionné des meubles bas tiroirs (et non porte) pour répondre à la demande d’accessibilité. « Les portes en partie basse interdisent d’accéder au fond des placards sans s’agenouiller », rappelle le pro dont l’ergonomie est une priorité. La touche d’originalité : il a intégré en partie haute une niche avec une façade coulissante. Son plan final est assez proche de celui d’Estelle, hormis l’intégration de la cave à vin qu’il a bien respectée. Elle est placée sous plan, juste avant le lave-vaisselle à la gauche de l’évier.
Le choix d’une ambiance très tendance. Question déco, Paul a suggéré à cette famille des coloris qui s’ajustent avec le parquet (chêne et noir) et qui correspondent aux tendances du moment. Dans l’angle de la cuisine, une touche de couleur bleu paon sur le coffrage toute hauteur, sert d’ancrage à la composition et lui apporte une personnalité forte.
L’implantation. Le concepteur vendeur n’a pas pris en compte l’aménagement global de la pièce, se concentrant sur la cuisine. Il a proposé une implantation qui correspond aux plans électriques joints et a sélectionné des meubles bas tiroirs (et non porte) pour répondre à la demande d’accessibilité. « Les portes en partie basse interdisent d’accéder au fond des placards sans s’agenouiller », rappelle le pro dont l’ergonomie est une priorité. La touche d’originalité : il a intégré en partie haute une niche avec une façade coulissante. Son plan final est assez proche de celui d’Estelle, hormis l’intégration de la cave à vin qu’il a bien respectée. Elle est placée sous plan, juste avant le lave-vaisselle à la gauche de l’évier.
Le choix d’une ambiance très tendance. Question déco, Paul a suggéré à cette famille des coloris qui s’ajustent avec le parquet (chêne et noir) et qui correspondent aux tendances du moment. Dans l’angle de la cuisine, une touche de couleur bleu paon sur le coffrage toute hauteur, sert d’ancrage à la composition et lui apporte une personnalité forte.
Le devis détaillé.
Meubles : 4193,08 €
Électroménager : 2130 € (voir détail ci-dessous)
Sanitaires : 348 € (dont cuve Inox 50 cm à fixer sous le plan de travail, siphon 249 euros et mitigeur chrome 99 euros)
2 plans de travail en quartz Silestone, Blanc Absolu, épaisseur 20 mm dimensions : 4038 x 650 et 1300 x 650 avec pose : 3177,26 €
Fournitures et accessoires : (ramasse-couverts et éclairage plan de travail) : 346,06 €
Livraison : 302,40 €
Pose : 1340,04 €
L’électroménager.
- Plaque induction Hotpoint, noire, 60 cm, 3 zones, 3 boosters (KIA630MC) : 404 €
- Réfrigérateur combiné Whirlpool, 275 L dont congélateur 80 L, A+, froid statique : 617 €
- Lave-vaisselle Rosières encastré, connecté wi-fi, 16 couverts, 43 dB, consommation d’eau 10 L, programme Silence 40 dB, 499 €
- Cave à vin encastrable sous plan Candy, classe B, 19 bouteilles : 610 €
- Ni micro-ondes ni hotte pris en compte dans le chiffrage
Les honoraires du pro. Les prix fournis par le cuisiniste sont tout compris, les honoraires sont compris dans le devis.
Conclusion. « J’ai respecté le plan électrique, ainsi le client n’aura pas de travaux préparatoires à effectuer. Mais avec un plan imposé je n’ai pu être original dans mes propositions ni prendre en compte plus finement l’ergonomie en fonction des besoins clients, ce que nous faisons en général. L’avantage de l’exercice est que les lecteurs de Houzz pourront se rendre compte d’un budget réel », nous a affirmé Paul.
3. Une cuisine italienne et du design pour 18 848 euros livrée posée
Le pro. Créé par Sébastien Guinut à La Rochelle, Octant Design est un bureau d’études en architecture d’intérieur intégré à un show-room de mobilier design.
Meubles : 4193,08 €
Électroménager : 2130 € (voir détail ci-dessous)
Sanitaires : 348 € (dont cuve Inox 50 cm à fixer sous le plan de travail, siphon 249 euros et mitigeur chrome 99 euros)
2 plans de travail en quartz Silestone, Blanc Absolu, épaisseur 20 mm dimensions : 4038 x 650 et 1300 x 650 avec pose : 3177,26 €
Fournitures et accessoires : (ramasse-couverts et éclairage plan de travail) : 346,06 €
Livraison : 302,40 €
Pose : 1340,04 €
L’électroménager.
- Plaque induction Hotpoint, noire, 60 cm, 3 zones, 3 boosters (KIA630MC) : 404 €
- Réfrigérateur combiné Whirlpool, 275 L dont congélateur 80 L, A+, froid statique : 617 €
- Lave-vaisselle Rosières encastré, connecté wi-fi, 16 couverts, 43 dB, consommation d’eau 10 L, programme Silence 40 dB, 499 €
- Cave à vin encastrable sous plan Candy, classe B, 19 bouteilles : 610 €
- Ni micro-ondes ni hotte pris en compte dans le chiffrage
Les honoraires du pro. Les prix fournis par le cuisiniste sont tout compris, les honoraires sont compris dans le devis.
Conclusion. « J’ai respecté le plan électrique, ainsi le client n’aura pas de travaux préparatoires à effectuer. Mais avec un plan imposé je n’ai pu être original dans mes propositions ni prendre en compte plus finement l’ergonomie en fonction des besoins clients, ce que nous faisons en général. L’avantage de l’exercice est que les lecteurs de Houzz pourront se rendre compte d’un budget réel », nous a affirmé Paul.
3. Une cuisine italienne et du design pour 18 848 euros livrée posée
Le pro. Créé par Sébastien Guinut à La Rochelle, Octant Design est un bureau d’études en architecture d’intérieur intégré à un show-room de mobilier design.
Une cuisine italienne montée en usine. Octant design travaille sur la base de mobilier haut de gamme de chez Arrital Cucine, un cuisiniste italien. « Nous sommes sur une cuisine milieu/haut de gamme : meubles avec caissons grands volumes et plinthe de 6 cm en alu anodisé ; caissons montés et collés en usine en panneaux haute densité y compris fond épais qui assure un parfait équerrage ; Plan de travail en quartz Pierredeplan 13 mm ; Nombreux tiroirs et casseroliers ; Électroménagers Siemens », nous détaille le pro.
L’implantation. Pour trouver le volume idéal pour la cuisine, Sébastien Guinut n’a pas omis de prendre en compte celui du salon et d’intégrer dans la pièce un meuble de rangement/bibliothèque. Il propose donc un plan de cuisine très différent de ses confrères, prenant le risque de bousculer les réseaux électriques et de plomberie. Il sera donc nécessaire de déplacer les réseaux et un radiateur en amont moyennant des frais supplémentaires (compter environ 700 euros en sus pour la préparation technique de la pièce).
Le linéaire de cuisine a été ramené sur le côté droit de la pièce tandis que le mur d’entrée a été paré d’une bibliothèque suivie de colonnes four/combiné réfrigérateur et rangements. Que ce soit côté linéaire ou colonne, le pro a misé sur la régularité des lignes et les symétries. Comme le cuisiniste Paul Runge, Sébastien a joué la carte de l’accessibilité avec des meubles bas équipés de grands tiroirs casseroliers. Les meubles hauts, toute hauteur, offrent plus de rangement et sont parfaitement intégrés dans l’espace. Si la cuisine a davantage de rangements, en revanche, la proposition de Sébastien a moins de plan de travail que les autres propositions.
Le devis détaillé. Il ne concerne que la partie en coloris ivoire, c’est-à-dire la cuisine.
Meubles (façades avec gorges, finition mélaminé extra-mat ivoire) : 6256 €
Électroménager : 5480 € (voir détail ci–dessous)
Crédence en stratifié HPL bifaces noyer : 959 €
Plan de travail en quartz Pierredeplan 13 mm, chanfrein et rainurage égouttoir : 2470 €
Sanitaires : 758 € (cuve 50 x 40 Blanco ANDANO 500 U : 462 € ; et mitigeur Blanco Mila-s avec douchette : 296 €)
Accessoire (poubelle) et éclairage : 355 €
Livraison : 170 €
Pose : 2400 €
Meubles (façades avec gorges, finition mélaminé extra-mat ivoire) : 6256 €
Électroménager : 5480 € (voir détail ci–dessous)
Crédence en stratifié HPL bifaces noyer : 959 €
Plan de travail en quartz Pierredeplan 13 mm, chanfrein et rainurage égouttoir : 2470 €
Sanitaires : 758 € (cuve 50 x 40 Blanco ANDANO 500 U : 462 € ; et mitigeur Blanco Mila-s avec douchette : 296 €)
Accessoire (poubelle) et éclairage : 355 €
Livraison : 170 €
Pose : 2400 €
Électroménager.
- Réfrigérateur combiné intégrable 267 l (Siemens KI34VV21FF) : 820 €
- Four multifonction pyrolyse Inox 71 l - Classe A - (Siemens HB573ABR0 ) : 730 €
- Micro-ondes 900 W encastrable Inox 25 l (Siemens BF550LMR0) : 460 €
- Lave-vaisselle 60 cm tout intégrable - A+AA - 12 (Siemens SN65D002EU ) 550 €
- Table induction 60 cm (Siemens ED631BSB5E ) : 660 €
- Groupe encastrable Mini Pure’line Blanc - Moteur intégré (NOVY 811) : 1200 €
+ filtre charbon : 109 €
- Cave à vin encastrable 18 bouteilles froid ventilé (Rosière RWCB45) : 900 €
Sébastien est le seul à avoir chiffré un programme électroménager complet et haut de gamme.
- Réfrigérateur combiné intégrable 267 l (Siemens KI34VV21FF) : 820 €
- Four multifonction pyrolyse Inox 71 l - Classe A - (Siemens HB573ABR0 ) : 730 €
- Micro-ondes 900 W encastrable Inox 25 l (Siemens BF550LMR0) : 460 €
- Lave-vaisselle 60 cm tout intégrable - A+AA - 12 (Siemens SN65D002EU ) 550 €
- Table induction 60 cm (Siemens ED631BSB5E ) : 660 €
- Groupe encastrable Mini Pure’line Blanc - Moteur intégré (NOVY 811) : 1200 €
+ filtre charbon : 109 €
- Cave à vin encastrable 18 bouteilles froid ventilé (Rosière RWCB45) : 900 €
Sébastien est le seul à avoir chiffré un programme électroménager complet et haut de gamme.
Une ambiance classique chic. Sébastien a choisi d’étonner avec une proposition haute en couleur en misant sur une bibliothèque bordeaux et un coin salon anthracite (des teintes qu’il sera facile de changer dans le futur). En ce qui concerne la cuisine, en revanche, il privilégie les tons clairs et sobres pour une pérennité maximale.
Les honoraires du pro. 500 euros pour l’étude. Pas d’indication sur les prix du suivi de chantier. Rajoutez 10 à 15 % qui représentent un pourcentage classique pour un architecte d’intérieur.
Les honoraires du pro. 500 euros pour l’étude. Pas d’indication sur les prix du suivi de chantier. Rajoutez 10 à 15 % qui représentent un pourcentage classique pour un architecte d’intérieur.
Vous êtes en quête d'un artisan pour votre projet en rénovation de cuisine ?
Nous vous aidons à trouver les meilleurs pros
Nous vous aidons à trouver les meilleurs pros
Le verdict de la famille. La famille a été sensible à chacune de ces propositions et remercie les professionnels. Elle a été bluffée par la proposition inattendue de Sébastien qui a montré son savoir-faire en matière d’agencement d’espace. Doit-elle se risquer à faire un emprunt pour faire monter en gamme l’aménagement de sa pièce ?
Les deux autres propositions seraient plus raisonnables quant à ses finances actuelles. D’un côté, celle d’Estelle, la moins onéreuse, d’autant que son chiffrage prend en compte l’équipement complet de la pièce et, de l’autre, la proposition de Paul de Cuisinella fortement concurrentielle car clef en main, bien équipée, ergonomique, tendance (et française !).
ET VOUS ?
Quel serait votre choix ? Que conseilleriez-vous à cette famille ?
Lire aussi :
Avec quel pro rénover une cuisine et pour quel budget ?
Trouvez des professionnels près de chez vous sur Houzz
Plus de photos déco
Plus de conseils pour la cuisine
Les deux autres propositions seraient plus raisonnables quant à ses finances actuelles. D’un côté, celle d’Estelle, la moins onéreuse, d’autant que son chiffrage prend en compte l’équipement complet de la pièce et, de l’autre, la proposition de Paul de Cuisinella fortement concurrentielle car clef en main, bien équipée, ergonomique, tendance (et française !).
ET VOUS ?
Quel serait votre choix ? Que conseilleriez-vous à cette famille ?
Lire aussi :
Avec quel pro rénover une cuisine et pour quel budget ?
Trouvez des professionnels près de chez vous sur Houzz
Plus de photos déco
Plus de conseils pour la cuisine
























Comment gérer l’achat et l’aménagement d’un bien neuf sur plan ?