Visites Privées
Dossiers populaires
Avant/Après : Restructuration apaisante pour haussmannien de 97m2
5 mois de rénovation intégrale en plein Covid inspirent un univers tout doux pour des trentenaires qui attendent un bébé
Le 9ᵉ arrondissement de Paris est l’un des plus prisés par les familles. Ainsi, quand ces trentenaires avec un petit garçon commencent à se sentir à l’étroit dans leur 45 m² en raison de l’arrivée d’un heureux événement, cherchent-ils à rester dans les parages. Ils ont le coup de cœur pour un haussmannien de 97 m² qui a gardé son plan d’origine et dont les pièces principales sont remplies de lumière à la faveur de cinq grandes fenêtres sur une cour arborée. Mais l’état de l’appartement requiert une rénovation et une restructuration intégrales. La propriétaire, férue de décoration, repère sur les réseaux sociaux l’architecte d’intérieur Alexandra Gorla. C’est à quatre mains qu’elles vont composer ce cocon de douceur, tandis qu’à l’extérieur fait rage la première vague de Covid-19.
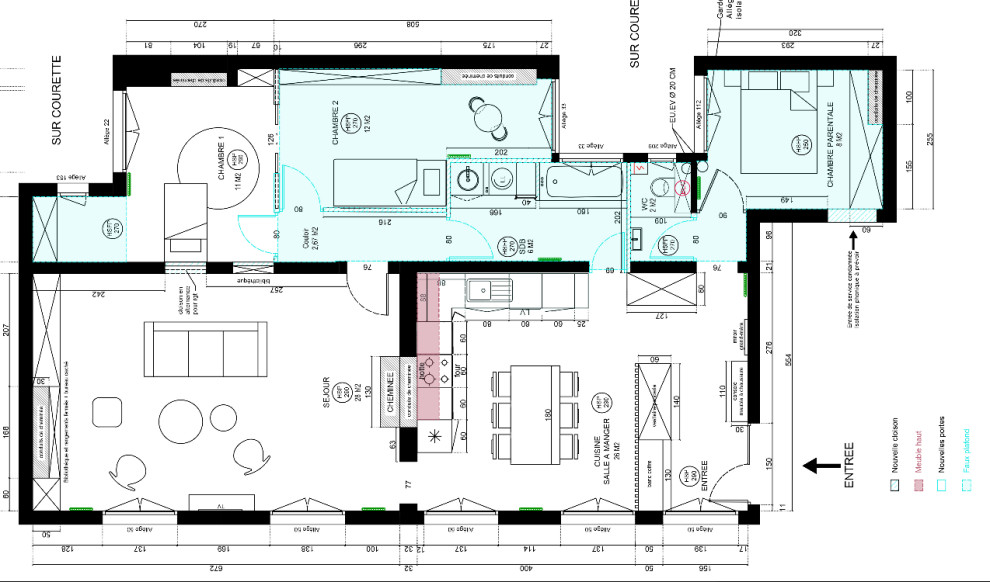
Avant. Au troisième étage sur cour d’un bel immeuble en pierre de taille, ce 97 m² était resté typique de l’époque haussmannienne et l’on y décelait encore deux circulations, l’une pour les maîtres, l’autre pour les domestiques. Les pièces de vie, en enfilade, donnaient sur une cour lumineuse et verdoyante. Avec leur entrée de service dans la cuisine, les pièces d’eau et une chambre secondaire, s’ouvraient sur une courette sombre, de l’autre côté d’un grand couloir.
Après. Consultée en janvier 2020, l’architecte d’intérieur Alexandra Gorla a d’emblée préconisé un plan plus transversal, imaginant abattre le porteur entre pièces de vie et couloir. Mais comme l’accord avec la copropriété se faisait attendre et que le premier confinement en raison de la crise sanitaire avait fortement retardé les travaux, il a été décidé de conserver ce mur de refend. Salon et cuisine sont venus occuper les meilleures places près des grandes fenêtres. L’espace arrière, le plus sombre, a été consacré aux chambres et salles d’eau.
Trouvez un architecte d’intérieur près de chez vous sur Houzz
Trouvez un architecte d’intérieur près de chez vous sur Houzz
Après. Pour cette famille désireuse « de ramener la campagne en ville » et de beaucoup d’apaisement en ce contexte de crise sanitaire, Alexandra Gorla a inventé un univers doux et poétique, basé sur des menuiseries sur mesure avec inserts de cannage clair, fresques de papier peint dépaysantes et des notes naturelles en bois clair rehaussé par des touches de végétation.
La propriétaire s’est réellement impliquée dans le processus de création et c’est au fil d’un « échange nourri » qu’elles sont arrivées à cette douce harmonie. « J’avais initialement proposé une ambiance en terracotta et vert mais ma cliente a préféré du bleu ciel », partage notamment Alexandra.
La propriétaire s’est réellement impliquée dans le processus de création et c’est au fil d’un « échange nourri » qu’elles sont arrivées à cette douce harmonie. « J’avais initialement proposé une ambiance en terracotta et vert mais ma cliente a préféré du bleu ciel », partage notamment Alexandra.
Pour intimiser l’entrée sans bloquer la lumière, un sas a été esquissé par une verrière blanche à l’orée de l’ancienne pièce de vie. Un décor bucolique en papier peint crée une intéressante toile de fond tandis qu’au sol, un insert de carreaux de ciment dans le parquet à chevrons d’origine, ramène une note « campagne chic ». « J’incruste souvent les carreaux de ciment dans le parquet et ça a donné envie à ma cliente d’insérer du papier peint dans les encadrements moulurés des cimaises », se remémore Alexandra.
Papier peint : Fresque Fontainebleau chez PaperMint
Papier peint : Fresque Fontainebleau chez PaperMint
Après. Baignée de lumière par ses grandes fenêtres, la cuisine/salle à manger qui se trouve juste derrière le sas d’entrée appelle tous les regards. Avec son décor céleste relevé de notes de bois blond, c’est une pièce qui aimante désormais la famille et les amis de passage.
« J’avais imaginé un décor dans les verts mais ma cliente a arrêté son choix pour ce bleu pâle, Bone China Blue 1283, aperçu sur un nuancier du fabricant de peintures Little Greene », rapporte Alexandra.
Table : Habitat
« J’avais imaginé un décor dans les verts mais ma cliente a arrêté son choix pour ce bleu pâle, Bone China Blue 1283, aperçu sur un nuancier du fabricant de peintures Little Greene », rapporte Alexandra.
Table : Habitat
Composée à partir de caissons Ikea et habillée de portes réalisées sur mesure en médium peint en usine, cette cuisine, offre une belle longueur de plans de travail grâce à son implantation en L. Ces derniers ont été recouverts de quartz, un mélange de résine et de poudre minérale. « C’est mon matériau préféré pour sa robustesse, sa finition et son entretien », nous confie Alexandra Gorla.
Quartz : Stone Italia Arabesque chez Easy Plan de travail ; Carreau de ciment : Mosaic Factory
Quartz : Stone Italia Arabesque chez Easy Plan de travail ; Carreau de ciment : Mosaic Factory
L’harmonie de l’ensemble provient d’une attention toute particulière aux détails : les discrètes touches sophistiquées des poignées et robinetterie en laiton doré brossé, la crédence en zelliges posés en chevrons rappelant le parquet, le motif du carreau de ciment qui renvoie à la date de construction de l’immeuble… Et aussi les grandes étagères de 3,20 m de long fabriquées par le menuisier du chantier, dont les bords juste équarris ramènent la touche campagne recherchée.
Seule déception de la professionnelle : « Ikea n’a toujours pas de disponibilité sur la porte Voxtorp de finition du combiné réfrigérateur ! », indique-t-elle, rappelant que depuis la pandémie, les ruptures de stocks de matériaux et aménagements se multiplient.
Seule déception de la professionnelle : « Ikea n’a toujours pas de disponibilité sur la porte Voxtorp de finition du combiné réfrigérateur ! », indique-t-elle, rappelant que depuis la pandémie, les ruptures de stocks de matériaux et aménagements se multiplient.
Après. La cheminée blanche, préférée par les occupants des lieux, a remplacé la noire pour orner le séjour, lequel émane de la réunion des deux autres pièces en enfilade placées derrière le salon d’origine.
Le passage de porte entre cuisine et séjour a été peint en bleu nuit pour annoncer le thème de cette pièce.
Sur celui-ci notez le délicat interrupteur dans le style vintage, l’un des modèles préférés d’Alexandra. « J’emploie souvent ces modèles Iris de Modelec en satiné qui ressemblent à s’y méprendre à des anciens modèles en céramique », glisse-t-elle.
Profitons de cette parenthèse technique pour évoquer le sort des radiateurs à eau chaude et de la chaudière. Les propriétaires ne souhaitant plus de gaz, les radiateurs électriques ont été préférés ainsi qu’un chauffe-eau instantané extraplat. « Je ne pose que des modèles Ariston Evo Velis Titanium car l’anode en titane fonctionne à vie sans entretien. Au lieu d’alourdir la facture de 3000 euros pour une chaudière au gaz, ce système posé coûte moins de 1000 euros et l’électrique, c’est écologique ! », déclare Alexandra.
Profitons de cette parenthèse technique pour évoquer le sort des radiateurs à eau chaude et de la chaudière. Les propriétaires ne souhaitant plus de gaz, les radiateurs électriques ont été préférés ainsi qu’un chauffe-eau instantané extraplat. « Je ne pose que des modèles Ariston Evo Velis Titanium car l’anode en titane fonctionne à vie sans entretien. Au lieu d’alourdir la facture de 3000 euros pour une chaudière au gaz, ce système posé coûte moins de 1000 euros et l’électrique, c’est écologique ! », déclare Alexandra.
Après. Quand les deux pièces ont été décloisonnées pour former le séjour, la cheminée de marbre rouge a été remplacée par cette grande composition bibliothèque réalisée en placage chêne et médium peint au pistolet.
Peinture : Little Greene, basalte 221
Peinture : Little Greene, basalte 221
Le contexte sanitaire a influencé le dessin de cette menuiserie sur mesure car « sur le côté droit, les portes s’ouvrent pour dévoiler un bureau », nous explique l’architecte d’intérieur. En effet, le télétravail est devenu obligatoire lors de la première phase de confinement, pendant laquelle a été conçu ce projet. Il est donc apparu crucial aux propriétaires de disposer d’un emplacement pour travailler à la maison.
Le fond de la bibliothèque a été paré du papier peint Nuovolette de chez Cole & Son, un décor de nuages qui continue à enrichir le thème onirique de l’ensemble.
Après. Si dans les tout premiers plans de la pro celle-ci avait pensé cette petite pièce de 8 m² comme une buanderie, elle est finalement devenue la suite parentale. « Les propriétaires ont souhaité occuper cette pièce au calme dans l’appartement », indique Alexandra.
Après. Afin de cacher l’irrégularité du mur tout en apportant de la fonction à ces occupants en quête de rangements, l’architecte d’intérieur leur a concocté un dressing sur mesure qui s’adapte à ces particularités.
Le plancher à chevrons, irrécupérable dans la partie sur cour, a été remplacé par un chêne contrecollé.
Applique en cannage : Dolkie chez La Redoute Intérieur ; poignées du dressing : boutonsetpoignées.fr
Le plancher à chevrons, irrécupérable dans la partie sur cour, a été remplacé par un chêne contrecollé.
Applique en cannage : Dolkie chez La Redoute Intérieur ; poignées du dressing : boutonsetpoignées.fr
Après. La chambre de l’aîné de la famille, 3 ans, donne donc sur l’arrière de l’appartement, assombri par sa distribution sur courette. Cette petite chambre s’ouvre sur celle de sa petite sœur au moyen de deux portes à galandage placées en vis-à-vis (jusqu’à 126 cm de large).
Comme elle était assez exiguë, la professionnelle a aménagé le lit en hauteur, sur une estrade abritant de nombreux rangements. « C’est un vrai Tetris avec penderie coulissante, tiroirs commode, bibliothèque et coffre à jouets », détaille Alexandra qui confesse sa passion pour l’optimisation de l’espace et le dessin du mobilier sur mesure.
Comme elle était assez exiguë, la professionnelle a aménagé le lit en hauteur, sur une estrade abritant de nombreux rangements. « C’est un vrai Tetris avec penderie coulissante, tiroirs commode, bibliothèque et coffre à jouets », détaille Alexandra qui confesse sa passion pour l’optimisation de l’espace et le dessin du mobilier sur mesure.
Pour la réalisation de ce lit cabane fixe, dont le garde-corps ajouré est solidaire du plafond, la professionnelle, très attentive à la dimension écologique dans tous ses chantiers, a choisi le contreplaqué de bouleau. « C’est le matériau le moins toxique pour l’air. Rénover n’est pas une action écologique en soi alors autant faire des choix vertueux. Mes clients sont d’ailleurs toujours partants dès qu’ils y ont été initiés, quitte même à payer un peu plus cher les fournitures », affirme-t-elle.
C’est également pour cette raison qu’elle préfère employer un menuisier local plutôt que d’alourdir le bilan éthique de la rénovation par le poids carbone du transport.
Dans la chambre du bébé, l’ancien cagibi du fond du couloir s’est mué en dressing sur mesure. Un banc coffre permet de ranger les jouets tandis que le dressing monte jusqu’en haut des 2,90 m de la pièce pour optimiser l’espace. Un papier peint aux volatiles verts fait écho à celui du grand frère où cerfs et oiseaux ramènent un peu de nature à domicile.
Papier peint chambre d’Arthus : Woody Chestnut chez Les Dominotiers ; Papier peint bébé : Humming Birds
Dans la chambre du bébé, l’ancien cagibi du fond du couloir s’est mué en dressing sur mesure. Un banc coffre permet de ranger les jouets tandis que le dressing monte jusqu’en haut des 2,90 m de la pièce pour optimiser l’espace. Un papier peint aux volatiles verts fait écho à celui du grand frère où cerfs et oiseaux ramènent un peu de nature à domicile.
Papier peint chambre d’Arthus : Woody Chestnut chez Les Dominotiers ; Papier peint bébé : Humming Birds
Après. La nouvelle salle de bains a été habillée des mêmes zelliges que la crédence de cuisine. Alexandra a conseillé de faire remonter haut le carrelage sur les murs pour un entretien facilité dans le temps et une niche pour installer les produits de bains.
Ce plan de toilette est un bon exemple de la composition à quatre mains qui s’est opérée sur ce chantier : « Ma cliente a souhaité rajouter ce bleu ciel et ces appliques “campagne” à la base de zelliges, robinetterie noire et miroir rond que j’avais proposée », affirme Alexandra.
Quant à la vasque chic et sobre avec son liseré noir, elles l’avaient toutes deux repérée au même moment. « Nous avons vraiment formé un duo de choc ! », résume Alexandra avec le sourire.
Vasque : Masalledebain.com
Vasque : Masalledebain.com
Avant. Finissons la visite par les petits coins. Nous noterons que supprimer le réseau de radiateurs à eau chaude permet aussi de se délester de tous les tuyaux difficiles à cacher en rénovation.
Après. Un envol d’hirondelles nous accueille dans cette pièce où l’on retrouve la palette d’ensemble : ciel, bleu ardoise, bois clair et touches contrastantes. Au sol, un carreau de ciment hexagonal nous laisse des étoiles plein les yeux.
Papier peint : Swallow Cloud chez PaperMint
Papier peint : Swallow Cloud chez PaperMint
Cette relation nourrie en plein confinement a donné naissance à ce décor aux bleus apaisants. Cinq mois de travaux ont suivi, telle une belle histoire où architecte d’intérieur et propriétaire ont transcendé ensemble cette période terriblement anxiogène dans la création d’un intérieur rassurant et empreint d’onirisme.
ET VOUS ?
Que pensez-vous de cette rénovation ?
ET VOUS ?
Que pensez-vous de cette rénovation ?





































Qui habite ici ? Un couple de trentenaires, leur garçon de 3 ans et leur fille bébé
Emplacement : Paris 9ᵉ, rue de Clichy
Livraison : septembre 2020
Durée des travaux : 5 mois
Superficie : 97 m²
Architecte d’intérieur : Alexandra Gorla de LD&CO.Paris
Entreprise générale : Vint
Budget : 170 000 euros (hors honoraires) dont 39 000 euros pour les menuiseries sur mesure
Photos : Laura Innocente