Projets nés sur Houzz
Avant/Après : Petite maison en triplex gagne des combles ludiques
À Maisons-Alfort, cet aménagement de combles bien maîtrisé apporte de la lumière dans toute la maison
Fin 2020, suite aux deux confinements, ce jeune couple de Parisiens s’expatrie en banlieue proche, motivé par l’achat d’un bien avec un espace extérieur. À Maisons-Alfort, il acquiert une petite maison de ville de style loft avec terrasse, rénovée en 2018 par l’ancien propriétaire. Afin d’exploiter les combles et, au passage, redonner du cachet et de la lumière au logement, ils font confiance à l’architecte et ingénieur Tina Merkes. « Ils n’ont pas fait d’appel d’offres car ils m’avaient repérée au travers d’un reportage sur Houzz à la problématique de combles similaire et, par chance, je n’étais pas loin de chez eux », nous a affirmé la pro lors de la visite de ce bien.
En proche banlieue sud-est de Paris, à Maisons-Alfort, nous traversons la cour arborée d’un immeuble début de siècle de quatre étages avant de pénétrer dans la maisonnette. Une vaste pièce de vie typée loft nous accueille par la cuisine donnant sur une belle terrasse. « C’est elle qui a fait craquer les propriétaires à l’achat ! », nous souffle Tina Merkes, l’ingénieur architecte en charge du projet. À l’arrière, le salon, dessert une chambre tandis que l’escalier en acier permet de gagner l’étage.
Trouvez un ingénieur structure sur Houzz
Trouvez un ingénieur structure sur Houzz
Plan existant niveau 0 (67 m²)
Rénovée en 2018 sur ses deux premiers niveaux, la maison avait plu aux jeunes propriétaires en l’état et ils ne souhaitaient pas tout changer. Néanmoins, ils désiraient aménager les combles et, chagrinés quelque peu par le manque de lumière et de cachet du salon et du premier étage, ils espéraient pouvoir améliorer ces points.
Rénovée en 2018 sur ses deux premiers niveaux, la maison avait plu aux jeunes propriétaires en l’état et ils ne souhaitaient pas tout changer. Néanmoins, ils désiraient aménager les combles et, chagrinés quelque peu par le manque de lumière et de cachet du salon et du premier étage, ils espéraient pouvoir améliorer ces points.
Avant. Le salon, en fond de rez-de-chaussée sur cour, était effectivement sombre car sa seule prise de lumière était en façade.
Après. L’architecte a proposé d’emblée de créer un puits de lumière depuis le toit jusqu’au niveau bas. « Mes clients étaient ouverts aux solutions architecturales et ont validé tout de suite le plafond de verre », affirme l’architecte. Un ponçage du parquet a également contribué à éclaircir l’ambiance.
Cette photo est prise depuis le salon, en regardant vers la charpente. « Nous avons installé les verrières de toit et les trémies dans les étages de sorte à récupérer, non seulement de la luminosité, mais véritablement les rayons du soleil jusqu’en bas », indique la pro. Pour ce faire, elle s’est livrée à des vérifications en plan, coupe et en maquette 3D. Le bureau d’études techniques, quant à lui, a fourni les plans et les notes de calcul pour les créations des deux trémies et la modification de la charpente.
Plan existant R+1
Le premier (et seul) étage d’origine faisait 26 m². En haut de l’escalier existant en bois peint en noir, on débouchait face à une minuscule salle de bains. Sur la gauche un sas desservait deux chambres de 11,5 et 8,6 m².
Le premier (et seul) étage d’origine faisait 26 m². En haut de l’escalier existant en bois peint en noir, on débouchait face à une minuscule salle de bains. Sur la gauche un sas desservait deux chambres de 11,5 et 8,6 m².
Plan projet R+1
La salle de bains a été agrandie et la chambre 1 transformée. Elle est devenue un bureau traversant, avec escalier, afin de permettre la montée vers le dernier étage.
La salle de bains a été agrandie et la chambre 1 transformée. Elle est devenue un bureau traversant, avec escalier, afin de permettre la montée vers le dernier étage.
Avant. Voici la chambre 1 avant travaux. Le mur violet, plaqué, correspond maintenant au mur de briques. La cloison de droite de la chambre a été abattue. Il ne reste plus qu’une chambre fermée à l’étage. Celle-ci, dont nous n’avons pas de visuel, n’a pas été modifiée.
Après. La chambre 1 s’est transformée en bureau ouvert qui permet de gagner le niveau deux. « Ce mur, ce fut en effet la belle découverte du chantier ! », s’exclame Tina Merkes. Maîtres d’ouvrage et professionnelle ont bien sûr eu envie de le mettre en valeur pour renforcer la tonalité loft de la maison et l’ancrer dans l’histoire des lieux. L’entreprise tout corps d’état ART.BAT, qui s’est chargée de la majorité des travaux, a peiné pour gratter l’enduit qui badigeonnait les briques, les poncer puis les vernir, mais le charme gagné est indéniable.
Débouchant à droite du panier, l’escalier qui provient du rez-de-chaussée fait face à la salle de bains. Celle-ci a gardé sa place mais a été agrandie pour répondre à la demande du couple. Elle est venue mordre sous le nouvel escalier installé pour gagner les combles. L’architecte l’a fait équiper d’un vitrage fixe au plafond (en biais) pour profiter de la lumière provenant des verrières de toit. Une porte verrière en métal noir, dans l’esprit industriel, lui dispense également de la lumière.
L’emplacement de l’escalier vers le deuxième étage a été l’une des questions centrales du chantier. « Traditionnellement je l’aurais placé au-dessus de l’autre pour gagner de la place. Mais nous avons préféré le long du pignon, en suivant la montée de la charpente, pour ne pas gâcher la partie avec le plus de hauteur sous plafond dans les combles », explique l’architecte.
Rénovation : 10 questions à se poser avant d’aménager des combles
Rénovation : 10 questions à se poser avant d’aménager des combles
L’escalier a demandé à la pro de faire un appel d’offres particulier. Pour s’adapter à cet espace sans le moindre angle droit, elle l’a conçu avec soin, plus étroit que de coutume, truffé de rangements avec un garde-corps esthétique, et néanmoins aux normes, avec ses tiges d’acier espacées de 11 cm. « Pour sa réalisation sur mesure, j’ai consulté Hopfab et le résultat a été très satisfaisant ! », affirme-t-elle, eu égard aux finitions soignées de l’ouvrage et son prix serré de 12 000 euros TTC.
Arrêtons-nous un instant sur le plancher du bureau, percé pour accueillir l’épais vitrage feuilleté de 1,40 x 1,40 cm. Cette réalisation a demandé un travail conséquent de renfort de la trémie, laquelle a été quadrillée de poutres porteuses arrimées dans la façade.
L’architecte avait proposé au départ l’usage de quatre vitrages fixés par un croisillon « tant pour minimiser le poids à la manutention que pour rassurer les visiteurs avec le vertige ou encore pour le prix moindre », mais les propriétaires avaient très envie de l’effet « waouh » d’un grand vitrage. « Les artisans de la société ART.BAT ont dû se mettre à quatre pour le porter mais on y est arrivé ! », se remémore Tina.
L’architecte avait proposé au départ l’usage de quatre vitrages fixés par un croisillon « tant pour minimiser le poids à la manutention que pour rassurer les visiteurs avec le vertige ou encore pour le prix moindre », mais les propriétaires avaient très envie de l’effet « waouh » d’un grand vitrage. « Les artisans de la société ART.BAT ont dû se mettre à quatre pour le porter mais on y est arrivé ! », se remémore Tina.
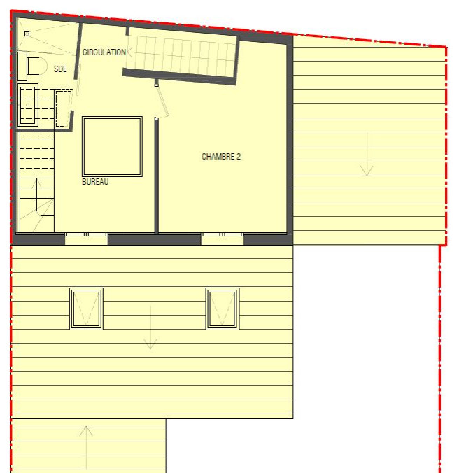
Plan existant R+2
Nous gagnons à présent l’étage des combles. Les combles de 26 m² au sol étaient perdus, occupés uniquement par un Velux ancien et un chauffe-eau.
Nous gagnons à présent l’étage des combles. Les combles de 26 m² au sol étaient perdus, occupés uniquement par un Velux ancien et un chauffe-eau.
Plan projet R+2
Il a été décidé de les transformer en pièce en plus et pour ce faire, ils ont été isolés avec soin : « avec 20 cm de laine de verre lambda 32 (résistance R=6,25 m².K/W) on est au-delà des exigences de la réglementation thermique et conformes aux exigences pour le crédit d’impôt », indique Tina. L’architecte conseille toujours à ses clients d’isoler au maximum, même au-delà des exigences, dans la mesure où l’épaisseur de l’isolant ne compromet pas l’esthétique de l’ouvrage ni la hauteur utile.
Il a été décidé de les transformer en pièce en plus et pour ce faire, ils ont été isolés avec soin : « avec 20 cm de laine de verre lambda 32 (résistance R=6,25 m².K/W) on est au-delà des exigences de la réglementation thermique et conformes aux exigences pour le crédit d’impôt », indique Tina. L’architecte conseille toujours à ses clients d’isoler au maximum, même au-delà des exigences, dans la mesure où l’épaisseur de l’isolant ne compromet pas l’esthétique de l’ouvrage ni la hauteur utile.
Avant. Les combles traversés par une contrefiche (la poutre en biais qui renforce la charpente) n’avaient pas été aménagés par le précédent propriétaire. « Bien que nous ayons 26 m² au sol au départ, nous ne pouvions dégager le moindre mètre carré Carrez », justifie Tina Merkes. Mais, bien qu’elle ait émis cette réserve dès la première visite, ce couple avait un profond désir de cet espace en plus.
Après. Leur motivation de départ était solide, souhaitant créer dans cet espace à la fois une chambre d’appoint et une zone ludique avec un filet. Aussi ont-ils fait les démarches nécessaires pour que la copropriété accepte leur aménagement de combles.
L’architecte s’est quant à elle débrouillée pour faire aboutir la demande de modification du toit auprès des services d’urbanisme de la commune. « C’était l’inconnue du projet… Nous sommes en secteur ABF (NDLR secteur à proximité de monuments historiques avec contrôle renforcé des règles d’urbanisme) et il a fallu que je parlemente avec l’architecte des bâtiments de France afin qu’il accepte notre projet de verrière double. Comme elle ne se voit pas de la rue, c’est passé », explique-t-elle.
Plus de photos de chambres sous les toits sur Houzz
L’architecte s’est quant à elle débrouillée pour faire aboutir la demande de modification du toit auprès des services d’urbanisme de la commune. « C’était l’inconnue du projet… Nous sommes en secteur ABF (NDLR secteur à proximité de monuments historiques avec contrôle renforcé des règles d’urbanisme) et il a fallu que je parlemente avec l’architecte des bâtiments de France afin qu’il accepte notre projet de verrière double. Comme elle ne se voit pas de la rue, c’est passé », explique-t-elle.
Plus de photos de chambres sous les toits sur Houzz
Outre le Velux déjà en place, un autre Velux et deux verrières de toit type atelier de chez Cast PMR ont apporté de la lumière à la zone, et bien au-delà, puisque les deux étages en dessous ont profité de l’opération.
Pour diffuser largement la lumière vers le centre du logement, le filet de 2,10 x 3,25 m (6,8 m²) a été installé juste sous les deux verrières. Il a été commandé chez Loftnets et installé par la société de travaux sur un cadre de poutres en bois solidement arrimées aux porteurs à l’aide de 80 pitons en Inox.
10 questions pour installer d’urgence un filet chez soi
Pour diffuser largement la lumière vers le centre du logement, le filet de 2,10 x 3,25 m (6,8 m²) a été installé juste sous les deux verrières. Il a été commandé chez Loftnets et installé par la société de travaux sur un cadre de poutres en bois solidement arrimées aux porteurs à l’aide de 80 pitons en Inox.
10 questions pour installer d’urgence un filet chez soi
Le filet d’intérieur, dérivé du monde du catamaran, est une solution ludique qui permet de créer une zone lounge pour lire, s’amuser, bouquiner. « Et qui impressionne aussi beaucoup les invités ! », glisse Tina.
Sans nœuds, les mailles polyester de 3 cm restent souples et ne blessent pas, au point qu’il est très confortable de passer la nuit entière dessus. « Sauf pour le chat de la famille qui décidément se méfie du filet », badine l’architecte.
Sans nœuds, les mailles polyester de 3 cm restent souples et ne blessent pas, au point qu’il est très confortable de passer la nuit entière dessus. « Sauf pour le chat de la famille qui décidément se méfie du filet », badine l’architecte.
Si au départ le filet avait été imaginé en blanc pour privilégier la lumière, le noir a finalement été préféré. Cette couleur a été également retenue pour le garde-corps en tubes d’acier. « Nous avons souhaité accentuer l’effet loft en raison de la découverte du mur de briques en cours de chantier et nous assortir aux montants atelier des verrières », explique la pro.
Cet aménagement de combles a créé une pièce de 17 m², mais aucun mètre carré Carrez supplémentaire. Pour autant ces travaux ont tout changé sur le ressenti intérieur, propulsant la lumière du haut en bas de la maison.
Sur ce visuel, nous distinguons comment le filet a été placé juste sous les verrières de toits afin de diffuser la lumière à l’étage en dessous. Cette lumière traverse elle-même le plafond de verre du R+1 pour illuminer le rez-de-chaussée.
Sur ce visuel, nous distinguons comment le filet a été placé juste sous les verrières de toits afin de diffuser la lumière à l’étage en dessous. Cette lumière traverse elle-même le plafond de verre du R+1 pour illuminer le rez-de-chaussée.
L’intervention d’une architecte, qui plus est ingénieur, a permis d’imaginer ces solutions techniques ambitieuses et de les valider auprès des services d’urbanisme en vue d’obtenir un ensoleillement précis jusqu’à l’étage inférieur.
Les propriétaires, ravis par ses services lui ont d’ailleurs laissé un commentaire élogieux sur la plateforme Houzz : « Tina nous a accompagnés dans notre aménagement de combles, et ça a été une super expérience : elle a parfaitement compris ce que l’on voulait faire, a été vraiment à l’écoute et de très bon conseil tout au long du projet. Entre son professionnalisme et le sérieux de l’artisan qu’elle nous a recommandé (ART.BAT), on s’est senti tout de suite en confiance, accompagnés, et le chantier s’est déroulé dans une super ambiance. »
ET VOUS ?
Que pensez-vous de cette rénovation ?
ET VOUS ?
Que pensez-vous de cette rénovation ?

































Qui habite ici : un jeune couple
Surface totale : 93 m²
Emplacement : Maisons-Alfort, dans le Val-de-Marne
Durée des travaux : 3 mois, livraison juillet 2021
Architecte : Tina Merkes
Budget : 79 000 euros hors honoraires (Travaux entreprise générale 67k€ + Escalier avec rangements et garde-corps 12k€)
Photos : Wilfrid Gremillet